ioaffitto.it TROVA casa. VIVI SEMPLICE.
Nuova ricerca
Pubblica annuncio
Annunci sponsorizzati
Agenzie
Valutazione-immobile
Servizi
Luce Gas Fibra
Mutui
Finanziamenti
Ricerca Internazionale
Servizi web
Servizio partecipazione asta
Pubblica annuncio
Accedi
In affitto
/
Ufficio
/
Cernobbio (CO)
1 di 0
1/7
2/7
3/7
4/7
5/7
6/7
7/7
7
Foto
0
planimetria
Ufficio in affitto a Cernobbio
€ 4.000,00
al mese
-
locali
-
bagni
500
mq
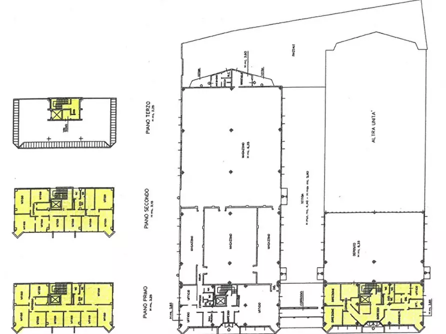
A Cernobbio, in ampio complesso commerciale ed industriale situato in zona strategica, affittiamo in palazzina uffici disposta su tre livelli il piano primo e il piano secondo per circa 500 mq complessivi servita da ascensore. Antistanti la palazzina sono a disposizione alcuni posto auto. Nelle immediate vicinanze è presente l'accesso autostradale e il confine con la Svizzera. Ulteriori e più dettagliate informazioni presso il nostro ufficio. --- annuncio pubblicato con GESTIONALEIMMOBILIARE.it
RIFERIMENTO ANNUNCIO
gestimm-1814437
DATA ANNUNCIO
30 ottobre 2025
DATA ULTIMO AGGIORNAMENTO
30 ottobre 2025
CONTRATTO
Affitto
TIPOLOGIA
Ufficio
SUPERFICIE
500 m²
PIANO
Non disponibile
TOTALE PIANI EDIFICIO
3
TIPO PROPRIETA'
Standard
ALTRE CARATTERISTICHE'
soffitta / mansarda
cantina
garage
riscaldamento autonomo
cucina presente
cucina abitabile
stato di manutenzione buono
taverna
Costi
€ 4.000,00
al mese
Anno di costruzione
1985
Classe energetica
C
407.69 kWh/m3anno
a+
a
b
c
d
e
f
g
Mappa della zona dell'immobile
Ingrandisci mappa
Segnala un problema
Servizi per te
Inserzionista
N-Retail S.r.l. unipersonale
Immobiliare Vista Lago
Vai al sito web
Codice annuncio:
1814437
Mostra numero
Tel: +39 031 3370660
Invia email
Motivo contatto
Appuntamento
Più informazioni
Richiesta di contatto
Più foto e materiali
Nome e cognome*
Email*
Cellulare
Messaggio*
ATTENZIONE ALLE TRUFFE
NON ANTICIPARE MAI denaro su carte ricaricabili, conti correnti esteri, money transfer o altri sistemi di pagamento
Accettazione*
Ho letto, sono maggiorenne e accetto
condizioni
,
privacy
e
Consigli antitruffa
Invia
Chiama
Contatta
Visita
Richiedi visita
Scopri subito quanto vale la tua casa per l'affitto o per la vendita!
Valuta gratis
Altri annunci simili
Ufficio in affitto a Cernobbio
A Cernobbio, in ampio complesso industriale e artigianale situato in zona strategica, affittiamo ...
€ 4.000
450 ㎡
superficie
Ufficio in affitto in Via Plinio 1 a Grandate
GRANDATE (CO) – UFFICIO DI RAPPRESENTANZA 400 MQ CON POSTI AUTOIn posizione strategica e comoda p...
€ 4.000
7
locali
400 ㎡
superficie
3
bagni
Ufficio in affitto in Via Giacomo Matteotti a Cantù
Uffici in affitto a Cantù Uffici di mq 634 a Cantù Proponiamo in affitto nel Comune di Cantù, ne...
€ 4.170
4
locali
634 ㎡
superficie
4
bagni
Ufficio in affitto in via Caravaggio 28 a Desio
Desio (MB), nelle immediate vicinanze della SS36, proponiamo, all'interno di una palazzina terzia...
€ 4.000
5
locali
395 ㎡
superficie
5
bagni
Ufficio in affitto in VIA SETTEMBRINI L. a Lainate
Proponiamo in locazione Ufficio Direzionale di mq 475 ca. al piano rialzato. Canone annuo Euro. 4...
€ 4.000
4
locali
475 ㎡
superficie
2
bagni
Ufficio in affitto in VIA SETTEMBRINI L. a Lainate
Affitta a Lainate, Ufficio Direzionale, mq. 475 ca., con ascensori, portineria. Canone annuo Eur...
€ 4.000
1
locali
475 ㎡
superficie
3
bagni
Annunci immobiliari nella stessa zona
Comune di Cernobbio:
Affitto Attività/immobili commerciali Cernobbio
|
Affitto Uffici Cernobbio
|
Agenzie immobiliari Cernobbio
|
Provincia di Como:
Affitto Attività/immobili commerciali Como
|
Affitto Uffici Como
|
Agenzie immobiliari Como
|
Email
Password
Ricordami
Registrati adesso
Sei una agenzia?
Password dimenticata?