ioaffitto.it TROVA casa. VIVI SEMPLICE.
Nuova ricerca
Pubblica annuncio
Annunci sponsorizzati
Agenzie
Valutazione-immobile
Servizi
Luce Gas Fibra
Mutui
Finanziamenti
Ricerca Internazionale
Servizi web
Servizio partecipazione asta
Pubblica annuncio
Accedi
In affitto
/
Ufficio
/
Cesena (FC)
1 di 0
1/7
2/7
3/7
4/7
5/7
6/7
7/7
7
Foto
0
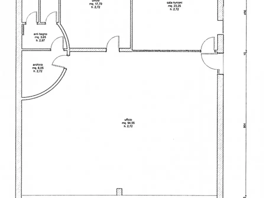
planimetria
Ufficio in affitto in VIA ZAVAGLIA a Cesena
€ 1.800,00
al mese
3
locali
2
bagni
150
mq
A Cesena, zona Pievesestina, affittiamo ufficio di totali 150 mq al secondo piano di complesso commerciale.
L'immobile è arredato e cablato di fibra, e composto da ingresso su ampio space di 95 mq, sala riunioni, comodo ufficio, archivio, bagno e antibagno, accesso a terrazzo comune, all'esterno comodo parcheggio pubblico
Richiesta 1.800 euro/mese
per info Roberto 3486440700
SONO SPECIALIZZATO IN IMMOBILI COMMERCIALI
--- capannoni, uffici, negozi ma anche attività attive o inattive ---
Chiamatemi direttamente per sottoporvi panoramica di immobili idonei.
Oppure scrivetemi a info@passeriniimmobiliare.com le seguenti informazioni:
- attività o uso che si intende svolgere
- tipologia di immobile
- mq necessari di interno specificando quanti uffici e altri vani
- mq di esterno se necessari (corte privata o fronte strada di passaggio..)
- zona ideale
- budget massimo disponibile
Vi contatterò quanto prima con una panoramica di proposte
Grazie
Ape D --- annuncio pubblicato con GESTIONALEIMMOBILIARE.it
RIFERIMENTO ANNUNCIO
gestimm-1528615
DATA ANNUNCIO
18 luglio 2023
DATA ULTIMO AGGIORNAMENTO
18 luglio 2023
CONTRATTO
Affitto
TIPOLOGIA
Ufficio
SUPERFICIE
150 m²
locali
3
PIANO
2
TOTALE PIANI EDIFICIO
2
TIPO PROPRIETA'
Standard
ALTRE CARATTERISTICHE'
aria condizionata
soffitta / mansarda
cantina
arredata
garage
riscaldamento autonomo
cucina presente
cucina abitabile
stato di manutenzione buono
taverna
Costi
€ 1.800,00
al mese
Classe energetica
D
a+
a
b
c
d
e
f
g
Mappa della zona dell'immobile
Ingrandisci mappa
Segnala un problema
Servizi per te
Inserzionista
PASSERINI IMMOBILIARE
Gabriele Passerini
Vai al sito web
Codice annuncio:
1528615
Mostra numero
Tel: 0547/24743
Invia email
Motivo contatto
Appuntamento
Più informazioni
Richiesta di contatto
Più foto e materiali
Nome e cognome*
Email*
Cellulare
Messaggio*
ATTENZIONE ALLE TRUFFE
NON ANTICIPARE MAI denaro su carte ricaricabili, conti correnti esteri, money transfer o altri sistemi di pagamento
Accettazione*
Ho letto, sono maggiorenne e accetto
condizioni
,
privacy
e
Consigli antitruffa
Invia
Chiama
Contatta
Visita
Richiedi visita
Scopri subito quanto vale la tua casa per l'affitto o per la vendita!
Valuta gratis
Altri annunci simili
Ufficio in affitto in PIEVESESTINA a Cesena
A Cesena zona Pievesestina affittiamo ufficio di 120 mq al secondo ed ultimo piano senza ascensor...
€ 1.600
3
locali
120 ㎡
superficie
1
bagni
Ufficio in affitto in VIA GARIBALDI 20 a Santarcangelo Di Romagna
A Santarcangelo di Rimini adiacente il centro storico in complesso commerciale moderno, affittiam...
€ 1.600
4
locali
100 ㎡
superficie
2
bagni
Ufficio in affitto in SANTARCANGELO a Santarcangelo Di Romagna
A Rimini adiacente Santarcangelo, su strada di forte passaggio, affittiamo ufficio commerciale sh...
€ 2.000
4
locali
250 ㎡
superficie
3
bagni
Ufficio in affitto in Via Darsena 17 a Ravenna
ZONA DARSENA, Bellissimo ufficio al secondo piano gia pronto per essere utilizzato. Oltre sei po...
€ 2.000
5
locali
184 ㎡
superficie
1
bagni
Ufficio in affitto a Rimini
Rimini, zona circonvallazione nuova, affittiamo spazioso e luminoso ufficio. L'ufficio si trova a...
€ 1.600
1
locali
160 ㎡
superficie
1
bagni
Ufficio in affitto in VIA GIORGIO LA PIRA 30 a Bibbiena
BIBBIENA - ZONA INDUSTRIALE - IN PROSSIMITA' DEI SERVIZI PRINCIPALI - AFFITTASI PALAZZINA AD USO ...
€ 2.000
19
locali
400 ㎡
superficie
4
bagni
Annunci immobiliari nella stessa zona
Comune di Cesena:
Affitto Attività/immobili commerciali Cesena
|
Affitto Uffici Cesena
|
Agenzie immobiliari Cesena
|
Provincia di Forlì-Cesena:
Affitto Attività/immobili commerciali Forlì-Cesena
|
Affitto Uffici Forlì-Cesena
|
Agenzie immobiliari Forlì-Cesena
|
Email
Password
Ricordami
Registrati adesso
Sei una agenzia?
Password dimenticata?