ioaffitto.it TROVA casa. VIVI SEMPLICE.
Nuova ricerca
Pubblica annuncio
Annunci sponsorizzati
Agenzie
Valutazione-immobile
Servizi
Luce Gas Fibra
Mutui
Finanziamenti
Ricerca Internazionale
Servizi web
Servizio partecipazione asta
Pubblica annuncio
Accedi
1/9
2/9
3/9
4/9
5/9
6/9
7/9
8/9
9/9
9
Foto
1
planimetria
Ufficio in affitto in Via Emilia 83 a Cologno Monzese
€ 2.200,00
al mese
-
locali
2
bagni
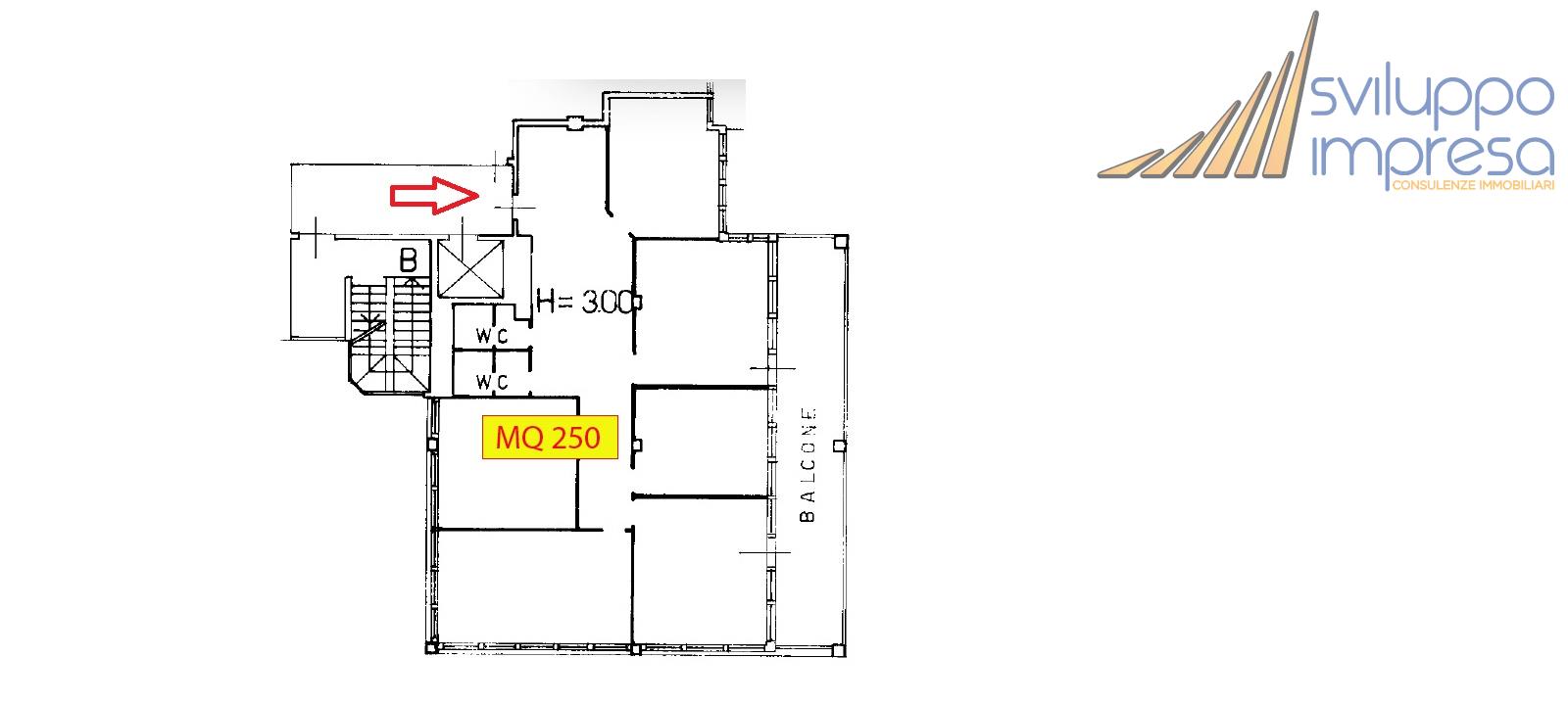
250
mq
Cologno Monzese (MI), Via Emilia, nelle immediate vicinanze della Tangenziale Est, proponiamo in affitto un ufficio di rappresentanza di circa 250 mq commerciali, situato in una palazzina terziaria. L'immobile è suddiviso in sei locali completamente arredati, dotati di doppi servizi, pavimento flottante, impianto elettrico, rete dati e climatizzazione per tutte le stagioni. Lo stabile offre parcheggio riservato ai condomini e dispone di ascensore per l'accesso ai piani. L'ufficio si presenta in ottime condizioni. Libero da subito. AFFITTASI.
RIFERIMENTO ANNUNCIO
16906
DATA ANNUNCIO
27 ottobre 2025
DATA ULTIMO AGGIORNAMENTO
27 ottobre 2025
CONTRATTO
Affitto
TIPOLOGIA
Ufficio
SUPERFICIE
250 m²
PIANO
1°
TIPO PROPRIETA'
Standard
ALTRE CARATTERISTICHE'
giardino privato
riscaldamento centralizzato
cucina assente
posto auto non presente
Costi
€ 2.200,00
al mese
Mappa della zona dell'immobile
Ingrandisci mappa
Segnala un problema
Servizi per te
Inserzionista
Sviluppo Impresa Srl
Vai al sito web
Codice annuncio:
16906
Riferimento immobile:
16906
Mostra numero
Tel: 0224412650
Invia email
Motivo contatto
Appuntamento
Più informazioni
Richiesta di contatto
Più foto e materiali
Nome e cognome*
Email*
Cellulare
Messaggio*
ATTENZIONE ALLE TRUFFE
NON ANTICIPARE MAI denaro su carte ricaricabili, conti correnti esteri, money transfer o altri sistemi di pagamento
Accettazione*
Ho letto, sono maggiorenne e accetto
condizioni
,
privacy
e
Consigli antitruffa
Invia
Chiama
Contatta
Visita
Richiedi visita
Scopri subito quanto vale la tua casa per l'affitto o per la vendita!
Valuta gratis
Altri annunci simili
a
a
a
a
a
a
Annunci immobiliari nella stessa zona
Comune di Cologno Monzese:
Affitto Attività/immobili commerciali Cologno Monzese
|
Affitto Uffici Cologno Monzese
|
Agenzie immobiliari Cologno Monzese
|
Provincia di Milano:
Affitto Attività/immobili commerciali Milano
|
Affitto Uffici Milano
|
Agenzie immobiliari Milano
|
Email
Password
Ricordami
Registrati adesso
Sei una agenzia?
Password dimenticata?