ioaffitto.it TROVA casa. VIVI SEMPLICE.
Nuova ricerca
Pubblica annuncio
Annunci sponsorizzati
Agenzie
Valutazione-immobile
Servizi
Luce Gas Fibra
Mutui
Finanziamenti
Ricerca Internazionale
Servizi web
Servizio partecipazione asta
Pubblica annuncio
Accedi
In affitto
/
Ufficio
/
Grassobbio (BG)
1 di 0
1/4
2/4
3/4
4/4
4
Foto
1
planimetria
Ufficio in affitto in Via Orio al Serio 29 a Grassobbio
€ 3.600,00
al mese
-
locali
6
bagni
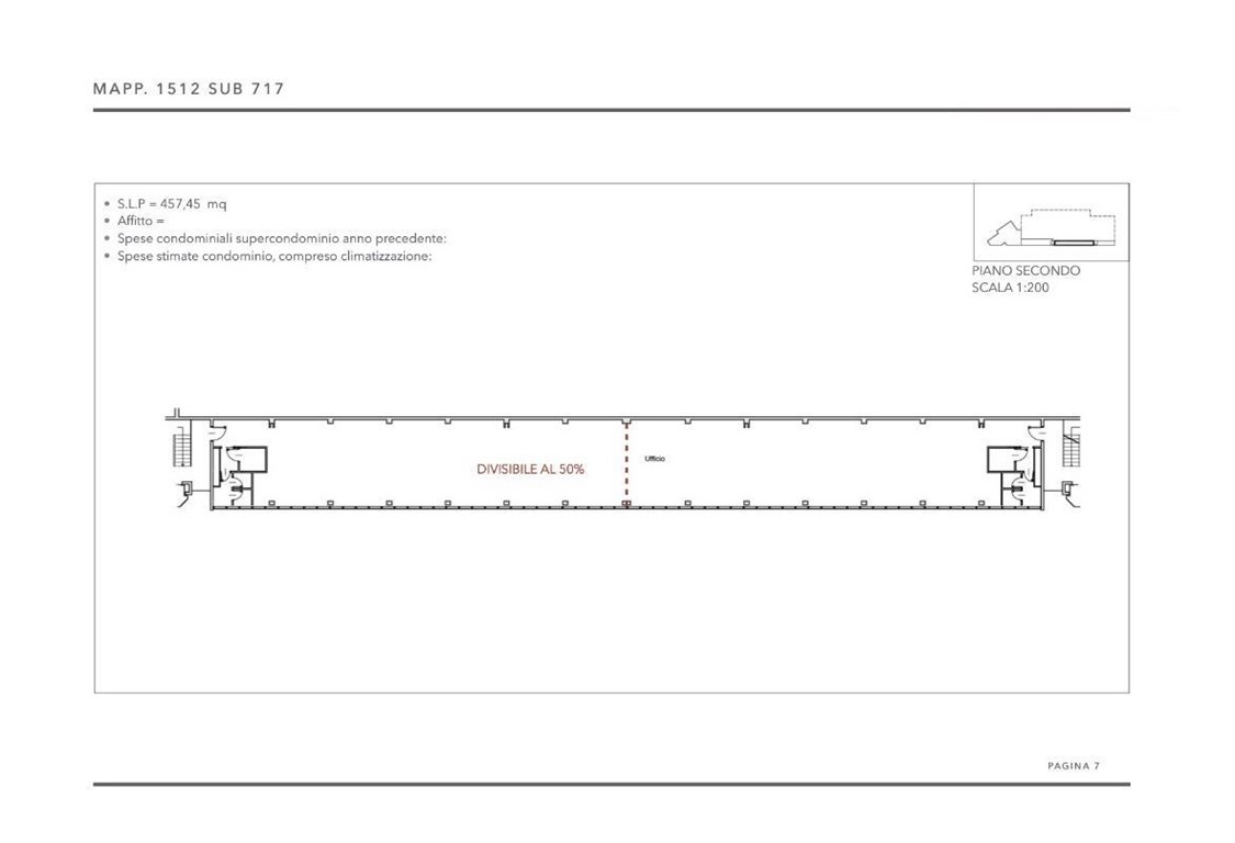
457
mq
Situato in prossimità dell'aeroporto di Orio al Serio, fronte autostrada, all'interno di tre distinti edifici direzionali disposti su più livelli, è disponibile al 2° un ufficio di 457 mq in open space. L'ufficio è dotato doppio ingresso, di due blocchi servizi, con accesso per disabili, ed è equipaggiato con pavimento flottante, impianto elettrico base, impianto di riscaldamento-raffrescamento con rilevatori di consumo e trattamento dell'aria primaria. Sono disponibili posti auto coperti riservati e un'ampia area di parcheggio privato ad uso pubblico.
RIFERIMENTO ANNUNCIO
2157
DATA ANNUNCIO
21 febbraio 2025
DATA ULTIMO AGGIORNAMENTO
21 febbraio 2025
CONTRATTO
Affitto
TIPOLOGIA
Ufficio
SUPERFICIE
457 m²
PIANO
2°
TIPO PROPRIETA'
Standard
ALTRE CARATTERISTICHE'
riscaldamento centralizzato
Costi
€ 3.600,00
al mese
Mappa della zona dell'immobile
Ingrandisci mappa
Segnala un problema
Servizi per te
Inserzionista
Lascari Servizi Immobiliari
Vai al sito web
Codice annuncio:
2157
Riferimento immobile:
2157
Mostra numero
Tel: 035 234162
Invia email
Motivo contatto
Appuntamento
Più informazioni
Richiesta di contatto
Più foto e materiali
Nome e cognome*
Email*
Cellulare
Messaggio*
ATTENZIONE ALLE TRUFFE
NON ANTICIPARE MAI denaro su carte ricaricabili, conti correnti esteri, money transfer o altri sistemi di pagamento
Accettazione*
Ho letto, sono maggiorenne e accetto
condizioni
,
privacy
e
Consigli antitruffa
Invia
Chiama
Contatta
Visita
Richiedi visita
Scopri subito quanto vale la tua casa per l'affitto o per la vendita!
Valuta gratis
Altri annunci simili
Ufficio in affitto in Via Orio al Serio 29 a Grassobbio
Posizione strategica, nelle immediate vicinanze dell'aeroporto di Orio al Serio, fronte autostrad...
€ 3.450
475 ㎡
superficie
6
bagni
Ufficio in affitto in 1 Maggio 18 a Bonate Sotto
In buon contesto in immobile recente, uffici (categoria catastale D/7) posti al piano interrato,...
€ 3.583
665 ㎡
superficie
Ufficio in affitto in VIA BARTOLOMEO COLLEONI a Agrate Brianza
Affitta a AGRATE BRIANZA, Ufficio in Centro Direzionale, mq. 284 ca. Cl. Energetica: F - Kwh/mc ...
€ 3.550
4
locali
284 ㎡
superficie
2
bagni
Ufficio in affitto in VIA BARTOLOMEO COLLEONI a Agrate Brianza
Affitta a AGRATE BRIANZA, Ufficio in Centro Direzionale, mq. 300 ca. al 4 piano. Canone annuo Eu...
€ 3.750
4
locali
300 ㎡
superficie
2
bagni
Ufficio in affitto in VIA BARTOLOMEO COLLEONI a Agrate Brianza
Affitta a AGRATE BRIANZA, Ufficio in Centro Direzionale, mq. 350 ca., 5 piano Canone annuo Euro....
€ 3.791
4
locali
350 ㎡
superficie
2
bagni
Ufficio in affitto in VIA MILANO a Cassina De' Pecchi
Affitta a Cassina de'Pecchi, Ufficio in Centro Direzionale mq. 350 ca., 3 piano. Canone annuo Eur...
€ 3.791
1
locali
350 ㎡
superficie
2
bagni
Annunci immobiliari nella stessa zona
Comune di Grassobbio:
Affitto Attività/immobili commerciali Grassobbio
|
Affitto Uffici Grassobbio
|
Agenzie immobiliari Grassobbio
|
Provincia di Bergamo:
Affitto Attività/immobili commerciali Bergamo
|
Affitto Uffici Bergamo
|
Agenzie immobiliari Bergamo
|
Email
Password
Ricordami
Registrati adesso
Sei una agenzia?
Password dimenticata?