ioaffitto.it TROVA casa. VIVI SEMPLICE.
Nuova ricerca
Pubblica annuncio
Annunci sponsorizzati
Agenzie
Valutazione-immobile
Servizi
Luce Gas Fibra
Mutui
Finanziamenti
Ricerca Internazionale
Servizi web
Servizio partecipazione asta
Pubblica annuncio
Accedi
In affitto
/
Ufficio
/
Limena (PD)
11 di 94
Nuovo
1/10
2/10
3/10
4/10
5/10
6/10
7/10
8/10
9/10
10/10
10
Foto
0
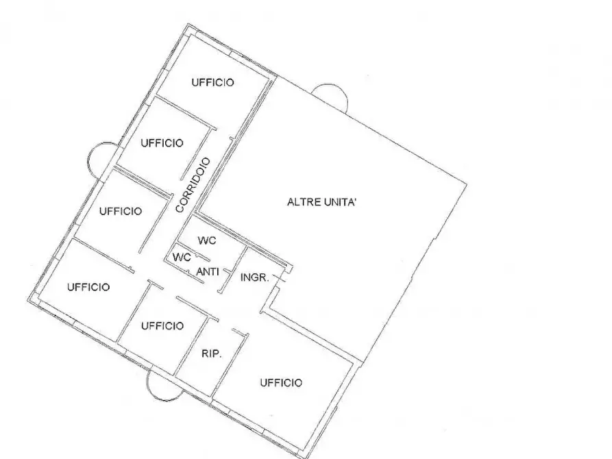
planimetria
Ufficio in affitto in Via del Santo a Limena
€ 1.300,00
al mese
6
locali
2
bagni
135
mq
Limena Centro: In contesto recente e ben tenuto, proponiamo in locazione un ufficio moderno situato al secondo piano, servito da ascensore. La soluzione è caratterizzata da ambienti ampi, grande luminosità e spazi ben distribuiti, ideali per aziende o studi professionali che desiderano una sede rappresentativa.
L’immobile si sviluppa su una superficie funzionale e ben organizzata: dall’ingresso con piccola zona d’attesa si accede a cinque uffici di generosa metratura, un’ampia sala riunioni, un ripostiglio/disbrigo e doppi servizi con antibagno.
Le numerose finestre garantiscono un’ottima illuminazione naturale per tutto il giorno, rendendo gli ambienti piacevoli e accoglienti. La disposizione interna consente inoltre una grande flessibilità d’uso, adattandosi perfettamente sia a funzioni operative sia di rappresentanza.
Soluzione ideale per studi associati, aziende strutturate o professionisti che cercano una sede funzionale, facilmente raggiungibile e pronta per l’attività.
Facilmente raggiungibile da tangenziale, autostrada A4 e SS47 Valsugana, dispone di un grande parcheggio pubblico per il posteggio di auto aziendali e di eventuali clienti o fornitori.
Libero da Marzo 2026.
Da oltre 20 anni, siamo specializzati nella vendita e locazione di immobili nel territorio di Limena e Villafranca Padovana.
Per informazioni o visita sul posto potete contattarci:Tel: 049/767720
Mail: limena@tettorossoimmobiliare.it
Ufficio: Via Roma, 05 Limena (PD)
Il nostro sito per altre offerte www.tettorossoimmobiliare.it
- Il presente annuncio ha valore puramente indicativo e non costituisce elemento, vincolo o presupposto contrattuale. Tutte le misure eventualmente riportate devono considerarsi indicative.
- N.B. per motivi di privacy, l'indirizzo e il puntatore nella mappa sono puramente indicativi e non corrispondono esattamente all'ubicazione dell’immobile.
Se ti piace questo immobile e/o conosci qualcuno che cerca un immobile simile a questo? Condividi il post! su facebook! --- annuncio pubblicato con GESTIONALEIMMOBILIARE.it
RIFERIMENTO ANNUNCIO
gestimm-599804
DATA ANNUNCIO
3 dicembre 2025
DATA ULTIMO AGGIORNAMENTO
3 dicembre 2025
CONTRATTO
Affitto
TIPOLOGIA
Ufficio
SUPERFICIE
135 m²
locali
6
PIANO
2
TOTALE PIANI EDIFICIO
3
TIPO PROPRIETA'
Standard
ALTRE CARATTERISTICHE'
soffitta / mansarda
cantina
impianto elettrico presente e a norma
garage
riscaldamento autonomo
cucina presente
cucina abitabile
ascensore
stato di manutenzione ottimo
rete locale in fibra ottica
taverna
Costi
€ 1.300,00
al mese
Anno di costruzione
2007
Classe energetica
C
115.47 kWh/m3anno
a+
a
b
c
d
e
f
g
Mappa della zona dell'immobile
Ingrandisci mappa
Segnala un problema
Servizi per te
Inserzionista
Studio Limena S.R.L.
Matteo Zanon
Vai al sito web
Codice annuncio:
599804
Mostra numero
Tel: 049767720
Invia email
Motivo contatto
Appuntamento
Più informazioni
Richiesta di contatto
Più foto e materiali
Nome e cognome*
Email*
Cellulare
Messaggio*
ATTENZIONE ALLE TRUFFE
NON ANTICIPARE MAI denaro su carte ricaricabili, conti correnti esteri, money transfer o altri sistemi di pagamento
Accettazione*
Ho letto, sono maggiorenne e accetto
condizioni
,
privacy
e
Consigli antitruffa
Invia
Chiama
Contatta
Visita
Richiedi visita
Scopri subito quanto vale la tua casa per l'affitto o per la vendita!
Valuta gratis
Altri annunci simili
Ufficio in affitto a Limena
Limena affittasi ufficio di 140 Mq circa, Canone 1.300 euro mese più iva. Eventualmente anche in...
€ 1.300
140 ㎡
superficie
2
bagni
Ufficio in affitto a Limena
Limena affittasi ufficio al primo piano con ascensore, superficie di 189 Mq circa, Canone 1.500 e...
€ 1.500
189 ㎡
superficie
2
bagni
Ufficio in affitto a Limena
Limena affittasi ufficio al piano terra. Superficie di 197 Mq circa, Canone 1.500 euro mese più i...
€ 1.500
197 ㎡
superficie
2
bagni
Ufficio in affitto a Limena
Scopri questo spazioso ufficio di 150 mq situato nel cuore del centro direzionale e commerciale d...
€ 1.100
150 ㎡
superficie
Ufficio in affitto a Limena
LIMENA - su centro direzionale e commerciale disponibile luminoso ufficio di 150mq al primo piano...
€ 1.100
150 ㎡
superficie
1
bagni
Ufficio in affitto in VIA DEL SANTO a Limena
Padova __Limena Rif. 348MAT Tel 3403358378 - 0444310220 In zona comoda all'autostrada. Ufficio di...
€ 1.100
4
locali
100 ㎡
superficie
2
bagni
Annunci immobiliari nella stessa zona
Comune di Limena:
Vendita Attività/immobili commerciali Limena
|
Vendita Ufficio Limena
|
Agenzie immobiliari Limena
|
Provincia di Padova:
Vendita Attività/immobili commerciali Padova
|
Vendita Ufficio Padova
|
Agenzie immobiliari Padova
|
Email
Password
Ricordami
Registrati adesso
Sei una agenzia?
Password dimenticata?