ioaffitto.it TROVA casa. VIVI SEMPLICE.
Nuova ricerca
Pubblica annuncio
Annunci sponsorizzati
Agenzie
Valutazione-immobile
Servizi
Luce Gas Fibra
Mutui
Finanziamenti
Ricerca Internazionale
Servizi web
Servizio partecipazione asta
Pubblica annuncio
Accedi
In affitto
/
Ufficio
/
Parma (PR)
1 di 0
1/15
2/15
3/15
4/15
5/15
6/15
7/15
8/15
9/15
10/15
11/15
12/15
13/15
14/15
15/15
15
Foto
0
planimetria
Ufficio in affitto a Parma
---
Prezzo riservato
5
locali
2
bagni
370
mq
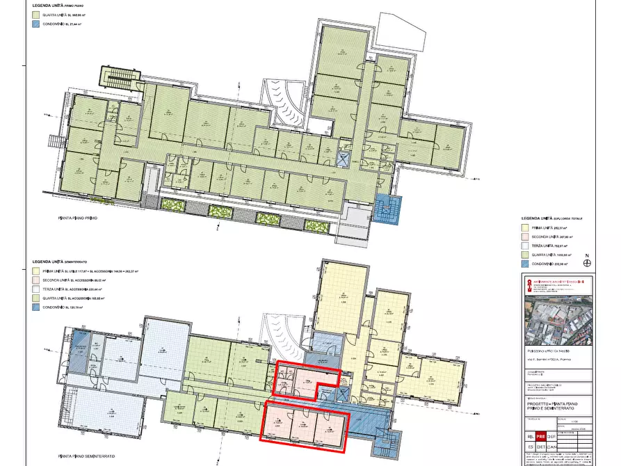
Ufficio in palazzina direzionaleIn palazzina direzionale in ristrutturazione, zona Parma Ovest ben servita dai mezzi pubblici, si dispone di ufficio di complessivi 370 mq.Al piano rialzato della palazzina direzionale gli uffici occupano 280 mq e sono suddivisi da pareti in cartongesso, parzialmente arredati e forniti di moderni servizi.Completano, al piano seminterrato, spazi per sale riunioni e/o archivi per circa 90 mq.Nr. 10 posti auto riservati all'interno dell'area cortiliva recintata.Rif. 1669Immobili Parma Srls, Via Giovanni Giolitti 2/A, 43126 Parma, Tel. 05211962370, info@immobiliaziendali.euIMPORTANTE: l’effettivo stato dell’immobile potrebbe in alcuni casi discostarsi dalle caratteristiche tecniche, dalla disposizione interna e gli accessori indicati in annuncio. I portali possono pubblicare dati differenti pertanto la società Immobili Parma Srls declina ogni responsabilità per possibili incongruenze.Precisiamo inoltre che l’indirizzo pubblicato è indicativo al fine di tutelare la privacy del venditore. L’indirizzo corretto verrà comunicato previo incontro presso la nostra sede.
RIFERIMENTO ANNUNCIO
1669
DATA ANNUNCIO
28 giugno 2022
DATA ULTIMO AGGIORNAMENTO
1 settembre 2025
CONTRATTO
Affitto
TIPOLOGIA
Ufficio
SUPERFICIE
370 m²
locali
5
TIPO PROPRIETA'
Standard
ALTRE CARATTERISTICHE'
aria condizionata
barriere architettoniche
impianto elettrico da verificare
parzialmente arredata
doppio vetro
sistema di riscaldamento presente
riscaldamento ad aria / convettore
riscaldamento centralizzato
impianto idraulico da verificare
posto auto
Costi
---
Prezzo riservato
Stato
buono
Classe energetica
F
a+
a
b
c
d
e
f
g
Mappa della zona dell'immobile
Ingrandisci mappa
Segnala un problema
Servizi per te
Inserzionista
Immobili Parma SRLS
Codice annuncio:
650430
Riferimento immobile:
1669
Mostra numero
Tel: 05211962370
Invia email
Motivo contatto
Appuntamento
Più informazioni
Richiesta di contatto
Più foto e materiali
Nome e cognome*
Email*
Cellulare
Messaggio*
ATTENZIONE ALLE TRUFFE
NON ANTICIPARE MAI denaro su carte ricaricabili, conti correnti esteri, money transfer o altri sistemi di pagamento
Accettazione*
Ho letto, sono maggiorenne e accetto
condizioni
,
privacy
e
Consigli antitruffa
Invia
Chiama
Contatta
Visita
Richiedi visita
Scopri subito quanto vale la tua casa per l'affitto o per la vendita!
Valuta gratis
Altri annunci simili
Ufficio in affitto a Parma
In palazzina direzionale in ristrutturazione, zona Parma Ovest ben servita dai mezzi pubblici, si...
€ 1
19
locali
752 ㎡
superficie
3
bagni
Ufficio in vendita a Parma
Palazzina direzionale/commerciale zona ovestEdificio direzionale in ristrutturazione con uffici s...
€ 1
2233 ㎡
superficie
2
bagni
Ufficio in vendita a Parma
Ufficio in vendita - Parma centroPosizionato nella cerchia della tangenziale interna alla città.C...
€ 1
7
locali
250 ㎡
superficie
2
bagni
Ufficio in vendita a Parma
Uffici in zona sudNelle vicinanze della tangenziale sud sono disponibili uffici di ampia metratur...
€ 1
6
locali
1049 ㎡
superficie
8
bagni
Ufficio in affitto in Strada Bassa Antica 51 a Parma
MONTICELLI TERME - DISPONIBILITA' PER 1 GIORNO ALLA SETTIMANA (con possibilità di ampliare la di...
€ 100
1
locali
15 ㎡
superficie
1
bagni
Ufficio in vendita in Via Mantova a Sorbolo Mezzani
SORBOLO: In complesso commerciale e direzionale di nuova realizzazione ubicato nella parte inizia...
6
locali
168 ㎡
superficie
3
bagni
Annunci immobiliari nella stessa zona
Comune di Parma:
Affitto Attività/immobili commerciali Parma
|
Affitto Uffici Parma
|
Agenzie immobiliari Parma
|
Provincia di Parma:
Affitto Attività/immobili commerciali Parma
|
Affitto Uffici Parma
|
Agenzie immobiliari Parma
|
Email
Password
Ricordami
Registrati adesso
Sei una agenzia?
Password dimenticata?