ioaffitto.it TROVA casa. VIVI SEMPLICE.
Nuova ricerca
Pubblica annuncio
Annunci sponsorizzati
Agenzie
Valutazione-immobile
Servizi
Luce Gas Fibra
Mutui
Finanziamenti
Ricerca Internazionale
Servizi web
Servizio partecipazione asta
Pubblica annuncio
Accedi
In affitto
/
Ufficio
/
Pescara (PE)
41 di 47
1/13
2/13
3/13
4/13
5/13
6/13
7/13
8/13
9/13
10/13
11/13
12/13
13/13
13
Foto
1
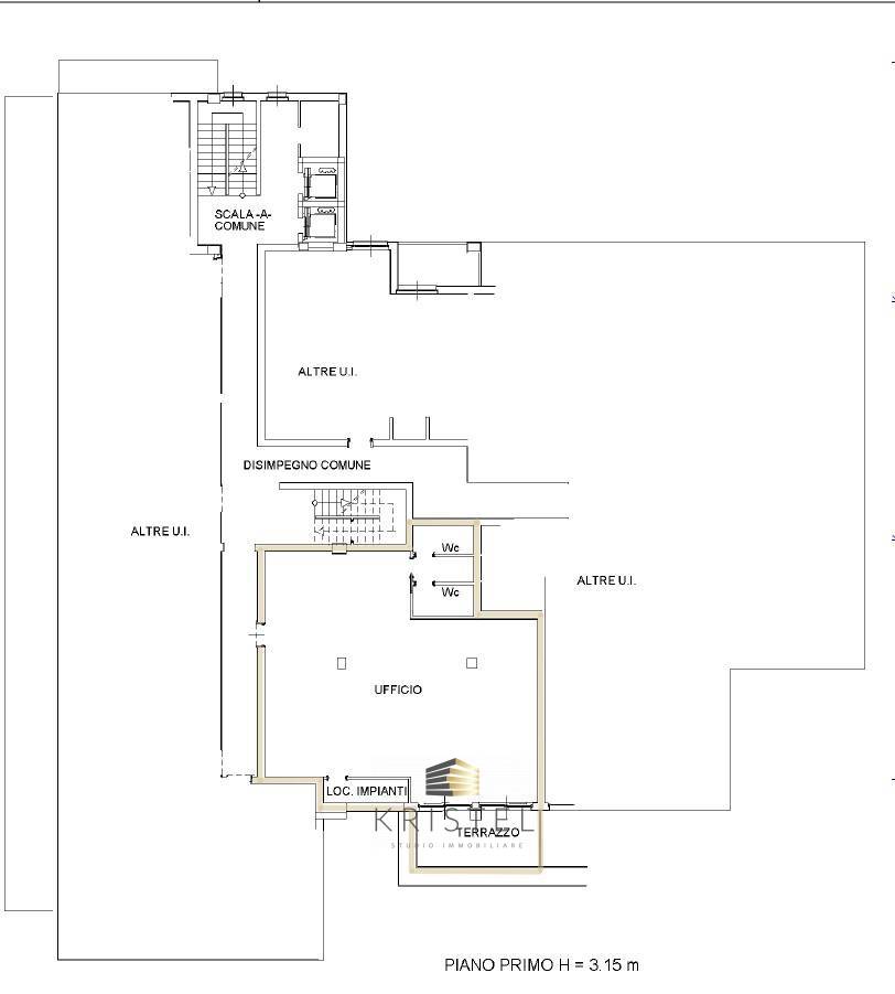
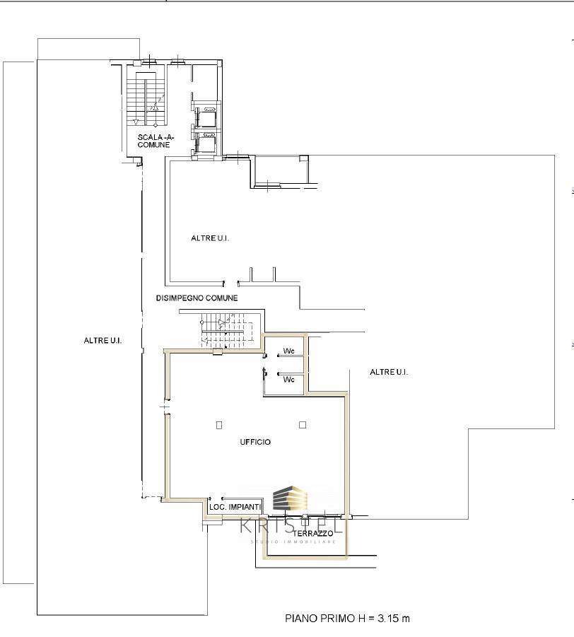
planimetria
Ufficio in affitto in VIA MICHELANGELO 14 a Pescara
€ 900,00
al mese
3
locali
2
bagni
110
mq
Pescara (PE), in zona centralissima e precisamente in via Michelangelo (sopra il Bingo) proponiamo in LOCAZIONE STUDIO O UFFICIO sito al piano primo di palazzina dotata di ascensore.
La soluzione si presenta come unico ambiente di ca 110mq, tranquillamente divisibile in due o più parti ideale come studio per professionisti o attività di prestazione servizi.
Sono presenti due bagni distinti per uomo e donna, un disimpegno con lavamani ed un comodo ripostiglio.
L'immobile è pari al nuovo e non necessita di opere di ristrutturazione o manutenzione.
Inoltre non presenta barriere architettoniche, quindi permette a tutti l'accesso senza alcun tipo di ostacolo.
La zona in cui è ubicato consente massima comodità di parcheggio in quanto si trova accanto all'area di risulta e di fronte al Michelangelo parking.
Per ulteriori informazioni o visite contattaci al 388 8775144 o info@kristelimmobiliare.it
RIFERIMENTO ANNUNCIO
L - UT1
DATA ANNUNCIO
8 febbraio 2025
DATA ULTIMO AGGIORNAMENTO
8 febbraio 2025
CONTRATTO
Affitto
TIPOLOGIA
Ufficio
SUPERFICIE
110 m²
locali
3
TOTALE PIANI EDIFICIO
5
TIPO PROPRIETA'
Standard
ALTRE CARATTERISTICHE'
aria condizionata
accesso per disabili
non arredato
sistema di riscaldamento elettrico
Costi
€ 900,00
al mese
Stato
Eccellenti
Classe energetica
E
a+
a
b
c
d
e
f
g
Mappa della zona dell'immobile
Ingrandisci mappa
Segnala un problema
Servizi per te
Inserzionista
KRISTEL STUDIO IMMOBILIARE
Vai al sito web
Codice annuncio:
6377
Riferimento immobile:
L - UT1
Mostra numero
Tel: 3888775144
Invia email
Motivo contatto
Appuntamento
Più informazioni
Richiesta di contatto
Più foto e materiali
Nome e cognome*
Email*
Cellulare
Messaggio*
ATTENZIONE ALLE TRUFFE
NON ANTICIPARE MAI denaro su carte ricaricabili, conti correnti esteri, money transfer o altri sistemi di pagamento
Accettazione*
Ho letto, sono maggiorenne e accetto
condizioni
,
privacy
e
Consigli antitruffa
Invia
Chiama
Contatta
Visita
Richiedi visita
Scopri subito quanto vale la tua casa per l'affitto o per la vendita!
Valuta gratis
Altri annunci simili
Ufficio in affitto in Via Silvio Pellico a Pescara
Rif: PE-U-440 - Ufficio arredato in affitto a Pescara centro in zona stazione centrale. Affittasi...
€ 850
4
locali
100 ㎡
superficie
a
a
a
a
a
Annunci immobiliari nella stessa zona
Comune di Pescara:
Affitto Attività/immobili commerciali Pescara
|
Affitto Uffici Pescara
|
Agenzie immobiliari Pescara
|
Provincia di Pescara:
Affitto Attività/immobili commerciali Pescara
|
Affitto Uffici Pescara
|
Agenzie immobiliari Pescara
|
Email
Password
Ricordami
Registrati adesso
Sei una agenzia?
Password dimenticata?