ioaffitto.it TROVA casa. VIVI SEMPLICE.
Nuova ricerca
Pubblica annuncio
Annunci sponsorizzati
Agenzie
Valutazione-immobile
Servizi
Luce Gas Fibra
Mutui
Finanziamenti
Ricerca Internazionale
Servizi web
Servizio partecipazione asta
Pubblica annuncio
Accedi
In affitto
/
Ufficio
/
Roma (RM)
1 di 17
1/11
2/11
3/11
4/11
5/11
6/11
7/11
8/11
9/11
10/11
11/11
11
Foto
0
planimetria
Ufficio in affitto in Via Cristoforo Colombo 149 a Roma
€ 3.900,00
al mese
-
locali
2
bagni
430
mq
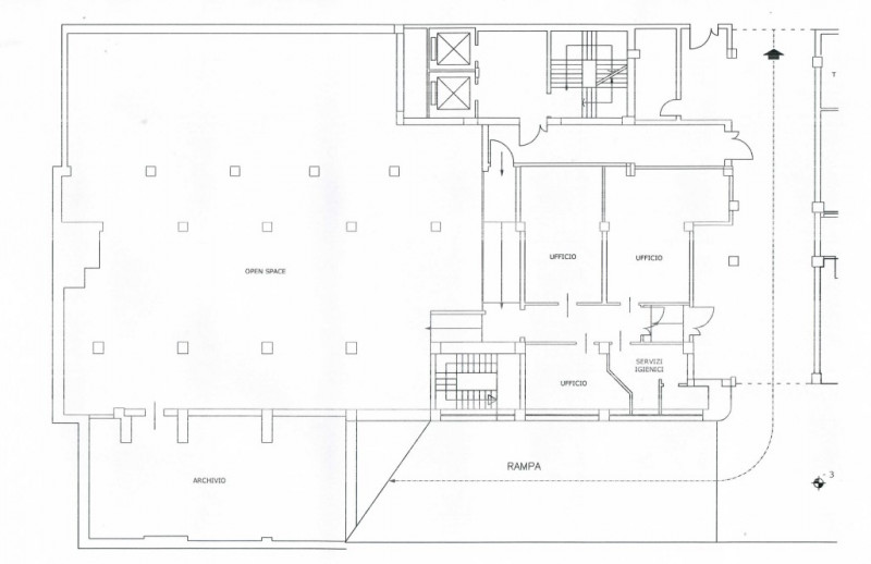
L'Agenzia immobiliare Dominvest propone in locazione un ufficio di circa 430 mq con altezze dei soffitti 4 m, ubicato al piano s1 con ingresso dalla rampa carrabile su via Cornelio Magni e un ingresso dal condominio in complesso immobiliare direzionale con servizio di portineria e guardiania ubicato a 500 m. dalle Mura Aureliane.
Internamente l’ufficio si compone di: grande open space con pavimento flottante oltre tre stanze, un archivio e doppi servizi.
Adatto per palestre, scuola di danza ecc.
Disponibile da subito.
Il canone mensile di locazione richiesto è di Euro 3.900,00 oltre IVA.
Attualmente lo stato dell'immobile è discreto ma la proprietà consegnerà l'immobile ristrutturato.
*Le presenti informazioni e planimetrie sono meramente indicative e non costituiscono elementi contrattuali. --- annuncio pubblicato con GESTIONALEIMMOBILIARE.it
RIFERIMENTO ANNUNCIO
gestimm-3416639
DATA ANNUNCIO
14 aprile 2025
DATA ULTIMO AGGIORNAMENTO
14 aprile 2025
CONTRATTO
Affitto
TIPOLOGIA
Ufficio
SUPERFICIE
430 m²
PIANO
Non disponibile
TOTALE PIANI EDIFICIO
7
TIPO PROPRIETA'
Standard
ALTRE CARATTERISTICHE'
aria condizionata
soffitta / mansarda
cantina
garage
riscaldamento centralizzato
cucina presente
cucina abitabile
ascensore
da ristrutturare
impianto di antincendio
taverna
Costi
€ 3.900,00
al mese
Anno di costruzione
1980
Classe energetica
IN CORSO DI VALUTAZIONE
a+
a
b
c
d
e
f
g
Mappa della zona dell'immobile
Ingrandisci mappa
Segnala un problema
Servizi per te
Inserzionista
Dominvest s.r.l.
Dominvest
Vai al sito web
Codice annuncio:
3416639
Mostra numero
Tel: 0642010800
Invia email
Motivo contatto
Appuntamento
Più informazioni
Richiesta di contatto
Più foto e materiali
Nome e cognome*
Email*
Cellulare
Messaggio*
ATTENZIONE ALLE TRUFFE
NON ANTICIPARE MAI denaro su carte ricaricabili, conti correnti esteri, money transfer o altri sistemi di pagamento
Accettazione*
Ho letto, sono maggiorenne e accetto
condizioni
,
privacy
e
Consigli antitruffa
Invia
Chiama
Contatta
Visita
Richiedi visita
Scopri subito quanto vale la tua casa per l'affitto o per la vendita!
Valuta gratis
Altri annunci simili
Annunci immobiliari nella stessa zona
Comune di Roma:
Affitto Attività/immobili commerciali Roma
|
Affitto Uffici Roma
|
Agenzie immobiliari Roma
|
Provincia di Roma:
Affitto Attività/immobili commerciali Roma
|
Affitto Uffici Roma
|
Agenzie immobiliari Roma
|
Email
Password
Ricordami
Registrati adesso
Sei una agenzia?
Password dimenticata?