ioaffitto.it TROVA casa. VIVI SEMPLICE.
Nuova ricerca
Pubblica annuncio
Annunci sponsorizzati
Agenzie
Valutazione-immobile
Servizi
Luce Gas Fibra
Mutui
Finanziamenti
Ricerca Internazionale
Servizi web
Servizio partecipazione asta
Pubblica annuncio
Accedi
1/9
2/9
3/9
4/9
5/9
6/9
7/9
8/9
9/9
9
Foto
0
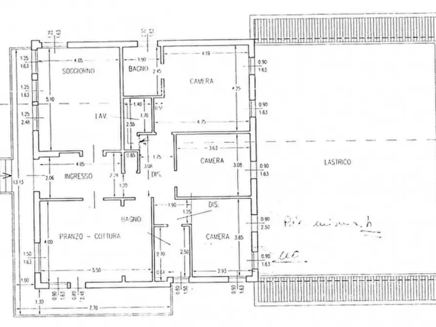
planimetria
Ufficio in affitto a Stra
€ 1.100,00
al mese
5
locali
-
bagni
120
mq
Vicino al centro di Strà (VE) affittasi ampio ufficio al primo piano (senza ascensore). Superficie 120 mq. suddivisi in vari locali (vedi planimetria). Impianti autonomi e aria condizionata riscaldamento a pavimento. ingresso autonomo.
Canone mensile 1.100 euro mese più iva. Spese condominiali 50 euro mensili. --- annuncio pubblicato con GESTIONALEIMMOBILIARE.it
RIFERIMENTO ANNUNCIO
gestimm-4445257
DATA ANNUNCIO
25 marzo 2025
DATA ULTIMO AGGIORNAMENTO
25 marzo 2025
CONTRATTO
Affitto
TIPOLOGIA
Ufficio
SUPERFICIE
120 m²
locali
5
PIANO
Non disponibile
TIPO PROPRIETA'
Standard
ALTRE CARATTERISTICHE'
aria condizionata
soffitta / mansarda
cantina
impianto elettrico presente e a norma
garage
riscaldamento autonomo
riscaldamento a pavimento
cucina presente
cucina abitabile
stato di manutenzione ottimo
taverna
Costi
€ 1.100,00
al mese
Anno di costruzione
1993
Classe energetica
F
70.98 kWh/m3anno
a+
a
b
c
d
e
f
g
Mappa della zona dell'immobile
Ingrandisci mappa
Segnala un problema
Servizi per te
Inserzionista
DB IMMOBILIARE DI DANIELE BENETOLLO
Daniele Benetollo
Vai al sito web
Codice annuncio:
4445257
Mostra numero
Tel: 049629238
Invia email
Motivo contatto
Appuntamento
Più informazioni
Richiesta di contatto
Più foto e materiali
Nome e cognome*
Email*
Cellulare
Messaggio*
ATTENZIONE ALLE TRUFFE
NON ANTICIPARE MAI denaro su carte ricaricabili, conti correnti esteri, money transfer o altri sistemi di pagamento
Accettazione*
Ho letto, sono maggiorenne e accetto
condizioni
,
privacy
e
Consigli antitruffa
Invia
Chiama
Contatta
Visita
Richiedi visita
Scopri subito quanto vale la tua casa per l'affitto o per la vendita!
Valuta gratis
Altri annunci simili
a
a
a
a
a
a
Annunci immobiliari nella stessa zona
Comune di Stra:
Affitto Attività/immobili commerciali Stra
|
Affitto Uffici Stra
|
Agenzie immobiliari Stra
|
Provincia di Venezia:
Affitto Attività/immobili commerciali Venezia
|
Affitto Uffici Venezia
|
Agenzie immobiliari Venezia
|
Email
Password
Ricordami
Registrati adesso
Sei una agenzia?
Password dimenticata?