ioaffitto.it TROVA casa. VIVI SEMPLICE.
Nuova ricerca
Pubblica annuncio
Annunci sponsorizzati
Agenzie
Valutazione-immobile
Servizi
Luce Gas Fibra
Mutui
Finanziamenti
Ricerca Internazionale
Servizi web
Pubblica annuncio
Accedi
1/9
2/9
3/9
4/9
5/9
6/9
7/9
8/9
9/9
9
Foto
0
planimetria
Ufficio in affitto in Viale dell'Industria, 74 a Trissino
€ 1.000,00
al mese
-
locali
-
bagni
120
mq
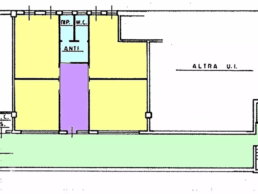
Proponiamo in affitto un ampio locale ad uso ufficio situato al primo piano di un complesso commerciale alle porte di Trissino. Questo spazio, con una superficie totale di 120 mq, è caratterizzato da un'eccellente visibilità grazie alla sua posizione sulla principale rotatoria della città, garantendo così un elevato passaggio pedonale e veicolare.
L'unità immobiliare è attualmente strutturata con ingresso-reception ospiti, tre uffici separati che offrono privacy e tranquillità per attività professionali come studi medici o dentisti. Inoltre, il locale dispone di un blocco bagni dedicato, rendendolo funzionale per qualsiasi tipo di utilizzo lavorativo.(Sub.50)
Le spese condominiali sono contenute a soli 50 euro al mese, permettendo una gestione economica dell'immobile. Sono presenti allacci diretti per acqua, energia elettrica e gas, facilitando l'immediata operatività del tuo business.
Trissino offre una rete stradale ben sviluppata ed è facilmente raggiungibile dalle principali arterie viarie della zona. La presenza di altri negozi e servizi nelle vicinanze rende questo locale ancora più appetibile per chi cerca uno spazio strategico dove far crescere la propria attività.
Non perdere questa opportunità! Contatta subito la nostra agenzia per prenotare una visita o ricevere ulteriori informazioni su questo eccellente immobile.
Richiesta canone € 1.000,00+iva / mese --- annuncio pubblicato con GESTIONALEIMMOBILIARE.it
RIFERIMENTO ANNUNCIO
gestimm-4865378
DATA ANNUNCIO
9 marzo 2026
DATA ULTIMO AGGIORNAMENTO
9 marzo 2026
CONTRATTO
Affitto
TIPOLOGIA
Ufficio
SUPERFICIE
120 m²
PIANO
1
TOTALE PIANI EDIFICIO
2
TIPO PROPRIETA'
Standard
ALTRE CARATTERISTICHE'
soffitta / mansarda
cantina
garage
cucina presente
cucina abitabile
stato di manutenzione buono
taverna
Costi
€ 1.000,00
al mese
Anno di costruzione
1995
Classe energetica
IN CORSO DI VALUTAZIONE
a+
a
b
c
d
e
f
g
Mappa della zona dell'immobile
Ingrandisci mappa
Segnala un problema
Servizi per te
Inserzionista
Cobrux srl
AGENZIA
Vai al sito web
Codice annuncio:
4865378
Mostra numero
Tel: 3470140018
Invia email
Motivo contatto
Appuntamento
Più informazioni
Richiesta di contatto
Più foto e materiali
Nome e cognome*
Email*
Cellulare
Messaggio*
ATTENZIONE ALLE TRUFFE
NON ANTICIPARE MAI denaro su carte ricaricabili, conti correnti esteri, money transfer o altri sistemi di pagamento
Accettazione*
Ho letto, sono maggiorenne e accetto
condizioni
,
privacy
e
Consigli antitruffa
Invia
Chiama
Contatta
Visita
Richiedi visita
Scopri subito quanto vale la tua casa per l'affitto o per la vendita!
Valuta gratis
Altri annunci simili
a
a
a
a
a
a
Annunci immobiliari nella stessa zona
Comune di Trissino:
Affitto Attività/immobili commerciali Trissino
|
Affitto Uffici Trissino
|
Agenzie immobiliari Trissino
|
Provincia di Vicenza:
Affitto Attività/immobili commerciali Vicenza
|
Affitto Uffici Vicenza
|
Agenzie immobiliari Vicenza
|
Email
Password
Ricordami
Registrati adesso
Sei una agenzia?
Password dimenticata?