ioaffitto.it TROVA casa. VIVI SEMPLICE.
Logo
Nuovo
1/1
Immagine 1 di Ufficio in affitto  in Viale San Lazzaro 130 a Vicenza
Icona foto1 Foto     Icona planimetrie 0 planimetria

Ufficio in affitto in Viale San Lazzaro 130 a Vicenza

€ 970,00
al mese
-
locali
1
bagni
177
mq
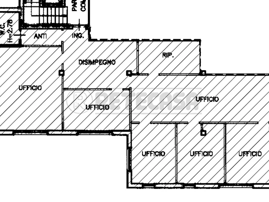
VICENZA – SAN LAZZARO: proponiamo in locazione un ampio e luminoso ufficio inserito in un contesto commerciale-direzionale di forte passaggio sia pedonale che veicolare, con ottima visibilità e comodità ai principali servizi.L’immobile, di circa -- mq calpestabili, si trova al secondo piano di una palazzina servita da ascensore e si presenta in ottime condizioni, pronto all’uso. Gli spazi interni sono ben distribuiti e funzionali: ingresso con area accoglienza/reception, antibagno e bagno, ripostiglio, un ampio ufficio ideale anche come sala riunioni, quattro uffici di diverse metrature (vedi elenco sotto).L’ufficio è particolarmente luminoso grazie alle grandi finestre che garantiscono un’ottima illuminazione naturale durante tutta la giornata.Dotazioni:- Riscaldamento autonomo - radiatori- Impianto di aria condizionata in tutti gli ambienti -cablatoCompleta la proprietà l’ottima disponibilità di parcheggi nelle immediate vicinanze dello stabile, elemento fondamentale per clienti e collaboratori.Disponibilità: da metà maggio.Soluzione ideale per studi professionali, società di servizi o attività direzionali che ricercano una posizione strategica e ben collegata.Per maggiori informazioni o per fissare una visita, non esitate a contattarci.€ 970,00Cod rif (FZVuffL18) PER QUESTIONI DI PRIVACY LA MAPPA SOTTOSTANTE NON INDICA ESATTAMENTE L’UBICAZIONE DELL’IMMOBILE, MA È L’INDIRIZZO DI UN PUNTO SITUATO NELLE VICINANZE DELL’IMMOBILE.MQ COMMERCIALI = 177 mqMQ CALPESTABILI = 150 mqINGRESSO = 1,5 MQAREA RICETTIVA = 16,5 MQANTIBAGNO E WC = 7 MQUFFICIO 1 = 28 MQUFFICIO 2 = 13,5 MQUFFICIO 3 = 33 MQUFFICIO 4 = 13 MQUFFICIO 5 = 14 MQUFFICIO 6 = 13,5 MQRIPOSTIGLIO = 10,5 MQ
RIFERIMENTO ANNUNCIO
FZVuffL18
DATA ANNUNCIO
17 aprile 2026
DATA ULTIMO AGGIORNAMENTO
17 aprile 2026
CONTRATTO
Affitto
TIPOLOGIA
Ufficio
SUPERFICIE
177 m²
PIANO
2° piano
TOTALE PIANI EDIFICIO
4
TIPO PROPRIETA'
Standard
ALTRE CARATTERISTICHE'
barriere architettoniche ascensore
Costi
€ 970,00
al mese
Costo condominio
101 / mese
Anno di costruzione
1970
Stato
buono
Classe energetica F
a+ a b c d e f g
Mappa della zona dell'immobile
Servizi per te
Inserzionista
Nuova VI EST srl
Fabio Balsamà

Codice annuncio: 1079662
Riferimento immobile: FZVuffL18

Invia email
ATTENZIONE ALLE TRUFFE
 
NON ANTICIPARE MAI denaro su carte ricaricabili, conti correnti esteri, money transfer o altri sistemi di pagamento

Scopri subito quanto vale la tua casa per l'affitto o per la vendita!

   

Altri annunci simili