ioaffitto.it TROVA casa. VIVI SEMPLICE.
Logo
1/3
Immagine 1 di Villa in vendita  in vi Nero a Santa Marina Salina
2/3
Immagine 2 di Villa in vendita  in vi Nero a Santa Marina Salina
3/3
Immagine 3 di Villa in vendita  in vi Nero a Santa Marina Salina
Icona foto3 Foto     Icona planimetrie 0 planimetria

Villa in vendita in vi Nero a Santa Marina Salina

€ 480.000,00
prezzo di vendita
4
locali
-
bagni
120
mq
Proponiamo in VENDITA una magnifica struttura libera al rogito

La villa misura 120 metri quadrati e dispone di 4 locali, perfetti per accogliere una famiglia o per trascorrere delle indimenticabili vacanze in compagnia di amici.
La villa si sviluppa su due piani, offrendo ampi spazi per il relax e il divertimento.
Gli interni sono caratterizzati da un'atmosfera calda e accogliente, grazie all'utilizzo di materiali di alta qualità e di colori tipici della tradizione siciliana.
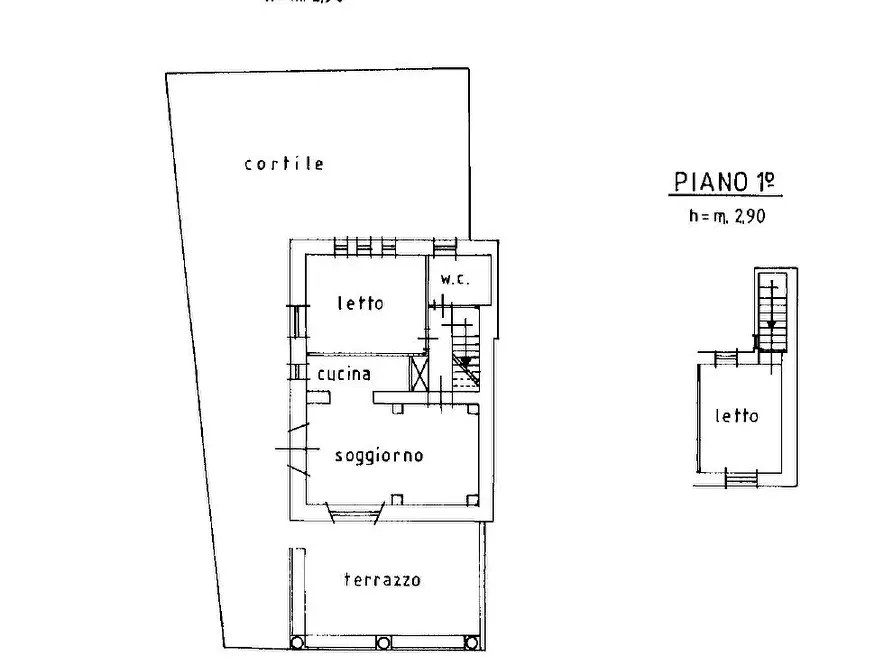
Al piano terra si trovano il soggiorno, la cucina, un'ampia camera da letto matrimoniale e un bagno, mentre un'ulteriore zona notte è situata in un comodo soppalco.

Da ogni stanza è possibile godere di una vista unica sul paesaggio circostante.
L'esterno della villa è altrettanto invitante, con un ampio giardino curato e una spaziosa terrazza dove trascorrere piacevoli momenti all'aria aperta.
Particolare importante è la vicinanza al mare, avrete modo di raggiungere a pochi metri un elegante Lido e una magnifica zona balneare.

Uno spazio, da adibire a posti auto, completa questa proprietà da sogno.
Questa villa singola rappresenta l'opportunità perfetta per chi desidera una casa vacanze in un luogo incantevole o per chi sogna di trasferirsi in una delle più belle isole italiane.

Non perdere l'occasione di diventare il nuovo orgoglioso proprietario di questa meravigliosa villa a Santa Marina Salina, nella Frazione di Lingua.
RIFERIMENTO ANNUNCIO
1202
DATA ANNUNCIO
26 marzo 2025
DATA ULTIMO AGGIORNAMENTO
26 marzo 2025
CONTRATTO
Vendita
TIPOLOGIA
Villa
SUPERFICIE
120 m²
locali
4
PIANO
Piano terra
TOTALE PIANI EDIFICIO
2
TIPO PROPRIETA'
Standard
ALTRE CARATTERISTICHE'
aria condizionata barriere architettoniche disponibile da subito arredata giardino privato cucina presente posto auto scoperto prezzo trattabile terrazzo disponibile
Costi
€ 480.000,00
prezzo di vendita
Stato
Ottimo
Mappa della zona dell'immobile

Calcola il mutuo

Inserisci i dati mutuo

Rata del mutuo
Al mese
Anticipo
Mutuo
Richiedi consulenza gratuita mutuo

Servizio erogato tramite  

Servizi per te
Inserzionista
Logo AGIM

Codice annuncio: 1422010051
Riferimento immobile: 1202

Invia email
ATTENZIONE ALLE TRUFFE
 
NON ANTICIPARE MAI denaro su carte ricaricabili, conti correnti esteri, money transfer o altri sistemi di pagamento

Scopri subito quanto vale la tua casa per l'affitto o per la vendita!

   

Altri annunci simili

Annunci immobiliari nella stessa zona
Comune di Santa Marina Salina:
Agenzie immobiliari Santa Marina Salina |
Provincia di Messina:
Agenzie immobiliari Messina |