Villetta a schiera in vendita in Superga a Baldissero Torinese
€ 298.000,00
prezzo di vendita
Classe energetica: E - EPgl,nren: 240,61 kWh/m² - Baldissero, più precisamente in via Superga n. 53, in contesto residenziale fornito di portineria; proponiamo esclusiva Villetta a schiera completamente ristrutturata.
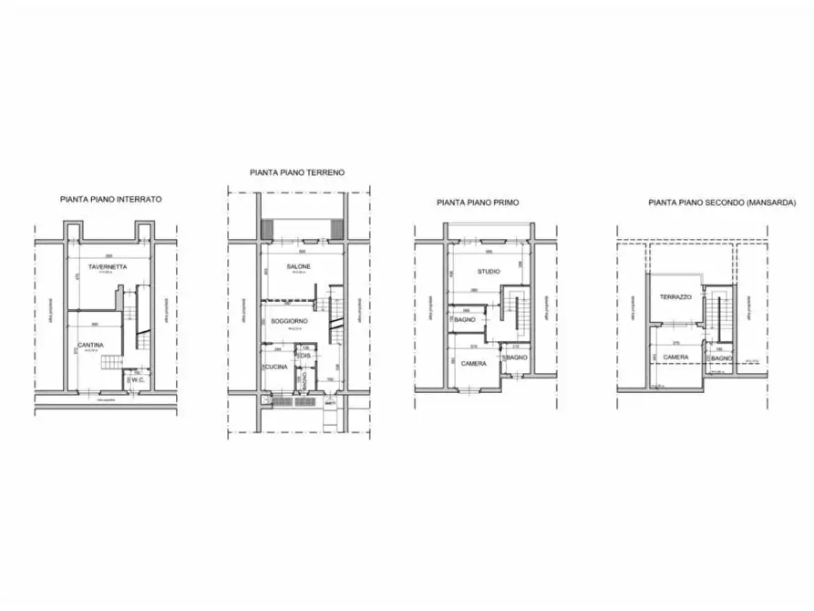
Al piano terreno, troviamo l' ingresso che funge da spogliatoio, ampio soggiorno, cucina abitabile con finestra lato ingresso, bagno finestrato e sala con camino a legna che affaccia sul giardino curato nei minimi dettagli.
Al piano primo, troviamo il disimpegno, ampio studio con balcone e vista sulle colline, camera matrimoniale, due bagni, uno cieco ed uno con finestra.
Al piano mansardato, bagno con finestra, e bellissima camera con terrazzo esclusivo sulla collina.
Al piano interrato, troviamo invece una spaziosa cantina, la tavernetta ed un altro servizio igienico.
Concludono la proposta, le particolari finiture interne, il giardino esclusivo, due box auto con basculante automatizzato, e la possibilità di acquistare gli esclusivi mobili interni.
Studio "CIRILLO IMMOBILI srl" con socio unico Andrea Cirillo, corso Belgio n. 116/c 10153 TORINO (TO) – TEL: 011.197. 06.935 – CEL: 392.69. 27.748. mail: – SITO: La nostra esperienza al vostro servizio Cirillo Immobili mette a vostra disposizione la sua esperienza nel settore immobiliare maturata nel corso degli anni, la sua cortesia e competenza. La nostra volontà di offrirvi servizi di livello sempre alto rendono semplice la compravendita e l'affitto di immobili, guidandovi e consigliandovi con cura e trasparenza in tutte le fasi della trattativa fino alla realizzazione finale.