Villetta a schiera in vendita in Via Calabria, N. snc a Gualdo Tadino
€ 36.805,00
prezzo di vendita
Quest’immobile viene venduto tramite asta online.
Villetta a schiera, in Gualdo Tadino (PG), Fraz. Palazzo Ceccoli, Via Calabria. Porzione di un fabbricato di maggior consistenza della tipologia “a schiera” costituito da 3 livelli, 1 entro terra destinato a garages e 2 fuori terra destinati al residenziale. Contesto urbano in zona semiperiferica, non lontana dal centro cittadino.
Piano terra: ingresso, pranzo/soggiorno, cucina, anti, wc, n.2 logge e corte esterna esclusiva. Piano primo: disimpegno, 3 camere, bagno e 2 balconi.
Unità internamente al grezzo: suddivisa con muratura per distribuzione spazi interni, intonacata, non tinteggiata, massetti, pavimenti e rivestimenti assenti, impianto elettrico limitatamente alle schermature, impianto idrico-sanitario autonomo, sanitari assenti, impianto termico con esclusione di elementi radianti ed opportuna caldaia autonoma, portoncino d’accesso blindato senza rivestimento, porte interne assenti, finestre in legno, tapparelle in pvc.
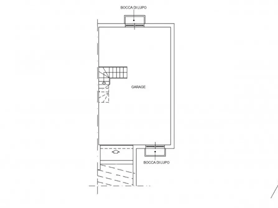
Piano primo sottostrada: garage. Accesso da rampa esclusiva, portone motorizzato, predisposizione per bagno (lavabo e wc), scala al grezzo, schermatura impianti.
Presenti difformità meglio specificate in perizia (pag 11-14).
Saranno necessarie Operazioni Catastali di frazionamento, limitatamente alla part. 1244, che anch’essa in parte dovrà far parte del medesimo lotto compatibilmente allo stato di fatto.
Libero.
Per maggiori dettagli consultare i documenti allegati.
Bene descritto in perizia come LOTTO 1
Sup commerciali
Unità residenziale 91,15 mq
Garage 30,67 mq
Part 1244/parte A 1,55 mq
Piena proprietà di:
Villetta a schiera (CF): Foglio 39 - Particella 1243 - Subalterno 2 - Cat A/2
Garage (CF): Foglio 39 - Particella 1243 - Subalterno 1 - Cat C/6
Ente urbano (CT): Foglio 39 - Particella 1243
Terreno (CT): Foglio 39 - Particella 1244 / Parte A
OLTRE quota proporzionale su parti comuni stabilite e disciplinate dal rispettivo Piano di Lottizzazione, per il quale risulta stipulata Convenzione Edilizia con il Comune
Offerta minima: 36805 EURO.
Quimmo.it: iniziativa tech del Gruppo illimity specializzata nell’intermediazione digitale di beni immobili provenienti da tribunali, nuovi sviluppi immobiliari, financial institutions e libero mercato.
Da oltre 10 anni Quimmo.it è il portale specializzato nella compravendita di immobili tramite asta giudiziaria. Il portale è infatti iscritto nel Registro Gestori della vendita telematica e nell’elenco dei siti web autorizzati allo svolgimento della pubblicità legale. Con Quimmo puoi scegliere tra migliaia di immobili di ogni tipo e partecipare alle aste online per acquistare la soluzione più adatta alle tue esigenze.
Affidati all’esperienza decennale dei nostri esperti e richiedi l’assistenza gratuita per la presentazione e compilazione dell’offerta.
Contattaci subito. --- annuncio pubblicato con GESTIONALEIMMOBILIARE.it