ioaffitto.it TROVA casa. VIVI SEMPLICE.
Nuova ricerca
Pubblica annuncio
Annunci sponsorizzati
Agenzie
Valutazione-immobile
Servizi
Luce Gas Fibra
Mutui
Finanziamenti
Ricerca Internazionale
Servizi web
Servizio partecipazione asta
Pubblica annuncio
Accedi
Nuovo
1/20
2/20
3/20
4/20
5/20
6/20
7/20
8/20
9/20
10/20
11/20
12/20
13/20
14/20
15/20
16/20
17/20
18/20
19/20
20/20
20
Foto
1
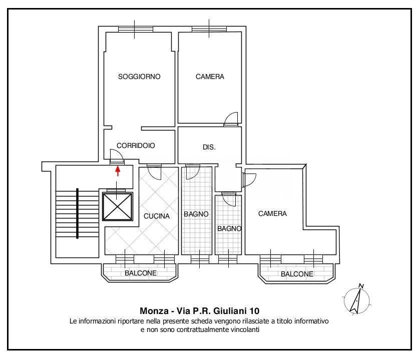
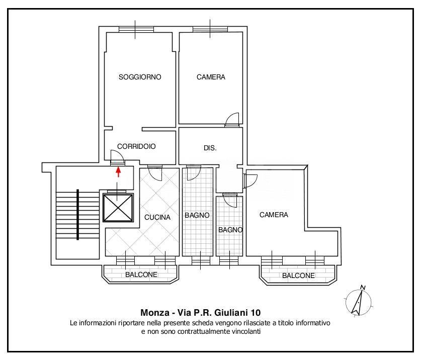
planimetria
Appartamento in affitto in via Padre Reginaldo Giuliani 10 a Monza
€ 1.300,00
al mese
3
locali
2
bagni
112
mq
Nel cuore del centro storico di Monza, a pochi passi da Piazza Trento e Trieste, proponiamo un appartamento, parzialmente arredatio, situato al quarto piano di un elegante palazzo con servizio di portineria full time. Labitazione è ampia e luminosa, con una disposizione degli spazi funzionale e accogliente. Lingresso conduce a un soggiorno spazioso, perfetto per il relax o per accogliere ospiti, e a una cucina abitabile dotata di balcone.
La zona notte comprende due camere matrimoniali, una delle quali con balcone, e due bagni entrambi finestrati, ideali per garantire aerazione e comfort. Lappartamento gode di una doppia esposizione che assicura una buona luminosità durante tutta la giornata. Gli infissi sono nuovi e dotati di doppi vetri, a beneficio dellisolamento termico e acustico. Completano la soluzione laria condizionata e il riscaldamento centralizzato a pavimento.
Unopportunità ideale per chi desidera vivere in centro, in un contesto comodo e ben curato.
RIFERIMENTO ANNUNCIO
946
DATA ANNUNCIO
25 marzo 2026
DATA ULTIMO AGGIORNAMENTO
25 marzo 2026
CONTRATTO
Affitto
TIPOLOGIA
Appartamento
SUPERFICIE
112 m²
locali
3
TIPO PROPRIETA'
Standard
ALTRE CARATTERISTICHE'
balcone disponibile
cantina
portineria disponibile
parzialmente arredata
giardino non presente
riscaldamento centralizzato
cucina abitabile
ascensore
posto auto assente
videocitofono
Costi
€ 1.300,00
al mese
Stato
Ottime
Classe energetica
D
164 kwh_m2
a+
a
b
c
d
e
f
g
Mappa della zona dell'immobile
Ingrandisci mappa
Segnala un problema
Servizi per te
Inserzionista
Valtorta Srl
Vai al sito web
Codice annuncio:
2667
Riferimento immobile:
946
Mostra numero
Tel: 039 2363
Invia email
Motivo contatto
Appuntamento
Più informazioni
Richiesta di contatto
Più foto e materiali
Nome e cognome*
Email*
Cellulare
Messaggio*
ATTENZIONE ALLE TRUFFE
NON ANTICIPARE MAI denaro su carte ricaricabili, conti correnti esteri, money transfer o altri sistemi di pagamento
Accettazione*
Ho letto, sono maggiorenne e accetto
condizioni
,
privacy
e
Consigli antitruffa
Invia
Chiama
Contatta
Visita
Richiedi visita
Scopri subito quanto vale la tua casa per l'affitto o per la vendita!
Valuta gratis
Altri annunci simili
Appartamento in affitto in Via Zanata 1 a Monza
MONZA - ISOLA PEDONALE - In posizione centralissima, ideale per raggiungere tranquillamente a pie...
€ 1.500
4
locali
140 ㎡
superficie
2
bagni
Appartamento in affitto in Zona Ospedale San Gerardo 20 a Monza
Buongiorno mi chiamo Valentina ho 22 anni io mia mamma e il suo compagno cerchiamo un bel apparta...
€ 1.500
3
locali
100 ㎡
superficie
2
bagni
Appartamento in affitto a Monza
In via Mentana, in posizione strategica a pochi passi dalla stazione ferroviaria e dal cuore puls...
€ 1.400
3
locali
80 ㎡
superficie
2
bagni
Appartamento in affitto in Via Fratelli Cairoli 2 a Monza
MONZA ad.ze centro - a due passi dall'isola pedonale e dalla stazione ferroviaria, proponiamo in ...
€ 1.300
2
locali
70 ㎡
superficie
1
bagni
Appartamento in affitto in Via Passerini 9 a Monza
MONZA - Centro storico - in stabile signorile con ascensore, proponiamo in locazione un appartam...
€ 1.100
3
locali
90 ㎡
superficie
1
bagni
Appartamento in affitto in VIA GAETANA AGNESI 2 a Monza
AMPIO BILOCALE 55 mq MONZA completamente arredato e corredato All Inclusive Adiacente centro s...
€ 1.400
2
locali
55 ㎡
superficie
1
bagni
Annunci immobiliari nella stessa zona
Comune di Monza:
Affitto Case Monza
|
Affitto Appartamenti Monza
|
Agenzie immobiliari Monza
|
Provincia di Monza e della Brianza:
Affitto Case Monza e della Brianza
|
Affitto Appartamenti Monza e della Brianza
|
Agenzie immobiliari Monza e della Brianza
|
Email
Password
Ricordami
Registrati adesso
Sei una agenzia?
Password dimenticata?