ioaffitto.it TROVA casa. VIVI SEMPLICE.
Nuova ricerca
Pubblica annuncio
Annunci sponsorizzati
Agenzie
Valutazione-immobile
Servizi
Luce Gas Fibra
Mutui
Finanziamenti
Ricerca Internazionale
Servizi web
Pubblica annuncio
Accedi
Nuovo
1/5
2/5
3/5
4/5
5/5
5
Foto
1
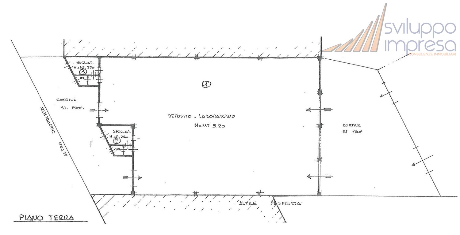
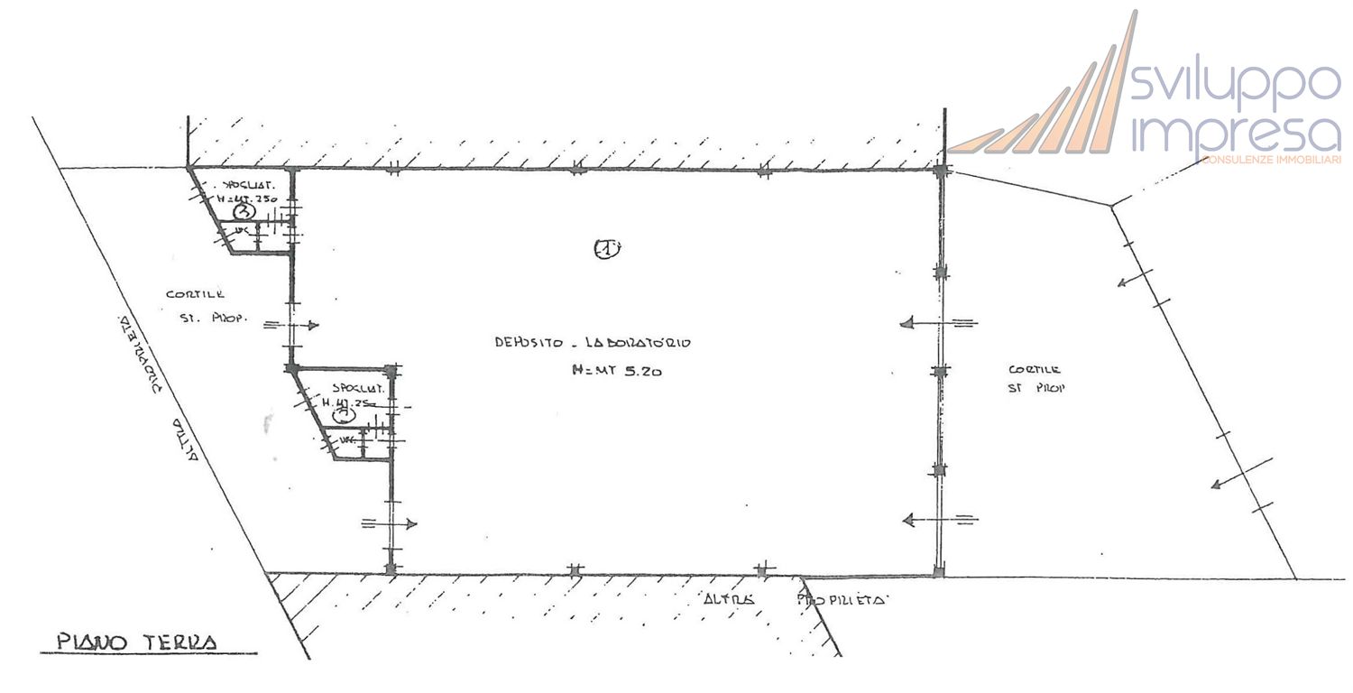
planimetria
Capannone industriale in affitto a Cologno Monzese
€ 3.167,00
al mese
1
locali
2
bagni
500
mq
Cologno Monzese (MI) – In Via Buonarroti, in posizione strategica a ridosso delle principali tangenziali, proponiamo in locazione un capannone artigianale di circa 500 mq. L’immobile, dalla pianta regolare, presenta un’altezza interna di circa 6 metri sotto trave ed è dotato di impianto elettrico, doppi servizi e doppio accesso carraio che agevola le operazioni di carico e scarico. A completare la proprietà vi è un cortile privato sia nella parte frontale che sul retro dello stabile, ideale per la movimentazione di mezzi e lo stoccaggio esterno. Libero Subito. AFFITTASI.
RIFERIMENTO ANNUNCIO
4170
DATA ANNUNCIO
9 aprile 2026
DATA ULTIMO AGGIORNAMENTO
9 aprile 2026
CONTRATTO
Affitto
TIPOLOGIA
Capannone industriale
SUPERFICIE
500 m²
locali
1
PIANO
Terra
TIPO PROPRIETA'
Standard
ALTRE CARATTERISTICHE'
balcone disponibile
giardino comunale
cucina assente
posto auto non presente
terrazzo disponibile
Costi
€ 3.167,00
al mese
Mappa della zona dell'immobile
Ingrandisci mappa
Segnala un problema
Servizi per te
Inserzionista
Sviluppo Impresa Srl
Vai al sito web
Codice annuncio:
4170
Riferimento immobile:
4170
Mostra numero
Tel: 0224412650
Invia email
Motivo contatto
Appuntamento
Più informazioni
Richiesta di contatto
Più foto e materiali
Nome e cognome*
Email*
Cellulare
Messaggio*
ATTENZIONE ALLE TRUFFE
NON ANTICIPARE MAI denaro su carte ricaricabili, conti correnti esteri, money transfer o altri sistemi di pagamento
Accettazione*
Ho letto, sono maggiorenne e accetto
condizioni
,
privacy
e
Consigli antitruffa
Invia
Chiama
Contatta
Visita
Richiedi visita
Scopri subito quanto vale la tua casa per l'affitto o per la vendita!
Valuta gratis
Altri annunci simili
a
a
a
a
a
a
Annunci immobiliari nella stessa zona
Comune di Cologno Monzese:
Affitto Attività/immobili commerciali Cologno Monzese
|
Affitto Capannoni industriali Cologno Monzese
|
Agenzie immobiliari Cologno Monzese
|
Provincia di Milano:
Affitto Attività/immobili commerciali Milano
|
Affitto Capannoni industriali Milano
|
Agenzie immobiliari Milano
|
Email
Password
Ricordami
Registrati adesso
Sei una agenzia?
Password dimenticata?