ioaffitto.it TROVA casa. VIVI SEMPLICE.
Nuova ricerca
Pubblica annuncio
Annunci sponsorizzati
Agenzie
Valutazione-immobile
Servizi
Luce Gas Fibra
Mutui
Finanziamenti
Ricerca Internazionale
Servizi web
Pubblica annuncio
Accedi
Nuovo
1/10
2/10
3/10
4/10
5/10
6/10
7/10
8/10
9/10
10/10
10
Foto
1
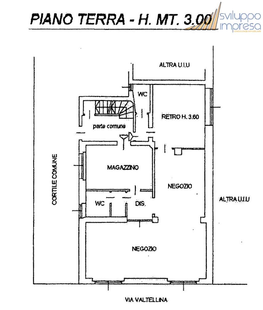
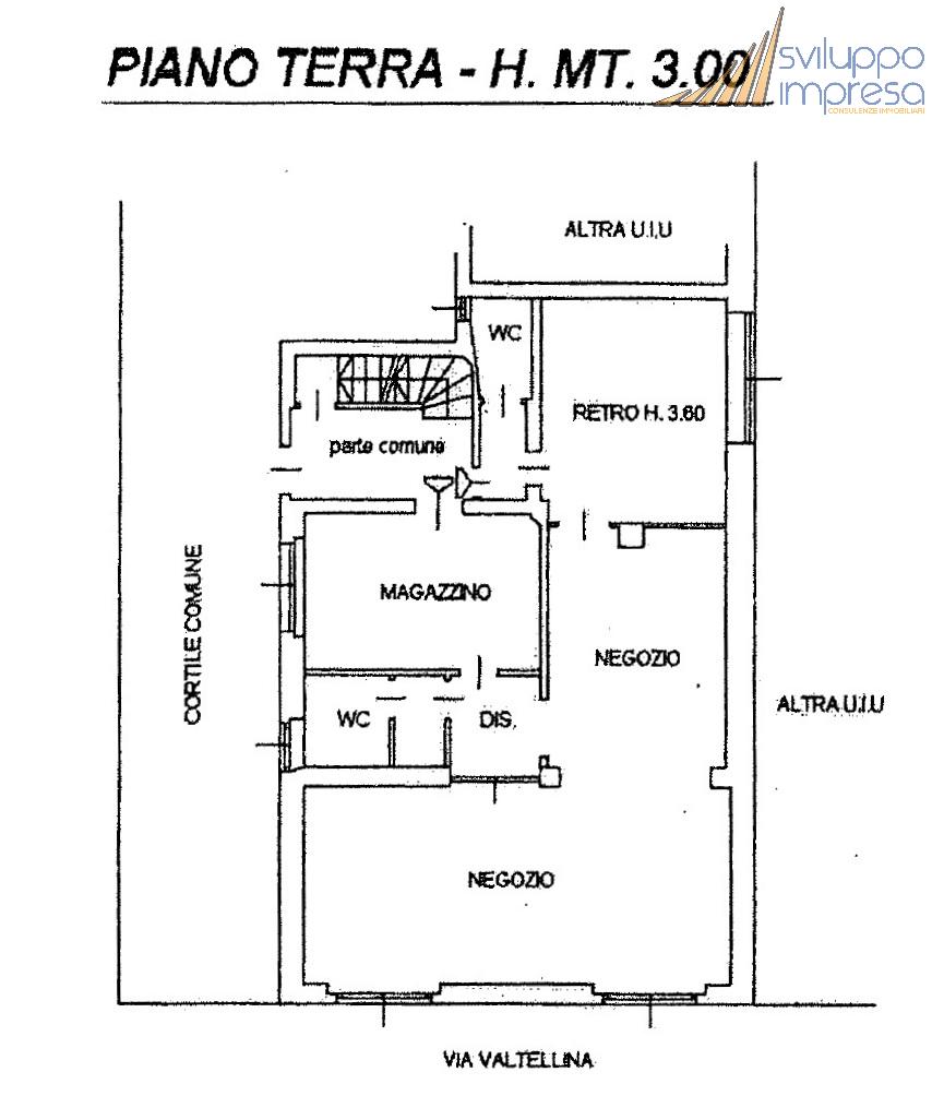
planimetria
Negozio in affitto in via valtellina 55/57 a Cinisello Balsamo
€ 1.100,00
al mese
4
locali
2
bagni
114
mq
Cinisello Balsamo (MI), fronte viale Valtellina, in prossimità delle principali arterie stradali ed autostradali, proponiamo negozio suddiviso in 3 locali più una zona open space oltre doppi servizi. L'immobile è in ottimo stato di manutenzione essendo stato completamente ristrutturato da poco. Dispone di un impianto di climatizzazione estiva ed invernale autonomo con split. Il negozio si trova a breve distanza dalla futura fermata della linea metropolitana M1 in fase di realizzazione. AFFITTASI.
RIFERIMENTO ANNUNCIO
3616
DATA ANNUNCIO
31 marzo 2026
DATA ULTIMO AGGIORNAMENTO
31 marzo 2026
CONTRATTO
Affitto
TIPOLOGIA
Negozio
SUPERFICIE
114 m²
locali
4
PIANO
Terra
TIPO PROPRIETA'
Standard
ALTRE CARATTERISTICHE'
balcone disponibile
giardino privato
riscaldamento autonomo
cucina assente
posto auto non presente
terrazzo disponibile
Costi
€ 1.100,00
al mese
Mappa della zona dell'immobile
Ingrandisci mappa
Segnala un problema
Servizi per te
Inserzionista
Sviluppo Impresa Srl
Vai al sito web
Codice annuncio:
3616
Riferimento immobile:
3616
Mostra numero
Tel: 0224412650
Invia email
Motivo contatto
Appuntamento
Più informazioni
Richiesta di contatto
Più foto e materiali
Nome e cognome*
Email*
Cellulare
Messaggio*
ATTENZIONE ALLE TRUFFE
NON ANTICIPARE MAI denaro su carte ricaricabili, conti correnti esteri, money transfer o altri sistemi di pagamento
Accettazione*
Ho letto, sono maggiorenne e accetto
condizioni
,
privacy
e
Consigli antitruffa
Invia
Chiama
Contatta
Visita
Richiedi visita
Scopri subito quanto vale la tua casa per l'affitto o per la vendita!
Valuta gratis
Altri annunci simili
Negozio in affitto in via lecco 3 a Monza
Monza via Lecco 3, adiacenze centro storico, proponiamo in locazione negozio una luce completamen...
€ 1.200
1
locali
54 ㎡
superficie
Negozio in affitto in Via Matteotti 53 a Lissone
LISSONE Ad.ze Centro - In posizione di intenso passaggio pedonale e veicolare, a due passi dal ce...
€ 1.150
90 ㎡
superficie
1
bagni
Negozio in affitto a Brugherio
Brugherio centro. In zona di forte passaggio veicolare e pedonale proponiamo ottimo negozio di 75...
€ 1.000
2
locali
75 ㎡
superficie
1
bagni
Negozio in affitto in via Roma 23 a Segrate
Negozio in posizione strategica nellisola pedonale di Segrate Piazza San Francesco. Nel cuore...
€ 1.000
1
locali
57 ㎡
superficie
1
bagni
Negozio in affitto 185 a Seregno
Gentile cliente, per ricevere informazioni su questo immobile ci contatti ESCLUSIVAMENTE via mail...
€ 1.000
4
locali
80 ㎡
superficie
1
bagni
Negozio in affitto in Corso Di Porta Ticinese a Milano
La FP Real Estate propone a pochi passi da Via Torino, da Largo Carrobbio, in Corso di Porta Tici...
€ 1.180
1
locali
13 ㎡
superficie
1
bagni
Annunci immobiliari nella stessa zona
Comune di Cinisello Balsamo:
Affitto Attività/immobili commerciali Cinisello Balsamo
|
Affitto Negozi Cinisello Balsamo
|
Agenzie immobiliari Cinisello Balsamo
|
Provincia di Milano:
Affitto Attività/immobili commerciali Milano
|
Affitto Negozi Milano
|
Agenzie immobiliari Milano
|
Email
Password
Ricordami
Registrati adesso
Sei una agenzia?
Password dimenticata?