ioaffitto.it TROVA casa. VIVI SEMPLICE.
Logo
1/1
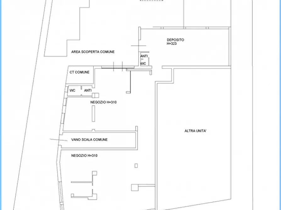
Immagine 1 di Negozio in vendita  in VIA MIRANESE 258 a Venezia
Icona foto1 Foto     Icona planimetrie 0 planimetria

Negozio in vendita in VIA MIRANESE 258 a Venezia

€ 650.000,00
prezzo di vendita
-
locali
-
bagni
400
mq
NOSTRO RIF. IMM-204 Mestre, via Miranese n. 258 - NS ESCLUSIVA
Proponiamo in vendita IMMOBILE A REDDITO costituito da un negozio di 400 mq fronte strada con 4 vetrine. Il negozio è stato interamente restaurato nel 2025, dispone di parcheggi pubblici nel fronte e nel retro e dello spazio per carico/scarico su scoperto privato. L'immobile è occupato da LUBE CUCINE con contratto di locazione a € 54.000 + IVA annui, stipulato nel 2025 e garantito da fideiussione bancaria di 12 mesi. Prezzo richiesto € 650.000. APE in fase di definizione. --- annuncio pubblicato con GESTIONALEIMMOBILIARE.it
RIFERIMENTO ANNUNCIO
gestimm-4610209
DATA ANNUNCIO
6 agosto 2025
DATA ULTIMO AGGIORNAMENTO
6 agosto 2025
CONTRATTO
Vendita
TIPOLOGIA
Negozio
SUPERFICIE
400 m²
PIANO
Non disponibile
TIPO PROPRIETA'
Standard
ALTRE CARATTERISTICHE'
soffitta / mansarda cantina garage cucina presente cucina abitabile stato di manutenzione ottimo taverna
Costi
€ 650.000,00
prezzo di vendita
Classe energetica IN CORSO DI VALUTAZIONE
a+ a b c d e f g
Mappa della zona dell'immobile

Calcola il mutuo

Inserisci i dati mutuo

Rata del mutuo
Al mese
Anticipo
Mutuo
Richiedi consulenza gratuita mutuo

Servizio erogato tramite  

Servizi per te
Inserzionista
Logo Gambaro Intermediazioni Commerciali di Marino Gambaro
Gambaro Intermediazioni Commerciali di Marino Gambaro
Marino Gambaro

Codice annuncio: 4610209

Invia email
ATTENZIONE ALLE TRUFFE
 
NON ANTICIPARE MAI denaro su carte ricaricabili, conti correnti esteri, money transfer o altri sistemi di pagamento

Scopri subito quanto vale la tua casa per l'affitto o per la vendita!

   

Altri annunci simili

Negozio in vendita in via campagnola 1 a Villorba
A Venturali di Villorba (TV), proponiamo in vendita spazio commerciale predisposto per l'attività...
€ 650.000
1300 ㎡
superficie
4
bagni
Negozio in vendita in piave vecchia a Jesolo
NOSTRO RIF. IMM-200 In posizione strategica e di grande visibilità, direzione verso Jesolo, propo...
€ 650.000
430 ㎡
superficie
Negozio in vendita in SPRESIANO a Spresiano
NOSTRO RIF. IMM-202 Spresiano (TV) fronte Pontebbana, proponiamo in vendita a reddito IMMOBILE C/...
€ 650.000
750 ㎡
superficie
Negozio in vendita in Via C. B Cavour n. 79 Este a Stanghella
Fabbricato composto al piano terra da un locale di circa 630 mq. con destinazione in parte commer...
€ 670.000
1500 ㎡
superficie