ioaffitto.it TROVA casa. VIVI SEMPLICE.
Logo
Nuovo
1/5
Immagine 1 di Rustico / casale in vendita  a Sossano
2/5
Immagine 2 di Rustico / casale in vendita  a Sossano
3/5
Immagine 3 di Rustico / casale in vendita  a Sossano
4/5
Immagine 4 di Rustico / casale in vendita  a Sossano
5/5
Immagine 5 di Rustico / casale in vendita  a Sossano
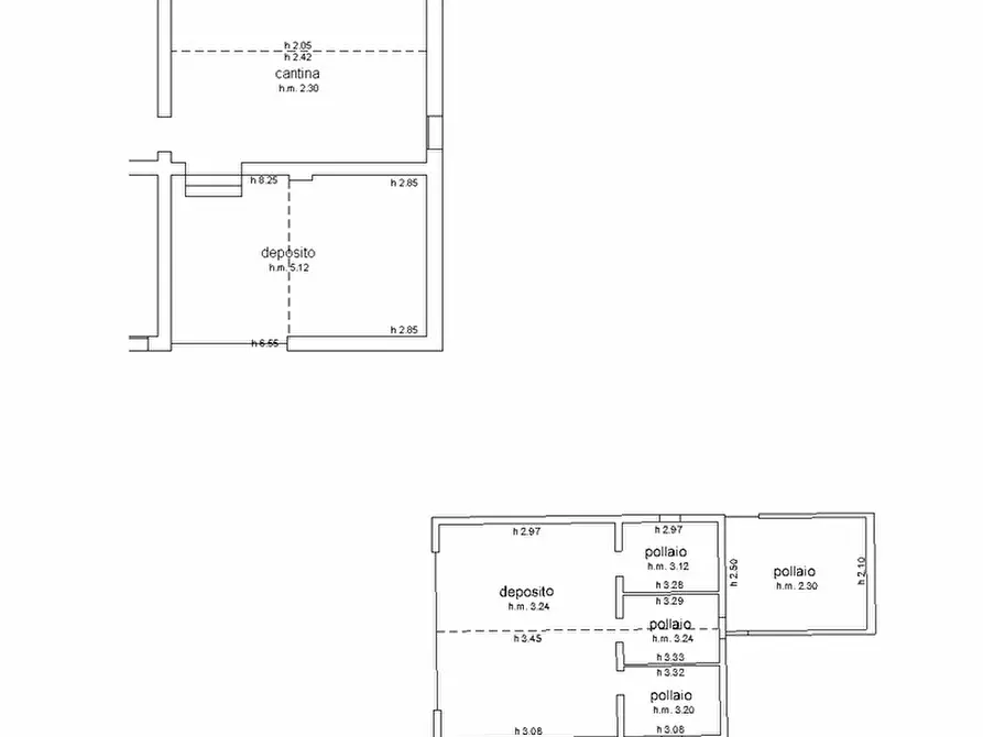
Icona foto5 Foto     Icona planimetrie 0 planimetria

Rustico / casale in vendita a Sossano

€ 340.000,00
prezzo di vendita
5
locali
1
bagni
465
mq
A Sossano, in prima zona collinare, proponiamo in vendita rustico da ristrutturare con circa 2 ettari di terreno circostante.

L’immobile, di circa 270 mq abitativi, offre ampi spazi e la possibilità di una ristrutturazione personalizzabile, ideale per chi desidera realizzare una residenza immersa nella tranquillità della campagna.

Completano la proprietà ulteriori 265 mq di annessi agricoli, in passato utilizzati come pollai, che offrono diverse possibilità di recupero e utilizzo.

Una soluzione interessante per chi cerca indipendenza e ampi spazi verdi, a breve distanza dal centro di Sossano.

Per maggiori informazioni contattaci. --- annuncio pubblicato con GESTIONALEIMMOBILIARE.it
RIFERIMENTO ANNUNCIO
gestimm-4854100
DATA ANNUNCIO
13 marzo 2026
DATA ULTIMO AGGIORNAMENTO
13 marzo 2026
CONTRATTO
Vendita
TIPOLOGIA
Rustico / casale
SUPERFICIE
465 m²
locali
5
PIANO
Non disponibile
TIPO PROPRIETA'
Standard
ALTRE CARATTERISTICHE'
soffitta / mansarda cantina garage doppio garage giardino cucina presente cucina abitabile taverna
Costi
€ 340.000,00
prezzo di vendita
Anno di costruzione
1948
Classe energetica G 346.97 kWh/m2anno
a+ a b c d e f g
Mappa della zona dell'immobile

Calcola il mutuo

Inserisci i dati mutuo

Rata del mutuo
Al mese
Anticipo
Mutuo
Richiedi consulenza gratuita mutuo

Servizio erogato tramite  

Servizi per te
Inserzionista
Logo Agenzia Le Corti
Agenzia Le Corti
Katia Trevisan

Codice annuncio: 4854100

Invia email
ATTENZIONE ALLE TRUFFE
 
NON ANTICIPARE MAI denaro su carte ricaricabili, conti correnti esteri, money transfer o altri sistemi di pagamento

Scopri subito quanto vale la tua casa per l'affitto o per la vendita!

   

Altri annunci simili