ioaffitto.it TROVA casa. VIVI SEMPLICE.
Nuova ricerca
Pubblica annuncio
Annunci sponsorizzati
Agenzie
Valutazione-immobile
Servizi
Luce Gas Fibra
Mutui
Finanziamenti
Ricerca Internazionale
Servizi web
Servizio partecipazione asta
Pubblica annuncio
Accedi
Nexus Immobiliare Srls
61032 - Fano
P.IVA: 02839530413
Referente: Elisa Volz
Chiama
Contatta
Annunci pubblicati dall'agenzia
Nexus Immobiliare Srls
Ordina per rilevanza
Ordina per rilevanza
Ordina per prezzo crescente
Ordina per prezzo decrescente
Ordina per superficie crescente
Ordina per superficie decrescente
3
Casa indipendente in vendita in via Parrocchia Cattedrale 57 a Fossombrone
€ 27.648,00
3
locali
150
mq
Piena proprietà di immobile della superficie commerciale di 150,30 mq. L’immobile si sviluppa su due piani: terra e seminterrato. Il piano seminterrato è per tre lati totalmente fuori terra e l'unica parete contro terra è quella del garage. Al pia...
Chiama
Contatta
Visita
8
Appartamento in vendita in Via Palmiro Togliatti n. 6 a Fano
€ 114.867,00
4
locali
139
mq
Fano - zona Flaminio - appartamento al terzo piano con ascensore, composto da ingresso sul vano soggiorno da cui si accede alla cucina e alla zona notte tramite il disimpegno. La zona notte è composta da tre camere da letto, un bagno ed un wc. L'...
Chiama
Contatta
Visita
13
Casa bifamiliare in vendita in Via della Resistenza Calcinelli n. 14 a Colli Al Metauro
€ 111.000,00
4
locali
162
mq
CALCINELLI - L'appartamento oggetto di vendita fa parte di una palazzina bifamiliare, composta da due appartamenti divisa in orizzontale. Il fabbricato è stato costruito nel 1969, e sono stati eseguiti diversi lavori di ristrutturazione negli anni...
Chiama
Contatta
Visita
1
Appartamento in vendita in via strada statale adriatica sud 275/B a Fano
€ 92.117,00
0
locali
108
mq
Fano - zona Metaurilia/Torrette - Appartamento facente parte di un complesso condominiale denominato "Condominio Il Gabbiano". Internamente l'abitazione è costituita da ingresso-soggiorno-cucina, due bagni, due ripostigli, disimpegno, camera da l...
Chiama
Contatta
Visita
6
Appartamento in vendita in Via Flaminia n. 205 a Cartoceto
€ 138.000,00
4
locali
187
mq
Cartoceto - Loc. Lucrezia - Appartamento al primo piano di un edificio costruito nel 1990. Immobile fa parte di un fabbricato a destinazione mista, costituito da un locale commerciale al piano terra e un'abitazione ai piani superiori. L'abitazione...
Chiama
Contatta
Visita
6
Villetta a schiera in vendita in Via Gubbio n. 6 a Colli Al Metauro
€ 58.125,00
4
locali
150
mq
Colli al Metauro - Calcinelli - Villetta a schiera centrale della superficie commerciale di 150 mq circa, con scoperti esclusivi. Costruita nel 1983, dallo scoperto esclusivo mantenuto a giardino, salendo su un terrazzo/pianerottolo esterno si acc...
Chiama
Contatta
Visita
4
Appartamento in vendita in Via dei Cartaginesi n. 16 a Colli Al Metauro
€ 63.750,00
4
locali
102
mq
Colli al Metauro - Montemaggiore - Villanova - Appartamento in palazzina costruita nel 2004 posto al primo piano con ascensore. L'immobile è composto da un ampio locale composto da ingresso, soggiorno e cucina, dotato di una porta finestra e una f...
Chiama
Contatta
Visita
16
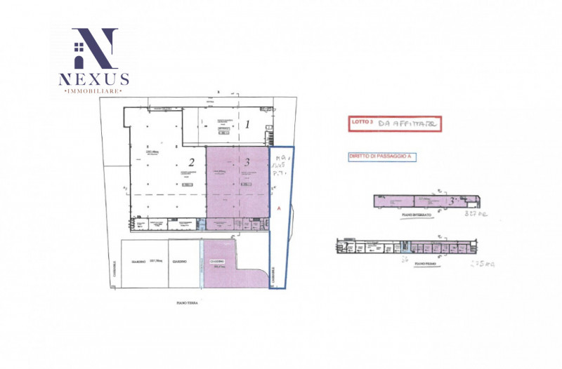
Capannone industriale in affitto in Via Luigi Einaudi 4 a Fano
€ 9.000,00
6
locali
2047
mq
Affittasi porzione di capannone sito a Bellocchi di Fano, di complessivi 2000 mq circa (in rosa nella planimetria) + scoperto. L'immobile è in categoria D7 ed è costituito da: AL PIANO TERRA: superficie di mq 1.445 con officina (altezza 5,48 m so...
Chiama
Contatta
Visita
6
Appartamento in vendita in Via della Tombaccia n.49 a Fano
€ 101.250,00
4
locali
207
mq
Fano - Tombaccia - Appartamento di circa 207 mq, posto al primo piano di un fabbricato ad uso artigianale. L'immobile ha un accesso indipendente con portone sulla corte ed attraverso un vano scala esclusivo si accede al primo piano. L'unità è comp...
Chiama
Contatta
Visita
13
Appartamento in vendita in Strada Nazionale Adriatica Sud 399 a Fano
€ 97.000,00
2
locali
0
mq
Proponiamo in vendita un accogliente appartamento bilocale situato nella tranquilla zona di Ponte Sasso, nel comune di Fano. L'immobile si trova all'interno di una palazzina ben tenuta e gode di un'ottima posizione, a due passi dal sottopasso pedo...
Chiama
Contatta
Visita
<
1
2
3
4
5
6
7
8
9
10
>
Email
Password
Ricordami
Registrati adesso
Sei una agenzia?
Password dimenticata?