ioaffitto.it TROVA casa. VIVI SEMPLICE.
Nuova ricerca
Pubblica annuncio
Annunci sponsorizzati
Agenzie
Valutazione-immobile
Servizi
Luce Gas Fibra
Mutui
Finanziamenti
Ricerca Internazionale
Servizi web
Pubblica annuncio
Accedi
Union Service srl
Via Bianchi, 16
43015 - Noceto
P.IVA: 01599280342
Referente: Geom. Tronchini - Dott. Oddi
Chiama
Contatta
Annunci pubblicati dall'agenzia
Union Service srl
Ordina per rilevanza
Ordina per rilevanza
Ordina per prezzo crescente
Ordina per prezzo decrescente
Ordina per superficie crescente
Ordina per superficie decrescente
7
Terreno edificabile in vendita in Medesano a Medesano
€ 97.000,00
1
locali
1000
mq
MEDESANO in quartiere residenziale urbanizzato (luce/acqua/gas/fogne ecc...) proponiamo ultimo lotto edificabile per mono/bifamiliare o piccola palazzina esteso per 1.000 mq con assegnati 230 mq circa di superficie utile oltre a superfici non resi...
Chiama
Contatta
Visita
26
Casa indipendente in vendita in via Chiesuole a Noceto
€ 218.000,00
10
locali
305
mq
AFFARE A 218.000,00 EURO! NOCETO 3 KM sud, immersa nella campagna ,proponiamo casa bifamiliare indipendente su 2 livelli oltre cantine e solai, composta da 2 appartamenti con ingressi separati, uno di 174 mq e l’altro di 131 mq catastali. Nel corp...
Chiama
Contatta
Visita
7
Terreno edificabile in vendita in Medesano a Medesano
€ 70.000,00
1
locali
1000
mq
MEDESANO vicinzanze, in ambito urbano consolidato, proponiamo in vendita 2 lotti edificabili panoramici, eventualmente abbinabili, estesi per 1.000 mq cadauno con annessi 340 mq di S.U, ideale per bifamiliari. Presenti fogne, gas, luce, acquedotto...
Chiama
Contatta
Visita
10
Terreno edificabile in vendita in via pontetaro a Noceto
€ 125.000,00
1
locali
150
mq
NEW LIFE NOCETO! REALIZZA IL TUO SOGNO! A soli 10 mn da Parma, nella verde e tranquilla campagna Nocetana, comodissima ai mezzi di comunicazione ed ai servizi proponiamo, in nuova lottizzazione , lotti edificabili per mono/bifamiliari , da 750 a 1...
Chiama
Contatta
Visita
19
Villa in vendita in Via Alberto Bricoli a Noceto
€ 291.000,00
4
locali
150
mq
NOCETO loc. Borghetto di Noceto, nella tranquillità della campagna , a 3 km da Fidenza, proponiamo ville monofamiliari indipendenti con ingresso e giardino privato o soluzioni a schiera o bifamiliari. Ampia zona giorno con soggiorno/pranzo e cucin...
Chiama
Contatta
Visita
8
Terreno edificabile in vendita in Strada Manzano a Langhirano
€ 79.000,00
1
locali
200
mq
OCCASIONE UNICA! LANGHIRANO 1 KM, Loc. Manzano, LOTTO EDIFICABILE di oltre 2.000 mq con assegnati 200 mq SLU oltre S.N.R. zona dominante, verde e tranquilla con tutti i servizi e strada asfaltata sul fronte. Possibilità di acquisto di ulteriori 3....
Chiama
Contatta
Visita
7
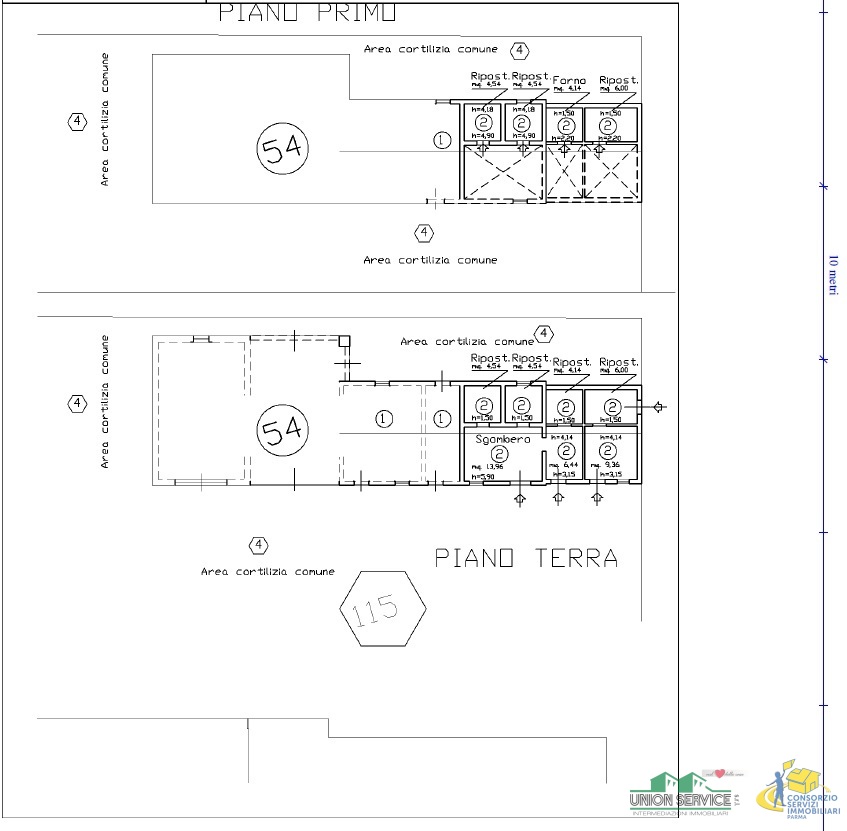
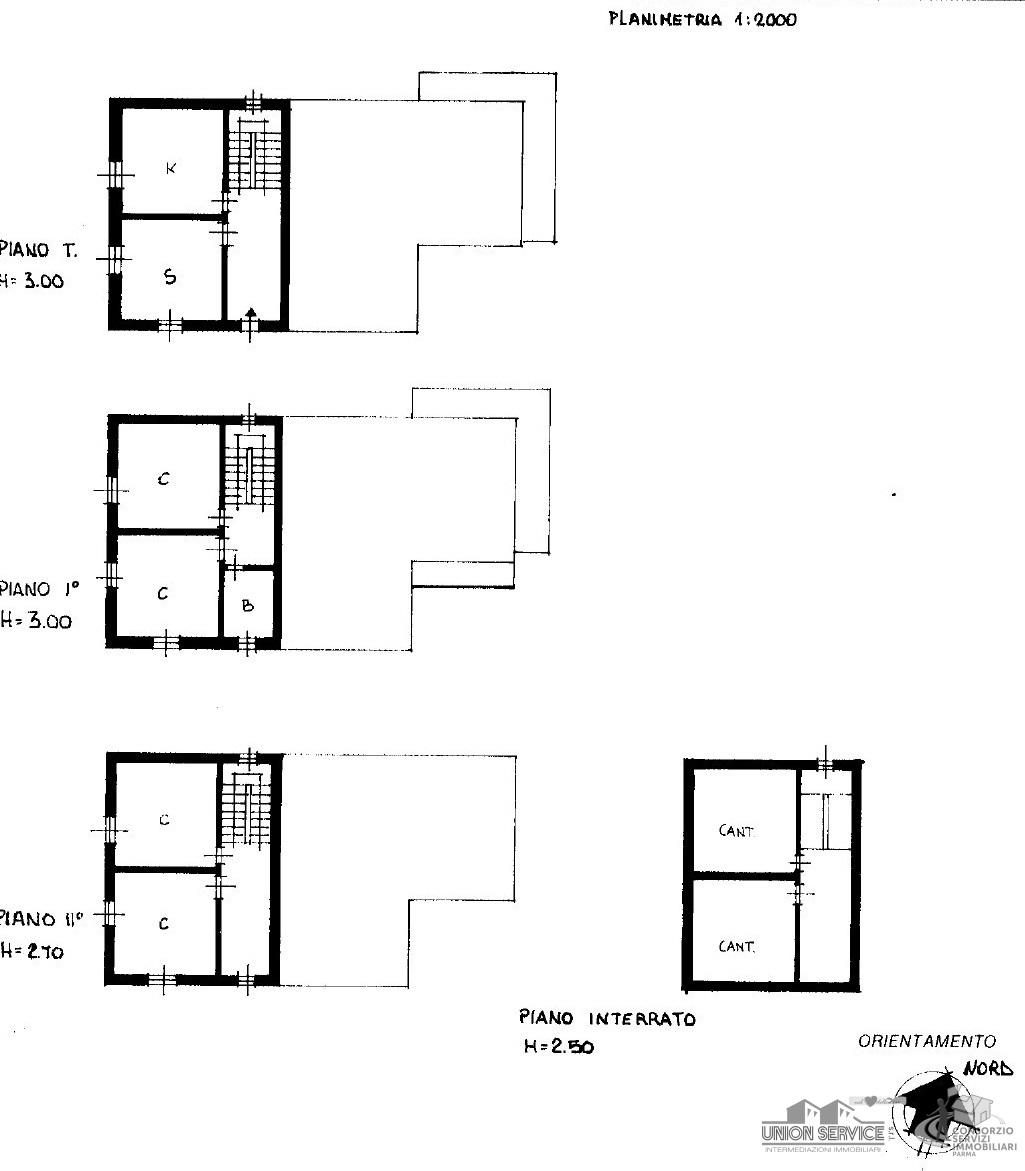
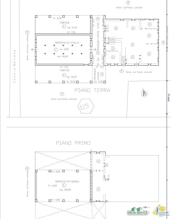
Rustico / casale in vendita a Fontevivo
€ 1,00
30
locali
1500
mq
10 KM PARMA OVEST, comoda alla viabilità, proponiamo in esclusiva casa indipendente con annessi 4.500 mq di terreno, elevata metratura (oltre 1.500 mq) porta morta, ex stalla, portici, fienile, altro immobile ad uso servizi nel cortile retrostante...
Chiama
Contatta
Visita
16
Capannone industriale in vendita in Via Marconi a Noceto
€ 455.000,00
3
locali
2300
mq
NOCETO proponiamo CAPANNONE a destinazione commerciale disposto su 3 livelli per un totale di 2.300 mq, costruito su lotto di 2.800 mq al quale è annesso al 1° piano ALLOGGIO pertinenziale di 200 mq in ottimo stato con tutti i servizi. Ampi spazi ...
Chiama
Contatta
Visita
6
Attività artigianale in vendita in Noceto a Noceto
€ 260.000,00
1
locali
550
mq
5 km da Noceto, prime colline, capannone in prefabbricato degli anni 90 indipendente, 550 mq, con facile accesso alla strada,attorniato da 55.313 mq di terreno pianeggiante con differenti altezze e tre portoni di facile acceso sulla strada per car...
Chiama
Contatta
Visita
6
Terreno agricolo in vendita in Noceto a Noceto
€ 260.000,00
1
locali
550
mq
A 5 km da Noceto. Capannone in prefabbricato degli anni 90 indipendente con facile accesso alla strada,attorniato da 55.313 mq di terreno pianeggiante, struttura con differenti altezze e tre portoni di facile acceso sulla strada per carico e scari...
Chiama
Contatta
Visita
<
1
2
3
4
5
>
Email
Password
Ricordami
Registrati adesso
Sei una agenzia?
Password dimenticata?