ioaffitto.it TROVA casa. VIVI SEMPLICE.
Nuova ricerca
Pubblica annuncio
Annunci sponsorizzati
Agenzie
Valutazione-immobile
Servizi
Luce Gas Fibra
Mutui
Finanziamenti
Ricerca Internazionale
Servizi web
Servizio partecipazione asta
Pubblica annuncio
Accedi
GESCOM
Via Gera
31015 - Conegliano
Contatta
Annunci pubblicati dall'agenzia
GESCOM
Ordina per rilevanza
Ordina per rilevanza
Ordina per prezzo crescente
Ordina per prezzo decrescente
Ordina per superficie crescente
Ordina per superficie decrescente
29
Casa indipendente in vendita in Via del Po a Jolanda Di Savoia
€ 45.000,00
10
locali
203
mq
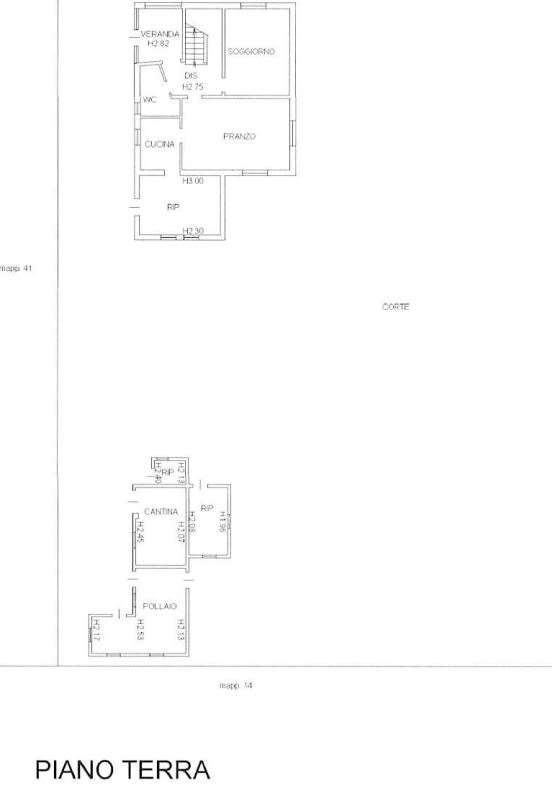
NUOVA PROPOSTA IMMOBILE DISPONIBILE Abitazione sita nel comune di Jolanda di Savoia (FE) in Via del Po. L'immobile è composto da veranda, ingresso, disimpegno, cucina, pranzo e soggiorno, con vano scala ed al piani primo composta da quattro cam...
Contatta
Visita
16
Garage in vendita in Via Giovanni Bulgarelli a Ferrara
€ 54.000,00
1
locali
93
mq
NUOVA PROPOSTA Autorimessa a Ferrara (FE) in via Giovanni Bulgarelli. Box auto con annessa area cortiliva di accesso, al piano terra, con lastrico solare di mq. 93,00. Per te la possibilità di avere un preventivo per il mutuo a condizioni vantag...
Contatta
Visita
29
Porzione di casa in vendita in Via Dogana a Cento
€ 88.500,00
5
locali
121
mq
NUOVA PROPOSTA IMMOBILE LIBERO Trattasi di abitazione disposta al piano terra e primo con annessa autorimessa, posto auto e area cortiliva esclusiva, il tutto sito in Comune di Cento (FE), via Dogana. L'immobile è composto da ingresso/soggiorno...
Contatta
Visita
22
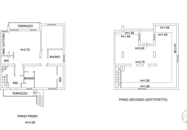
Appartamento in vendita in Via Giovanni Bulgarelli a Ferrara
€ 54.750,00
5
locali
95
mq
NUOVA PROPOSTA IMMOBILE DISPONIBILE Abitazione a Ferrara (FE) in via Giovanni Bulgarelli. Unità situata al primo piano di un edificio residenziale, composta da due camere, cucina, bagno, ripostiglio, un luminoso soggiorno e ripostiglio. Questo ...
Contatta
Visita
21
Appartamento in vendita in Strada Pavia Melegnano a Lardirago
€ 50.025,00
4
locali
60
mq
NUOVA PROPOSTA IMMOBILE DISPONIBILE Trattasi di un appartamento in strada Pavia Melegnano, nel comune di Lardirago PV. L'appartamento è posto al primo piano ed è composto da un soggiorno-pranzo con angolo cottura e con balcone esposto a sud, un...
Contatta
Visita
34
Appartamento in vendita in Strada di Rimpi a Vallefoglia
€ 93.000,00
6
locali
204
mq
NUOVA PROPOSTA IMMOBILE DISPONIBILE Trattasi di un appartamento in Strada di Rimpi, nel comune di Vallefoglia (PU). L'appartamento è posto al piano primo di un edificio bifamiliare al quale si accede tramite scala in acciaio esterna scoperta, ba...
Contatta
Visita
16
Terreno edificabile in vendita in Via IV Novembre a Colli Al Metauro
€ 98.400,00
1
locali
1727
mq
NUOVA PROPOSTA IMMOBILE LIBERO Trattasi di un terreno edificabile in via IV Novembre, nel comune di Colli al Metauro (PU), frazione Serrungarina, avente una superficie complessiva di 1727mq. Per te la possibilità di avere un preventivo per il ...
Contatta
Visita
20
Appartamento in vendita in via Marco Polo a Bologna
€ 56.250,00
6
locali
105
mq
NUOVA PROPOSTA IMMOBILE DISPONIBILE Trattasi di un appartamento a Bologna (BO) in Via Marco Polo. L'alloggio è provvisto di ascensore ed è composto da un ingresso, un disimpegno, due camere da letto, un soggiorno che ha anche funzione di sala ...
Contatta
Visita
19
Appartamento in vendita in Via della Gioia a Vigevano
€ 51.750,00
4
locali
74
mq
NUOVA PROPOSTA IMMOBILE DISPONIBILE Trattasi di un appartamento in via della Gioia, nel comune di Vigevano PV. L'abitazione è posta al piano terzo, composta da: corridoio d'ingresso, cucina, soggiorno, due camere, bagno e balcone. Fa parte della...
Contatta
Visita
16
Terreno edificabile in vendita in Via Lago di Albano a Fano
€ 225.000,00
1
locali
1636
mq
NUOVA PROPOSTA IMMOBILE LIBERO Trattasi di un terreno edificabile in via Lago di Albano, nel comune di Fano (PU). Terreno situato in una posizione strategica e ben collegata, della superficie di 1636 mq. Situati in una zona tranquilla, poco dist...
Contatta
Visita
<
215
216
217
218
219
220
221
222
223
224
225
226
227
228
229
230
>
Email
Password
Ricordami
Registrati adesso
Sei una agenzia?
Password dimenticata?