ioaffitto.it TROVA casa. VIVI SEMPLICE.
Nuova ricerca
Pubblica annuncio
Annunci sponsorizzati
Agenzie
Valutazione-immobile
Servizi
Luce Gas Fibra
Mutui
Finanziamenti
Ricerca Internazionale
Servizi web
Pubblica annuncio
Accedi
Venturoli&Partners di Venturoli Riccardo
25081 - Bedizzole
P.IVA: 03559720986
Referente: Riccardo Venturoli
Chiama
Contatta
Annunci pubblicati dall'agenzia
Venturoli&Partners di Venturoli Riccardo
Ordina per rilevanza
Ordina per rilevanza
Ordina per prezzo crescente
Ordina per prezzo decrescente
Ordina per superficie crescente
Ordina per superficie decrescente
16
Appartamento in vendita in Via Trento a Toscolano-Maderno
€ 220.000,00
2
locali
94
mq
Proponiamo in vendita un interessante appartamento bilocale di ben 94 mq, situato nel suggestivo centro storico di Toscolano Maderno, in fase di ultimazione (ristrutturazione totale). L’immobile si sviluppa su due livelli, caratterizzati da ambien...
Chiama
Contatta
Visita
16
Terreno in vendita in via valsorda a Lonato del Garda
€ 270.000,00
0
locali
4000
mq
Vendiamo a ridosso dei Barcuzzi di Lonato operazione immobiliare a riconversione fabbricato agricolo dismesso LR 40 TER 1700 di SL a disposizione. Possibilità 15 unità immobiliari. 4000 mq di sviluppo residenziale. Affare --- annuncio pubblicato c...
Chiama
Contatta
Visita
22
Attico in vendita in piazza buffoli a Brescia
€ 970.000,00
4
locali
160
mq
Proponiamo in vendita, in esclusiva per la nostra clientela, un raffinato attico di 160 mq situato nel centro di Brescia. Questa residenza unica si distingue per l’ampio e luminoso open space living dal design contemporaneo, valorizzato da pavimen...
Chiama
Contatta
Visita
15
Terreno in vendita in via pergola a Soiano Del Lago
€ 0,00
0
locali
216645
mq
In vendita a Soiano del Lago, proponiamo in esclusiva un'imponente proprietà agricola di ben 216.645 mq. Questa vasta estensione comprende due cascine da ristrutturare, una sorgente e una strada privata che circonda l'intero terreno. I suoli sono ...
Chiama
Contatta
Visita
11
Terreno in vendita in strada dei quarti a Calcinato
€ 146.000,00
0
locali
733
mq
Proponiamo in vendita un terreno edificabile urbanizzato situato a Calcinato. Con una superficie totale di 2200 mq, questo terreno offre l'opportunità unica di essere frazionato in tre lotti distinti, ciascuno con circa 733 mq. Questa flessibilità...
Chiama
Contatta
Visita
13
Terreno in vendita in Via Cecina a Toscolano-Maderno
€ 800.000,00
5
locali
3000
mq
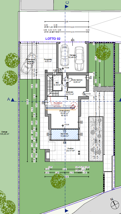
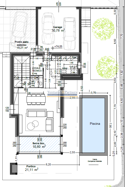
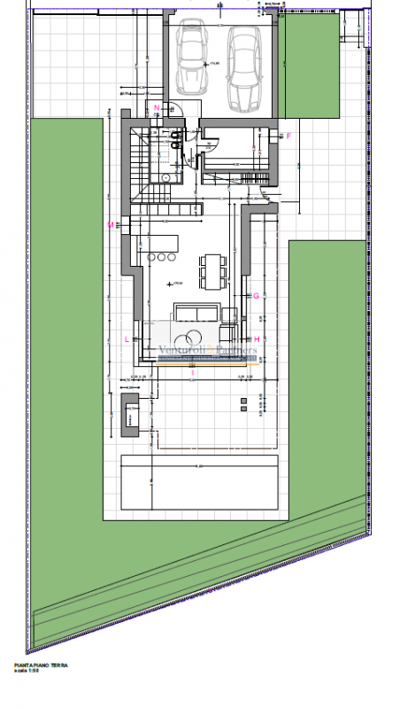
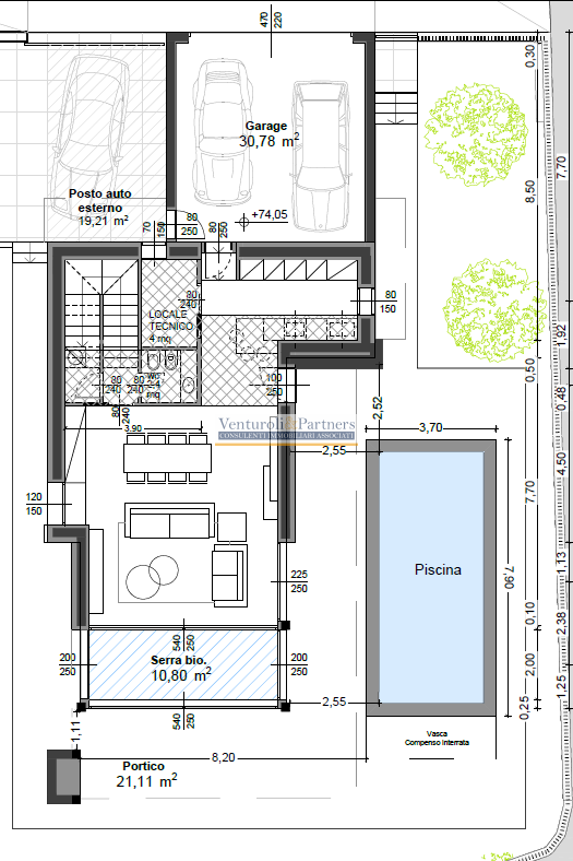
In posizione esclusiva tra le colline di Toscolano Maderno, proponiamo in vendita l’innovativa Villa Giada: un progetto moderno approvato che ridefinisce il concetto di abitare sul Lago di Garda. La villa si sviluppa su due livelli (piano terra e ...
Chiama
Contatta
Visita
28
Capannone industriale in vendita in Via dell'Artigianato a Padenghe Sul Garda
€ 750.000,00
4
locali
582
mq
Scopri questa straordinaria opportunità di investimento nel cuore di Padenghe sul Garda! Proponiamo in vendita un capannone versatile e ben posizionato, ideale per attività commerciali o come soluzione logistica. Il Magazzino ha una superficie t...
Chiama
Contatta
Visita
16
Appartamento in vendita in Località Rondinelli 2F a Peschiera Del Garda
€ 220.000,00
2
locali
40
mq
Scopri questo affascinante appartamento bilocale situato nel cuore di San Benedetto di Lugana, una delle zone più tranquille e ricercate di Peschiera del Garda. Con i suoi 40 mq ben distribuiti, questa proprietà offre un ambiente accogliente e lum...
Chiama
Contatta
Visita
32
Villa in vendita in Via Palmiro Togliatti a Desenzano Del Garda
€ 1.270.000,00
3
locali
245
mq
A Desenzano del Garda, in una delle zone residenziali più richieste e tranquille della città, proponiamo in vendita esclusiva una villa unifamiliare dal design contemporaneo che incarna il massimo del comfort abitativo e dell’eleganza architettoni...
Chiama
Contatta
Visita
14
Appartamento in vendita in Piazza dè Medici a Gavardo
€ 150.000,00
3
locali
85
mq
Scopri il tuo nuovo rifugio nel centro di Gavardo, dove eleganza e comfort si uniscono perfettamente. Questo spazioso appartamento trilocale di 85 mq è l'ideale per chi cerca una soluzione abitativa ampia e funzionale. Situato a pochi passi dai pr...
Chiama
Contatta
Visita
<
6
7
8
9
10
11
12
13
14
15
16
17
18
19
20
21
>
Email
Password
Ricordami
Registrati adesso
Sei una agenzia?
Password dimenticata?