ioaffitto.it TROVA casa. VIVI SEMPLICE.
Nuova ricerca
Pubblica annuncio
Annunci sponsorizzati
Agenzie
Valutazione-immobile
Servizi
Luce Gas Fibra
Mutui
Finanziamenti
Ricerca Internazionale
Servizi web
Servizio partecipazione asta
Pubblica annuncio
Accedi
LA FENICE MARTINA FRANCA Srl
74015 - Martina Franca
P.IVA: 03136970732
Referente: Pietro Biasi
Chiama
Contatta
Annunci pubblicati dall'agenzia
LA FENICE MARTINA FRANCA Srl
Ordina per rilevanza
Ordina per rilevanza
Ordina per prezzo crescente
Ordina per prezzo decrescente
Ordina per superficie crescente
Ordina per superficie decrescente
27
Rustico / casale in vendita in contrada ulmo a Martina Franca
€ 225.000,00
12
locali
300
mq
Proponiamo in vendita un affascinante complesso di trulli e lamia, situato nel suggestivo paesaggio della Contrada Ulmo, nel territorio di Ceglie Messapica, a metà strada tra Martina Franca e Ceglie, in una zona panoramica tipica della Puglia. La ...
Chiama
Contatta
Visita
28
Rustico / casale in vendita in SP14 a Ceglie Messapico
€ 230.000,00
3
locali
70
mq
Via Ostuni, a circa 10 km dal centro urbano di Martina Franca, proponiamo in vendita una pittoresca casa di campagna situata nelle vicinanze di 'Masseria Recupero' e Contrada Galante. Con una posizione dominante che offre una vista mozzafiato su...
Chiama
Contatta
Visita
25
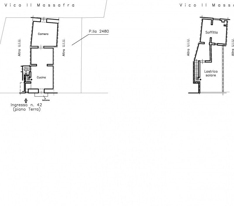
Casa indipendente in vendita in vico IV AGESILAO MILANO a Martina Franca
€ 78.000,00
4
locali
115
mq
Vico IV Agesilao Milano, nel cuore del centro storico di Martina Franca, proponiamo in vendita una splendida soluzione a piano rialzato con un doppio ingresso su ballatoio comune. L'immobile si sviluppa su due livelli, offrendo ampi spazi e una di...
Chiama
Contatta
Visita
53
Casa indipendente in vendita in via maddalena 59 a Ceglie Messapico
€ 98.000,00
2
locali
65
mq
Nel cuore pulsante del centro storico di Ceglie Messapica, a pochi metri dal maestoso Castello Ducale, proponiamo in vendita una raffinata abitazione indipendente su due livelli di circa 65 mq complessivi compreso di aree scoperte, incastonata in ...
Chiama
Contatta
Visita
25
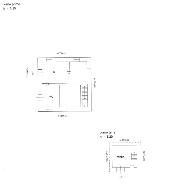
Rustico / casale in vendita in Strada Provinciale 14 Ostuni - Martina a Martina Franca
€ 25.000,00
2
locali
30
mq
Contrada Pascarosa, nel territorio di Ceglie Messapica (BR) a 10 km dal centro urbano di Martina Franca; proponiamo in vendita terreno e fabbricato a trulli con possibilità di ampliamento a servizi. Ideale come investimento o come residenza estiv...
Chiama
Contatta
Visita
37
Villa in vendita in strada Pilozzo a Martina Franca
€ 150.000,00
4
locali
310
mq
In Contrada San Paolo - Strada Pilozzo, nell’agro di Martina Franca, proponiamo in vendita una villa indipendente immersa nel verde ma situata in una zona abitata tutto l’anno, servita e facilmente accessibile. L’immobile è raggiungibile tramite ...
Chiama
Contatta
Visita
35
Casa indipendente in vendita in via vincenzo bellini 98 a Martina Franca
€ 118.000,00
5
locali
108
mq
In vendita, a pochi passi dalle principali piazze cittadine e dal Parcheggio Urbano "Orti del Duca", in una zona tranquilla appena fuori dalle mura del centro storico, proponiamo una casa semi-indipendente disposta su due livelli, arricchita da un...
Chiama
Contatta
Visita
18
Villa in vendita in Strada Trasconi a Martina Franca
€ 70.000,00
4
locali
110
mq
Strada via Massafra/Trasconi, a circa 7 km Martina Franca, in una zona abitata anche tutto l'anno, immersa nella campagna pugliese a pochissimi passi dalla Masseria Cappella. Proponiamo in vendita villino terraneo, da ristrutturare, con un terren...
Chiama
Contatta
Visita
49
Casa indipendente in vendita in Corso dei Mille 42 a Martina Franca
€ 75.000,00
5
locali
100
mq
In Corso Dei Mille, in zona centrale e fortemente commerciale della città proponiamo in vendita una casa semi-indipendente disposta su due livelli. Una soluzione dal fascino autentico, ricca di carattere, dettagli storici e un potenziale raro sul ...
Chiama
Contatta
Visita
47
Villa in vendita in ss172 a Martina Franca
€ 197.000,00
7
locali
175
mq
A soli 1,5 km dal centro di Martina Franca, lungo la suggestiva SS172 in direzione Taranto, proponiamo in vendita una villa bifamiliare d’epoca, a pochi minuti dai principali servizi. Due ingressi indipendenti: • Accesso carrabile con cancello el...
Chiama
Contatta
Visita
<
1
2
3
4
5
6
7
8
9
10
11
12
13
>
Email
Password
Ricordami
Registrati adesso
Sei una agenzia?
Password dimenticata?