ioaffitto.it TROVA casa. VIVI SEMPLICE.
Nuova ricerca
Pubblica annuncio
Annunci sponsorizzati
Agenzie
Valutazione-immobile
Servizi
Luce Gas Fibra
Mutui
Finanziamenti
Ricerca Internazionale
Servizi web
Servizio partecipazione asta
Pubblica annuncio
Accedi
CA REAL ESTATE di CarloAlberto Giraldi
20051 - Cassina De' Pecchi
P.IVA: 05397420968
Referente: CARLOALBERTO GIRALDI
Chiama
Contatta
Annunci pubblicati dall'agenzia
CA REAL ESTATE di CarloAlberto Giraldi
Ordina per rilevanza
Ordina per rilevanza
Ordina per prezzo crescente
Ordina per prezzo decrescente
Ordina per superficie crescente
Ordina per superficie decrescente
24
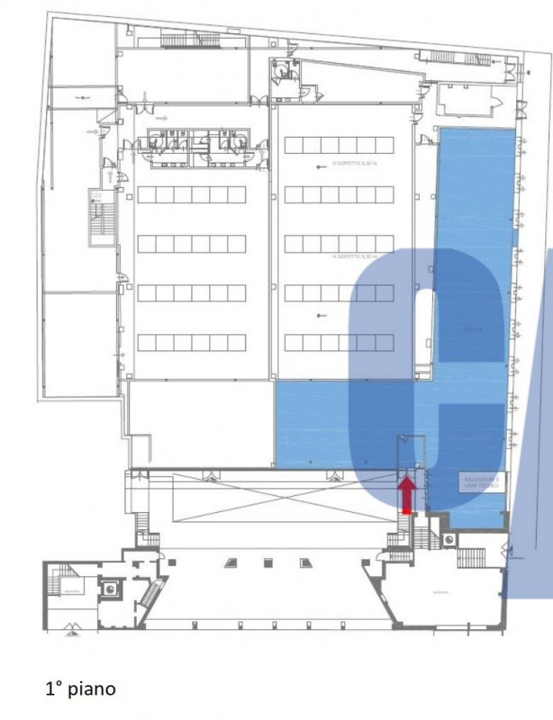
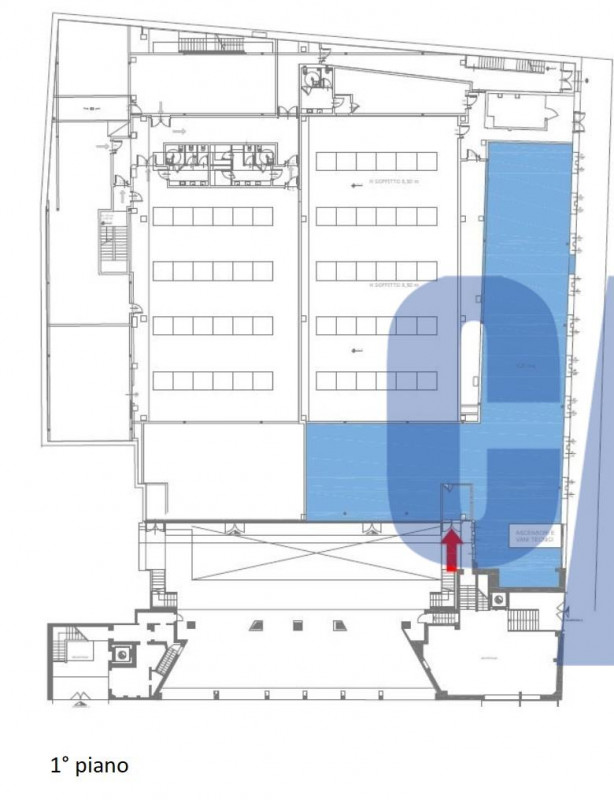
Palazzo in affitto in VIA VALTELLINA a Milano
€ 45.778,00
1
locali
2422
mq
Affitta a Milano, Zona Maciachini, Stabile Direzionale ad uso Uffici, mq. 2.422 ca. Canone annuo Euro. 549.340,00 ( pari a ca. 45.778,00 euro al mese) spese annue a parte. Affittasi Uffici di tre piani fuori terra cosi disposto: al piano terra m...
Chiama
Contatta
Visita
7
Magazzino in vendita in VIA GENOVA a Pioltello
€ 250.000,00
1
locali
273
mq
Vende a PIOLTELLO, Magazzino, mq. 273 ca., Prezzo Euro. 250.000,00 l Capannone A REDDITO con destinazione industriale/produttiva di mq 273 ca. e mq 25 ca. di area esterna (non calcolati nei mq commerciali) Altezza interna mt. 8,70 ca. sottotrave, ...
Chiama
Contatta
Visita
0
Laboratorio in affitto in VIA MONTE BIANCO a Carisio
€ 0,00
1
locali
19116
mq
Affitta a CARISIO, Laboratorio, mq. 19.116 ca. TRATTATIVA RISERVATA. Immobile logistico cosi' suddiviso: mq 16.779 ca. di magazzini, mq 1.597 ca. al piano mezzanino, mq 740 ca. di uffici. Immobile con altezza sotto trave di 11,50 m, portata pavime...
Chiama
Contatta
Visita
24
Ufficio in affitto in VIA ANNA MARIA MOZZONI a Milano
€ 32.706,00
1
locali
1784
mq
Affitta a Milano, Lorenteggio, Ufficio Direzionale, mq. 1.784 ca., con ascensori, portineria. Canone annuo Euro. 392.480,00 ( pari a ca. 32.706,00 euro al mese) spese annue a parte. Immobile cosi' suddiviso: mq 1.784 ca. ai piani 1, 2, 3, 4 (di mq...
Chiama
Contatta
Visita
24
Ufficio in affitto in VIA GORKI M. a Cinisello Balsamo
€ 32.906,00
1
locali
2925
mq
Affitta a Cinisello Balsamo, Bettola, Ufficio Direzionale in Centro Direzionale mq. 2.925 ca. Canone annuo Euro. 394.875,00 ( pari a ca. 32.906,00 euro al mese) spese annue a parte. In posizione ottima, visibile dall'autostrada A4 e nelle vicinan...
Chiama
Contatta
Visita
24
Ufficio in affitto in VIALE SARCA a Milano
€ 73.125,00
1
locali
2925
mq
Affitta a Milano, Bicocca, Ufficio Direzionale, mq. 2.925 ca., 2 piano, con ascensori, portineria. Canone annuo Euro. 877.500,00 ( pari a ca. 73.125,00 euro al mese) spese annue 131.625,00 ( pari a ca. 45,00 euro/mq. annui). Disponibilita' 1 Lugli...
Chiama
Contatta
Visita
24
Ufficio in affitto in VIA RUCELLAI BERNARDO a Milano
€ 21.580,00
1
locali
1363
mq
Affitta a Milano, V.le Monza, Ufficio Direzionale, mq. 1363 ca., con ascensori, portineria. Canone annuo Euro. 258.970,00 ( pari a ca. 21.580,00 euro al mese) spese annue 54.520,00 ( pari a ca. 40,00 euro/mq.) Immobile cosi' suddiviso: mq 647 ca. ...
Chiama
Contatta
Visita
24
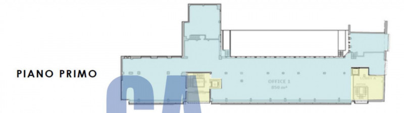
Ufficio in affitto in VIA VALTELLINA a Milano
€ 45.778,00
1
locali
2422
mq
Affitta a Milano, Zona Maciachini, Ufficio Direzionale, mq. 2.422 ca. Canone annuo Euro. 549.340,00 ( pari a ca. 45.778,00 euro al mese) spese annue a parte. Affittasi in Zona Maciachini, stabile di tre piani fuori terra cosi disposto: al piano ...
Chiama
Contatta
Visita
1
Terreno in vendita in VIA DELEDDA G. a Agrate Brianza
€ 0,00
4
locali
44836
mq
Vende a AGRATE BRIANZA, Terreno, mq. 44.836 ca. Terreno a destinazione commerciale, situato nei pressi dell'Autostrada A4 Milano/Venezia, con una SLP di mq. 35.869 ca.e un rapporto di copertura territoriale del 60% altezza max mt 26 ca. Destinazi...
Chiama
Contatta
Visita
0
Capannone industriale in affitto in VIA BETULLE a Dovera
€ 0,00
1
locali
51770
mq
Affitta a DOVERA, Capannone con uffici, mq. 51.770 ca. TRATTATIVA RISERVATA. Immobile logistico in costruzione che sara' cosi' composto: mq 48.357 ca. di magazzino, mq 1.203 ca. di uffici e servizi, mq 2.210 ca. di mezzanini. L'immobile avra' alt...
Chiama
Contatta
Visita
<
147
148
149
150
151
152
153
154
155
156
157
158
159
160
161
162
>
Email
Password
Ricordami
Registrati adesso
Sei una agenzia?
Password dimenticata?