ioaffitto.it TROVA casa. VIVI SEMPLICE.
Nuova ricerca
Pubblica annuncio
Annunci sponsorizzati
Agenzie
Valutazione-immobile
Servizi
Luce Gas Fibra
Mutui
Finanziamenti
Ricerca Internazionale
Servizi web
Servizio partecipazione asta
Pubblica annuncio
Accedi
GR L'IMMOBILIARE snc
corso Porporato
10064 - Pinerolo
Chiama
Contatta
Annunci pubblicati dall'agenzia
GR L'IMMOBILIARE snc
Ordina per rilevanza
Ordina per rilevanza
Ordina per prezzo crescente
Ordina per prezzo decrescente
Ordina per superficie crescente
Ordina per superficie decrescente
6
Garage in vendita in Via de Gregorio di Sant' Elia a Bricherasio
€ 13.000,00
1
locali
21
mq
In Bricherasio proponiamo in vendita un box auto singolo subito disponibile al prezzo di euro 13.000, possibilità di averne due attigui per chi volesse avere due box auto. CLASSE ENERGETICA: Non Applicabile
Chiama
Contatta
Visita
32
Ufficio in vendita a Roletto
€ 325.000,00
10
locali
3290
mq
Proponiamo in vendita un ampia area edificabile per la realizzazione di un capannone a destinazione produttiva con una superficie edificabile pari a 2.880 metri quadrati oltre a 160 metri quadrati per realizzazione tettoia. Nella vendita sono comp...
Chiama
Contatta
Visita
16
Capannone industriale in vendita in via Santa Brigida a Roletto
€ 295.000,00
1
locali
1650
mq
Proponiamo in vendita un ampio capannone di nuova costruzione a destinazione industriale con una superficie pari a 1.065 metri quadrati. Vi è la possibilità di realizzare ulteriori 580 metri quadrati circa adiacenti all'esistente capannone parte a...
Chiama
Contatta
Visita
42
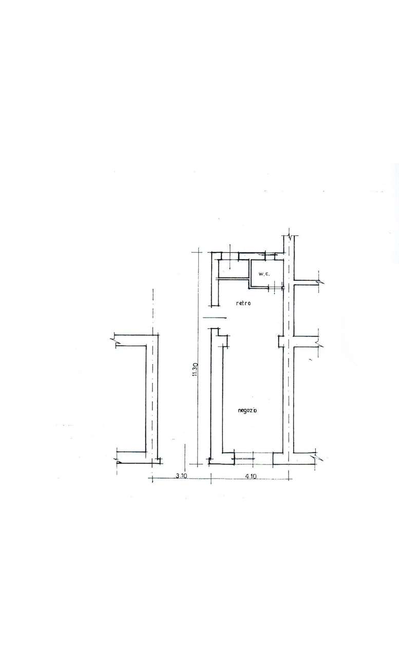
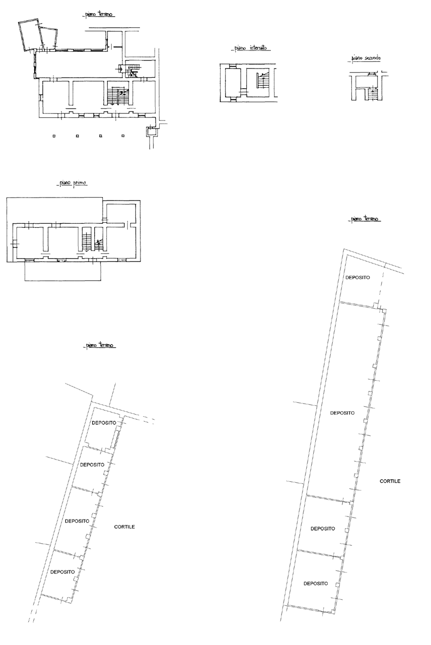
Capannone industriale in vendita in via Val Pellice a San Secondo Di Pinerolo
€ 240.000,00
30
locali
1460
mq
Nelle immediate vicinanze della strada provinciale Pinerolo-Bricherasio capannone oltre a depositi, uffici e alloggio così composto: - al piano terreno capannone con attigui depositi per complessivi mq. 500, uffici per mq. 155 oltre a due fabbrica...
Chiama
Contatta
Visita
66
Villa in vendita in Via Giusto Lanteri a Cumiana
€ 220.000,00
10
locali
340
mq
In posizione centrale, nei pressi del complesso scolastico di Cumiana, proponiamo in vendita una affascinante villa d'epoca immersa in un ampio parco piantumato e recintato di oltre 4.000 metri quadrati. La villa si sviluppa su due livelli oltre ...
Chiama
Contatta
Visita
1
Terreno agricolo in vendita in VIA SAN PIETRO VAL LEMINA a Pinerolo
€ 22.000,00
1
locali
8000
mq
A Pinerolo adiacente alla statale che sale a San Pietro Val Lemina con comodità all'acqua vendiamo terreni agricoli che formano un unico lotto della superficie complessiva di mq. 8.029. Il terreno è subito disponibile. CLASSE ENERGETICA: Non Appli...
Chiama
Contatta
Visita
3
Garage in vendita a Piossasco
€ 39.000,00
1
locali
45
mq
In zona centrale di Piossasco proponiamo in vendita un ampio box auto della superficie di 45 metri quadrati. Il box è ubicato al piano seminterrato e fa parte di un piccolo condominio. CLASSE ENERGETICA: Non Applicabile
Chiama
Contatta
Visita
20
Bilocale in vendita in Pons a Pomaretto
€ 23.000,00
2
locali
62
mq
In Borgata Pons a Pomaretto proponiamo appartamento al piano terra in casa composta da due unità immobiliari, l'appartamento è composto da ingresso su dsimpegno, soggiorno con cucina a vista che si affaccia su terrazino con vista panoramica, camer...
Chiama
Contatta
Visita
16
Bilocale in vendita in Pons a Pomaretto
€ 32.000,00
2
locali
62
mq
In Borgata Pons proponiamo in vendita appartamento al piano primo (ultimo) in una casa di due appartamenti. Si icompone di ingresso, soggiorno con cucina a vista con affaccio su balcone con vista panoramica, bagno finestrato e camera da letto. Pr...
Chiama
Contatta
Visita
13
Appartamento in vendita in via dei martiri a Villar Pellice
€ 55.000,00
6
locali
115
mq
In zona centrale di Villar Pellice vicino alla piazza, proponiamo gradevole appartamento completamente ristrutturato sito all'ultimo piano con vista. L'appartamento è composto da ingresso su soggiorno con cucina a vista con affaccio su ampio terra...
Chiama
Contatta
Visita
<
5
6
7
8
9
10
11
12
13
14
>
Email
Password
Ricordami
Registrati adesso
Sei una agenzia?
Password dimenticata?