ioaffitto.it TROVA casa. VIVI SEMPLICE.
Nuova ricerca
Pubblica annuncio
Annunci sponsorizzati
Agenzie
Valutazione-immobile
Servizi
Luce Gas Fibra
Mutui
Finanziamenti
Ricerca Internazionale
Servizi web
Servizio partecipazione asta
Pubblica annuncio
Accedi
SALVI IMMOBILIARE s.r.l.
Via IV Novembre, 123
25010 - Visano
P.IVA: 02926520988
Referente: Salvi Alessio e Salvi Matteo
Chiama
Contatta
Annunci pubblicati dall'agenzia
SALVI IMMOBILIARE s.r.l.
Ordina per rilevanza
Ordina per rilevanza
Ordina per prezzo crescente
Ordina per prezzo decrescente
Ordina per superficie crescente
Ordina per superficie decrescente
31
Villa in vendita in Via Albertano da Brescia a Montirone
€ 335.000,00
4
locali
138
mq
Vuoi avere una totale indipendenza? Ecco la soluzione giusta per migliorare la qualità della tua vita! Questa che ti proponiamo è una VILLA DI TESTA TOTALMENTE INDIPENDENTE su piano unico di nuova costruzione realizzata in una zone residenziale de...
Chiama
Contatta
Visita
5
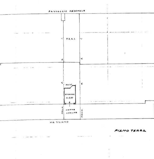
Locale commerciale in affitto in via IV Novembre a Borgosatollo
€ 950,00
2
locali
95
mq
Posizione strategica - Locale commerciale su strada principale con parcheggio e alta visibilitàA Borgosatollo proponiamo in affitto un negozio angolare situato sulla via principale, caratterizzato da un passaggio pedonale e veicolare continuo in d...
Chiama
Contatta
Visita
11
Locale commerciale in vendita in CORSO PALESTRO a Brescia
€ 83.000,00
1
locali
97
mq
Esplora le potenzialità di questo straordinario spazio commerciale situato nel cuore di Brescia, Corso Palestro! Con due piani a tua disposizione, questo negozio offre un'accattivante vetrina al piano terra, perfetta per mettere in mostra i tuoi p...
Chiama
Contatta
Visita
22
Attività artigianale in vendita in Via Galileo Ferraris a Gussago
€ 310.000,00
5
locali
390
mq
Se cerchi un immobile che unisca zona lavoro ed abitazione, questa è la soluzione ideale!Al piano terra troviamo un capannone artigianale di 239 mq, attualmente accatastato come laboratorio: perfetto per attività artigianali, officine, magazzino o...
Chiama
Contatta
Visita
8
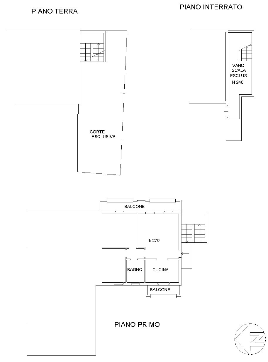
Monolocale in vendita in Piazza Manzoni a Montirone
€ 84.000,00
1
locali
50
mq
Ecco l'appartamento giusto per l'investitore orientato al rendimento perfetto! In centro a Montirone, nuovo monolocale al primo piano con cantina e garage rifinito in modo splendido e pronto per essere abitato. Sono 36 mq con zona cucina semi sepa...
Chiama
Contatta
Visita
21
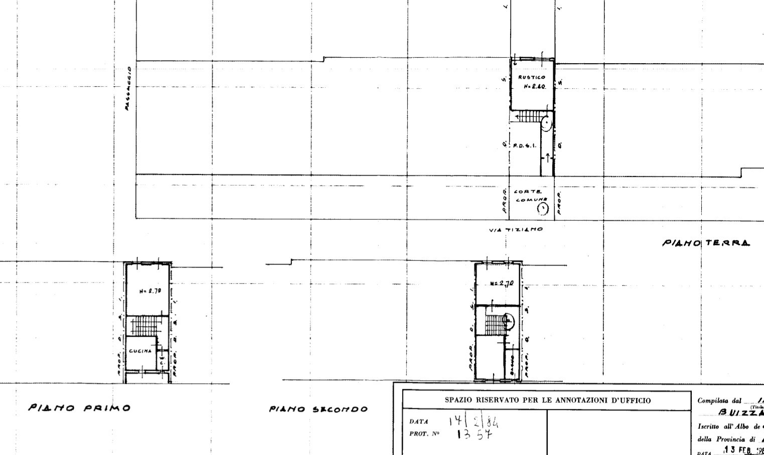
Trilocale in vendita in Via Angelo Mazzoldi a Montichiari
€ 247.000,00
3
locali
121
mq
In una delle zone più ricercate e apprezzate di Montichiari, vieni a vedere questo meraviglioso trilocale con giardino totalmente indipendente. L'appartamento è posto al piano primo e si raggiunge dalla scala esterna alla casa ma all'interno del g...
Chiama
Contatta
Visita
23
Quadrilocale in vendita in Via Martiri Piazza della Loggia a Capriano Del Colle
€ 259.000,00
4
locali
115
mq
Cerchi una casa comoda, spaziosa e con un bel spazio esterno da vivere? Ti proponiamo questo quadrilocale al piano terra, situato in un contesto curato e tranquillo di poche unità con piscina condominiale. L’appartamento è tenuto molto bene ed è c...
Chiama
Contatta
Visita
21
Quadrilocale in vendita in Via Martiri Piazza della Loggia a Capriano Del Colle
€ 225.000,00
4
locali
115
mq
Hai la necessità di ampi spazi ben rifiniti e pronti da abitare? Non perdere questo bel quadrilocale al piano terra con area esclusiva pavimentata in un contesto di poche unità molto bello e con piscina condominiale, L’appartamento è tenuto molto ...
Chiama
Contatta
Visita
22
Quadrilocale in vendita in Via Antonio Bazzini a Brescia
€ 269.000,00
4
locali
153
mq
Se cerchi un grande appartamento a due passi da Viale Venezia con una favolosa terrazza tutta da vivere, eccoti la soluzione giusta! Posto al 1°piano, con ascensore, all'interno di un condominio signorile ben abitato e tenuto davvero in modo impe...
Chiama
Contatta
Visita
38
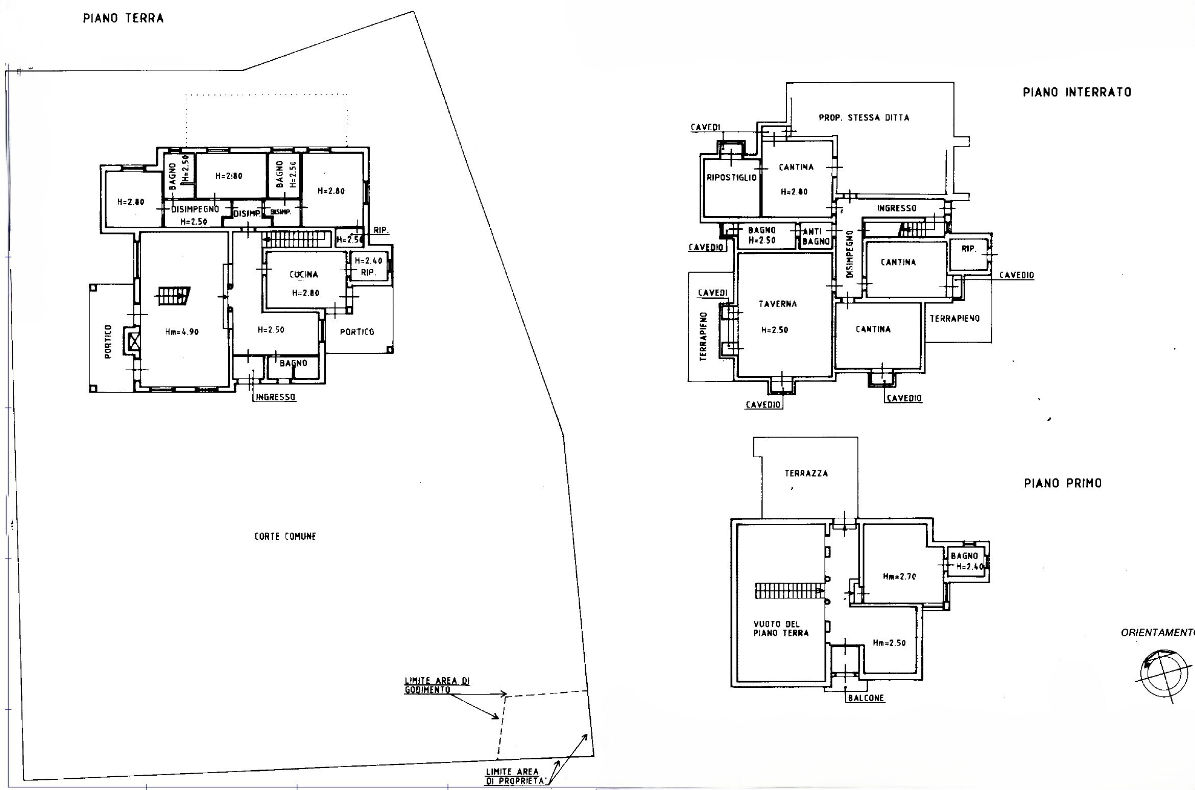
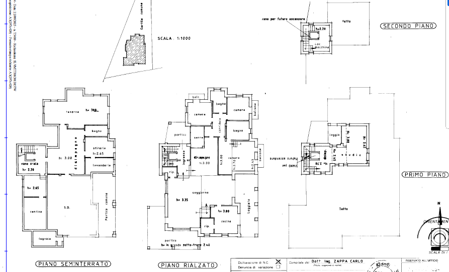
Casa indipendente in vendita in Via Subiaco a Leno
€ 1.350.000,00
5
locali
698
mq
In una delle zone più ricercate del paese, vi proponiamo questa favolosa Villa Singola di alto pregio, costruita con materiali ricercati nel tempo, incorniciata da un parco di 1500 mq completamente piantumato, la sua imponente superficie si distri...
Chiama
Contatta
Visita
<
1
2
3
4
5
6
7
>
Email
Password
Ricordami
Registrati adesso
Sei una agenzia?
Password dimenticata?