ioaffitto.it TROVA casa. VIVI SEMPLICE.
Nuova ricerca
Pubblica annuncio
Annunci sponsorizzati
Agenzie
Valutazione-immobile
Servizi
Luce Gas Fibra
Mutui
Finanziamenti
Ricerca Internazionale
Servizi web
Servizio partecipazione asta
Pubblica annuncio
Accedi
Immobiliare La Corte Dei Miracoli Srl
36100 - Vicenza
P.IVA: 03041220249
Referente: Stefania A Zocche
Chiama
Contatta
Annunci pubblicati dall'agenzia
Immobiliare La Corte Dei Miracoli Srl
Ordina per rilevanza
Ordina per rilevanza
Ordina per prezzo crescente
Ordina per prezzo decrescente
Ordina per superficie crescente
Ordina per superficie decrescente
12
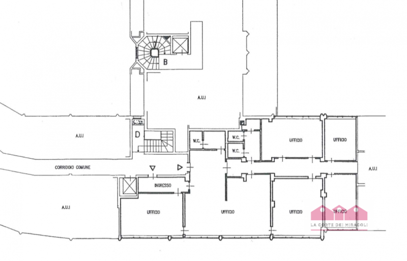
Ufficio in vendita in Via Napoli a Vicenza
€ 165.000,00
3
locali
85
mq
VIA NAPOLI: PIANO PRIMO, ELEGANTE UFFICIO DI 3 VANI + INGRESSO E SERVIZIO DI 85 MQ. TERMOAUTONOMO, ARIA CONDIZIONATA. LUMINOSO E BEN RIFINITO. RIF. VUFF50 RICHIESTA 165.000 EURO In zona comoda al centro inserito in un'edificio ad uso direzionale...
Chiama
Contatta
Visita
11
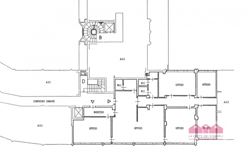
Ufficio in vendita in Via Napoli a Vicenza
€ 295.000,00
6
locali
175
mq
VIA NAPOLI: PIANO PRIMO, LUMINOSO UFFICIO DI 5 VANI CON SERVIZIO E POSSIBILITA' DI POSTI AUTO O GARAGE A PARTE. RIF. VUFF49 RICHIESTA 295.000 EURO In zona comoda al centro in uno stabile adibito ad uso direzionale vi proponiamo un elegante uffic...
Chiama
Contatta
Visita
14
Casa indipendente in affitto in Via Spianzana a Arcugnano
€ 3.000,00
4
locali
250
mq
ARCUGNANO: ALL'INTERNO DI UN PARCO PRIVATO A SOLI 15 MINUTI DAL CENTRO DI VICENZA, BELLA VILLA RISTRUTTURATA INTERAMENTE ORA IN CLASSE A4. RIF. 1987DX - RICHIESTA EURO 3.000 INCLUSA LA PICCOLA MANUTENZIONE. La casa, con ingresso indipendente e p...
Chiama
Contatta
Visita
33
Villa in vendita in Via Silvio Pellico a Caldogno
€ 750.000,00
8
locali
470
mq
CALDOGNO: PROPONIAMO IN VENDITA UNA SPLENDIDA VILLA SINGOLA, RISTRUTTURATA E CURATA NEI MINIMI DETTAGLI, MOLTO VERSATILE NELLA PERSONALIZZAZIONE, LE FINITURE PERMETTONO QUALSIASI TIPO DI ARREDAMENTO. IN ZONA RESIDENZIALE TRANQUILLA E COMODA AL PAE...
Chiama
Contatta
Visita
16
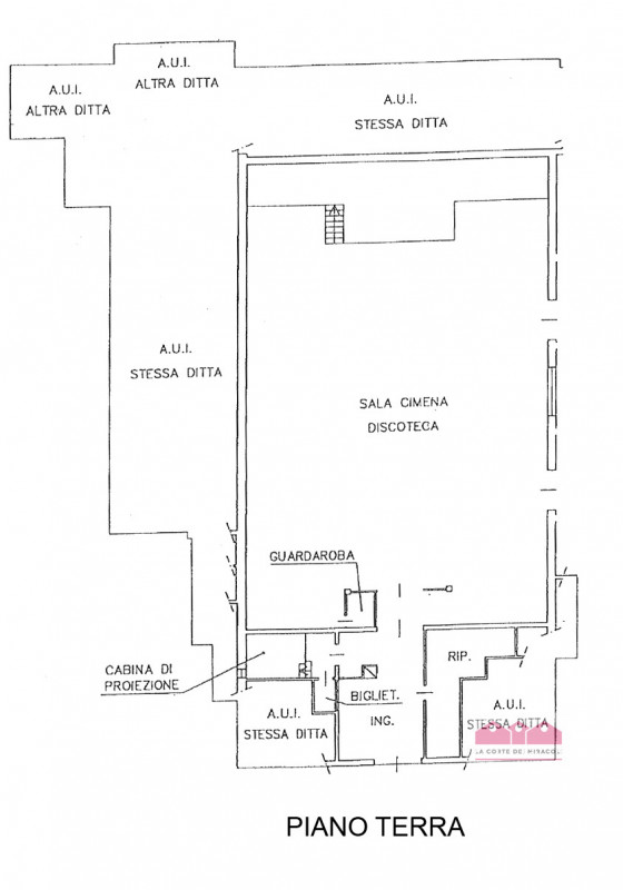
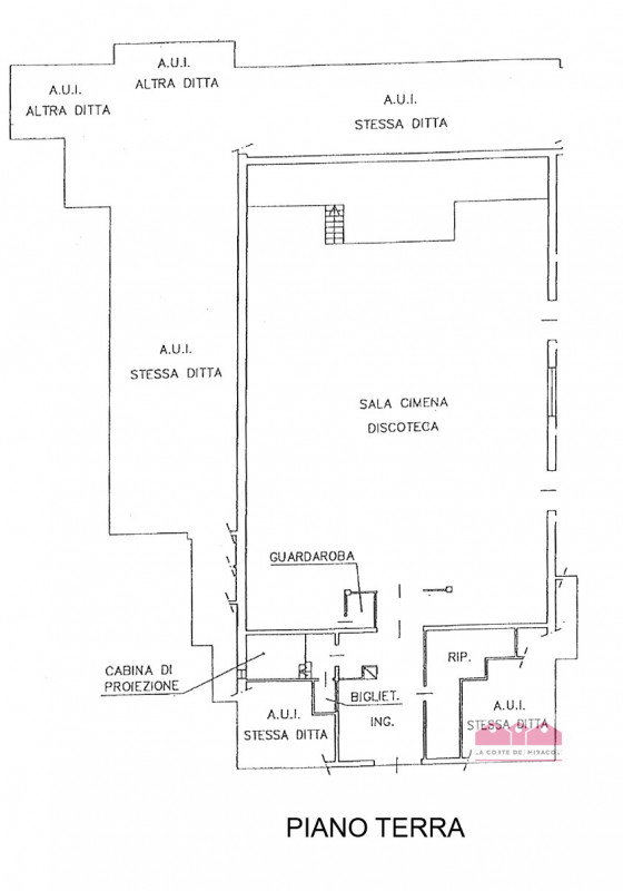
Attività commerciale in vendita a Nanto
€ 149.000,00
0
locali
330
mq
PONTE DI NANTO: INTERO COMPLESSO DA RISTRUTTURARE IN AREA CENTRALISSIMA, CON AMPIO GIARDINO IDEALE PER UNA O DIVERSE ATTIVITA' COMMERCIALI. RIF. VCAP12B. RICHIESTA EURO 149.000. CHIAMA ALESSANDRA +39 329 938 8197 O SCRIVI A: alessandra@lacortedeim...
Chiama
Contatta
Visita
21
Casa bifamiliare in affitto in via ragazzi del 99 a Castegnero
€ 2.500,00
8
locali
350
mq
NELLA BELLA ZONA DI CASTEGNERO, GRANDE CASA SINGOLA CON GIARDINO. EURO 2.500. RIF. 752X La casa si sviluppa su 3 livelli ed è di quasi 400 metri quadrati. Ha uno splendido e curatissimo giardino recintato, un portico con barbecue incorporato, un...
Chiama
Contatta
Visita
18
Laboratorio in vendita in via zamenhof a Vicenza
€ 195.000,00
0
locali
238
mq
VIA ZAMENHOF: SPAZIO COMMERCIALE ARTIGIANALE DI 250MQ AL PIANO PRIMO CON TRE POSTI AUTO AL PIANO TERRA. EURO 195.000. RIF. VLAB2F. Al piano primo servito da grande montacarichi, proponiamo un locale commerciale artigianale composto da un unico am...
Chiama
Contatta
Visita
22
Ufficio in affitto in Viale Verdi a Vicenza
€ 1.600,00
0
locali
243
mq
VICENZA: VICINANZA CENTRO STORICO, OTTIMO CONTESTO RESIDENZIALE DI RECENTE COSTRUZIONE, AL SECONDO PIANO CON ASCENSORE PROPONIAMO SPAZIOSO UFFICIO, DISPOSTO SU UN UNICO LIVELLO, GIA' DIVISO IN VARI AMBIENTI FACILMENTE ADDATABILI A VARIE ESIGENZE P...
Chiama
Contatta
Visita
25
Appartamento in vendita in Via Brigata Piemonte a Asiago
€ 770.000,00
6
locali
250
mq
ASIAGO CENTRO: APPARTAMENTO DI 200 MQ, INGRESSO, SOGGIORNO SALA DA PRANZO, CUCINA, DISPENSA, SALA TV, 4 CAMERE, 5 BAGNI, SOPPALCO CON STUDIO AMPIO, BOISERIE, AMPI TERRAZZI E PARCO PRIVATO DI CIRCA 8.000 MQ. GARAGE PER 3 AUTO, CANTINA, 10 MINUTI A ...
Chiama
Contatta
Visita
17
Appartamento in vendita in Piazza del castello 20 a Vicenza
€ 450.000,00
4
locali
135
mq
APPARTAMENTO LOCATO AD OTTIMO CANONE! CENTRO STORICO: BELLISSIMO TRICAMERE COMPOSTO DA SOGGIORNO CON ANGOLO COTTURA, TRE CAMERE, DUE BAGNI CON DOCCIA, GARAGE E CANTINA. RIF. VT22B EURO 450.000 CHIAMA ALESSANDRA +39 329 938 8197 O SCRIVI A: alessan...
Chiama
Contatta
Visita
<
4
5
6
7
8
9
10
11
12
13
14
>
Email
Password
Ricordami
Registrati adesso
Sei una agenzia?
Password dimenticata?