ioaffitto.it TROVA casa. VIVI SEMPLICE.
Nuova ricerca
Pubblica annuncio
Annunci sponsorizzati
Agenzie
Valutazione-immobile
Servizi
Luce Gas Fibra
Mutui
Finanziamenti
Ricerca Internazionale
Servizi web
Pubblica annuncio
Accedi
TESTI Agenzia Immobiliare
ViaVia G. Di Vittorio
56017 - San Giuliano Terme
P.IVA: 01294720501
Referente: Stefano Testi
Chiama
Contatta
Annunci pubblicati dall'agenzia
TESTI Agenzia Immobiliare
Ordina per rilevanza
Ordina per rilevanza
Ordina per prezzo crescente
Ordina per prezzo decrescente
Ordina per superficie crescente
Ordina per superficie decrescente
45
Villa in vendita in Via le Rene, a Pisa
€ 280.000,00
9
locali
245
mq
(Riferimento agenzia 903) .....IMMOBILE IDEALE X DUE NUCLEI FAMILIARI...... Nel comune di Pisa nelle vicinanze di Ospedaletto, in aperta campagna, Proponiamo Villetta singola di 240 mq, al piano 1° troviamo appartamento con accesso da scala es...
Chiama
Contatta
Visita
21
Appartamento in vendita in Via Ximenes Padre Leonardo, a Pisa
€ 270.000,00
5
locali
140
mq
Putignano, in gradevole contesto abitativo proponiamo appartamento su due livelli con ingresso indipendente da giardino di proprietà esclusiva di circa 120 mq. piano primo: ingresso in soggiorno, cucina con piccolo balcone, camera matrimoniale co...
Chiama
Contatta
Visita
48
Villa in vendita in Via della Villa, a Vecchiano
€ 450.000,00
8
locali
170
mq
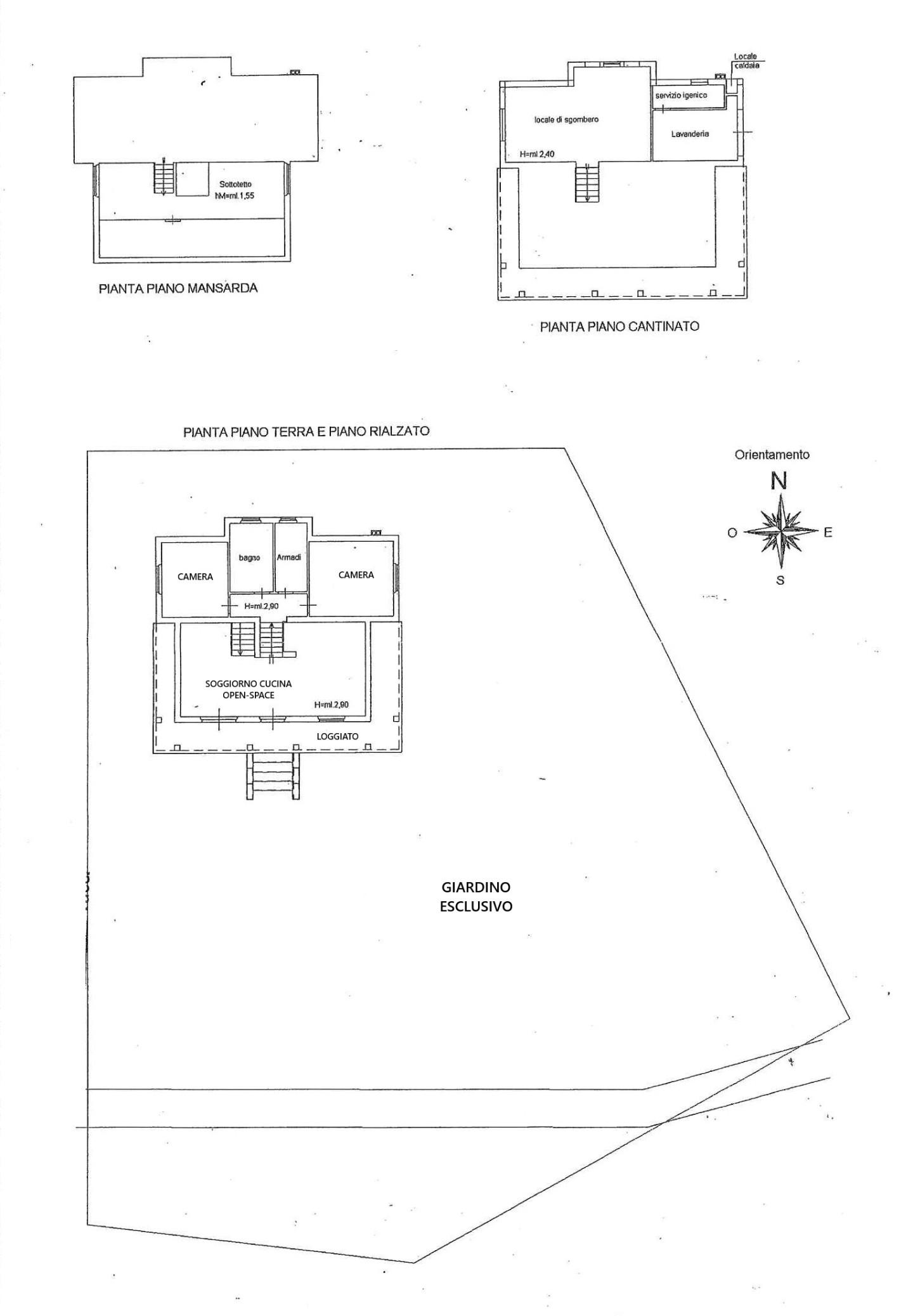
( Riferimento Agenzia 830 ) Nelle vicinanze di VECCHIANO, proponiamo in Vendita stupenda VILLA SINGOLA di 190 mq COSTRUITA NEL 2000; si compone di ingresso in grande salone e cucina OPEN SPACE, si accede al piano rialzato tramite scala interna, do...
Chiama
Contatta
Visita
21
Villa in vendita in Via della Villa, a Vecchiano
€ 475.000,00
10
locali
240
mq
VECCHIANO VILLA SINGOLA CON GIARDINO VECCHIANO - ESCLSUSIVA DI VENDITA In centro paese, in zona riservata e residenziale, proponiamo villa singola in vendita composta da due unità immobiliari distinte e sovrastanti, con ingressi completamente indi...
Chiama
Contatta
Visita
25
Appartamento in vendita in Via Cervi Fratelli, a Vecchiano
€ 195.000,00
5
locali
124
mq
(Riferimento Agenzia 895) Nel Comune di Vecchiano, in località Nodica, proponiamo in VENDITA interessante appartamento di ampia metratura sito al primo piano di piccola palazzina di 3 condomini. Internamente si compone di ingresso, ampio soggiorno...
Chiama
Contatta
Visita
1
Attività commerciale in vendita in Via Giovanni Boccaccio Ghezzano, a San Giuliano Terme
€ 35.000,00
1
locali
8
mq
(Riferimento Agenzia 892) Nel Comune di San Giuliano Terme, proponiamo in VENDITA carrello attrezzato con licenza per preparazione e vendita pizza, bomboloni, patatine, hot dog e somministrazione bevande, con postazione fissa di circa 60 mq a San ...
Chiama
Contatta
Visita
2
Terreno agricolo in vendita in Via Edmondo de Amicis Arena Metato, E a San Giuliano Terme
€ 25.000,00
0
locali
4290
mq
(Riferimento Agenzia 891) Nel Comune di San Giuliano Terme, in località Metato, proponiamo in vendita terreno agricolo di 4290 mq, qualità Frutteto. Il terreno si trova in paese, con possibilità di allacci delle utenze! Ideale per chi cerca uno sp...
Chiama
Contatta
Visita
16
Villa in vendita in Via Argine Vecchio, a Vecchiano
€ 95.000,00
3
locali
60
mq
(Riferimento Agenzia 890) Nel Comune di Vecchiano, a pochi km dal capoluogo, proponiamo in VENDITA villettina tipo VIAREGGINA da ristrutturare internamente, composta da cucina-soggiorno, camera matrimoniale con bagno, cameretta. Esternamente cari...
Chiama
Contatta
Visita
64
Villa in vendita in Via di Signano Gello, a San Giuliano Terme
€ 1.700.000,00
11
locali
414
mq
(Riferimento Agenzia 884) Nel Comune di San Giuliano Terme, a soli 3 Km da Pisa, proponiamo in vendita Villa singola immersa nel verde della campagna, di recente costruzione, per complessivi 414 mq e così composta: al piano primo troviamo un ingr...
Chiama
Contatta
Visita
48
Appartamento in vendita in Via Pisana, a Lucca
€ 135.000,00
7
locali
205
mq
(Riferimento Agenzia 880) Nelle vicinanze di Montuolo, ma nel Comune di San Giuliano Terme, in località Ripafratta, proponiamo in VENDITA APPARTAMENTO disposto su due livelli, composto da ingresso a piano terra con accesso al primo piano tramite s...
Chiama
Contatta
Visita
<
1
2
3
4
5
6
>
Email
Password
Ricordami
Registrati adesso
Sei una agenzia?
Password dimenticata?