ioaffitto.it TROVA casa. VIVI SEMPLICE.
Nuova ricerca
Pubblica annuncio
Annunci sponsorizzati
Agenzie
Valutazione-immobile
Servizi
Luce Gas Fibra
Mutui
Finanziamenti
Ricerca Internazionale
Servizi web
Servizio partecipazione asta
Pubblica annuncio
Accedi
L'Immobiliare ÒIKOS
Via Cavour 20
70043 - Monopoli
P.IVA: 06692790725
Chiama
Contatta
Annunci pubblicati dall'agenzia
L'Immobiliare ÒIKOS
Ordina per rilevanza
Ordina per rilevanza
Ordina per prezzo crescente
Ordina per prezzo decrescente
Ordina per superficie crescente
Ordina per superficie decrescente
18
Terreno agricolo in vendita in contrada masciola a Fasano
€ 58.000,00
0
locali
3500
mq
Nel comune di Fasano, in contrada Masciola, proponiamo in vendita un terreno agricolo con annesso un piccolo fabbricato rurale che potrebbe diventare, dopo eventuali adeguate autorizzazioni, un ottimo appoggio estivo: lambiente circostante è tr...
Chiama
Contatta
Visita
50
Terreno agricolo in vendita in Strada Comunale Fusella a Polignano A Mare
€ 135.000,00
0
locali
20000
mq
In Contrada Fusella a Polignano a Mare, L'immobiliare Òikos è grato di delineare un'innovativa proposta: un terreno agricolo dalle tante possibilità. Terreno lievemente irregolare ma pianeggiante con una fascinosa vista mare. Presenta differenti v...
Chiama
Contatta
Visita
28
Terreno residenziale in vendita in Contrada Bellocchio a Monopoli
€ 75.000,00
0
locali
6500
mq
A Monopoli, in C.da Bellocchio, a due passi dalla città in una zona particolarmente tranquilla ma non isolata vi proponiamo una vera chicca per gli amanti del verde e della campagna! Unoccasione da non perdere, circa 6.500 mq di terreno che ha co...
Chiama
Contatta
Visita
17
Terreno agricolo in vendita in contrada conchia a Monopoli
€ 90.000,00
0
locali
15000
mq
La nostra nuova proposta immobiliare ci conduce a Monopoli, esattamente in Contrada Conchia, la stessa confinante con la rinomata Masseria Fortificata da cui prende nome. Qui sorgono in un angolo di autenticità pugliese coi suoi circa 15.000 mq di...
Chiama
Contatta
Visita
27
Rustico / casale in vendita in Via Cola di Rienzo a Martina Franca
€ 22.000,00
1
locali
26
mq
A pochi passi da Palazzo Ducale, simbolo della città nel cuore del centro storico di Martina Franca, vi proponiamo un monolocale da ristrutturare, dal grandissimo potenziale immobiliare, una soluzione congeniale per coppie, lavoratori o per un inv...
Chiama
Contatta
Visita
35
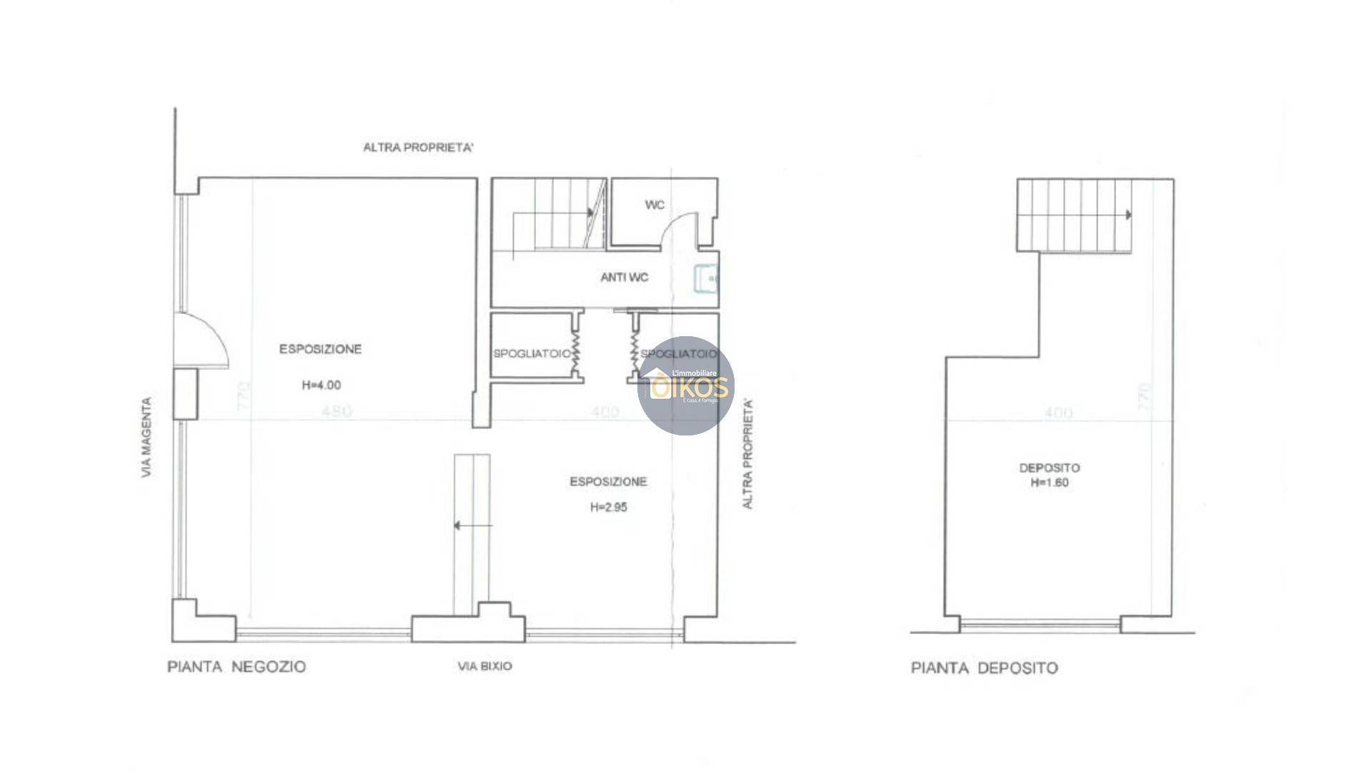
Locale commerciale in affitto in Via Magenta a Monopoli
€ 1.800,00
3
locali
85
mq
Ottima opportunità! In via Magenta, una delle vie più centrali e frequentate di Monopoli, a due passi dalla piazza principale, proponiamo in locazione, locale commerciale di circa 82 mq, perfetto per qualsiasi tipo di attività si voglia svolgere g...
Chiama
Contatta
Visita
96
Casa indipendente in vendita in Via Santa Maria a Monopoli
€ 1.600.000,00
9
locali
300
mq
In una delle vie più affascinanti e suggestive di Monopoli, se non addirittura la più significativa in riferimento alla storicità del borgo antico, sorge questo meraviglioso immobile con vista su mare. sarebbe riduttivo parlare di un semplice pala...
Chiama
Contatta
Visita
40
Terreno agricolo in vendita in Contrada Romanazzi a Monopoli
€ 46.000,00
0
locali
13000
mq
Un appezzamento in collina di circa 13000 metri quadrati di una terra buona e redditizia e quanto vi proponiamo nelle campagne di Monopoli e precisamente in Contrada Romanazzi, tanto e prospera che vi sono piantati e in ottima salute svariati albe...
Chiama
Contatta
Visita
48
Appartamento in vendita in Via Della Conciliazione a Putignano
€ 120.000,00
5
locali
180
mq
A pochi passi dall'incantevole centro storico di Putignano, a ridosso di questo scenario, si incastona Via Della Conciliazione dove è ubicato lappartamento che vi presentiamo, la cui luminosità è assicurata dalla sua posizione. Ci troviamo al qui...
Chiama
Contatta
Visita
45
Appartamento in vendita in Via Dei Mille a Castellana Grotte
€ 103.000,00
4
locali
120
mq
Nella famosa cittaqdina ricca di storia e tradizione di Castellana Grotte è ubicato l'appartamento che vi presentiamo. In un piccolo palazzotto nel cuore della città, tra vie ricche di negozi e servizi, un appartamento, su due livelli, pronto per ...
Chiama
Contatta
Visita
<
1
2
3
4
>
Email
Password
Ricordami
Registrati adesso
Sei una agenzia?
Password dimenticata?