ioaffitto.it TROVA casa. VIVI SEMPLICE.
Nuova ricerca
Pubblica annuncio
Annunci sponsorizzati
Agenzie
Valutazione-immobile
Servizi
Luce Gas Fibra
Mutui
Finanziamenti
Ricerca Internazionale
Servizi web
Servizio partecipazione asta
Pubblica annuncio
Accedi
Mediocasa Immobiliare srl
37121-37142 - Verona
P.IVA: 04318190230
Chiama
Contatta
Annunci pubblicati dall'agenzia
Mediocasa Immobiliare srl
Ordina per rilevanza
Ordina per rilevanza
Ordina per prezzo crescente
Ordina per prezzo decrescente
Ordina per superficie crescente
Ordina per superficie decrescente
18
Casa indipendente in vendita in VIA ROMA 12 a Montegaldella
€ 204.000,00
4
locali
195
mq
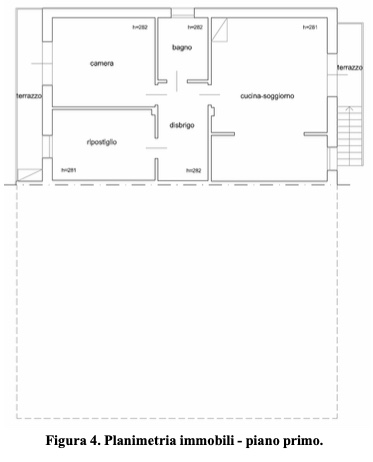
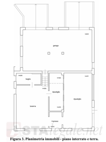
MONTEGALDELLA (VI) VIA ROMA 12 - Piena proprietà di abitazione unifamiliare con garage, composta al piano terra da taverna, bagno e ripostiglio; al piano primo da cucina, soggiorno, camera, ripostiglio, bagno e disbrigo; al piano seminterrato, si ...
Chiama
Contatta
Visita
14
Capannone industriale in vendita in VIA PEDEMONTANA 24 a Castelgomberto
€ 546.800,00
0
locali
1324
mq
CASTELGOMBERTO (VI) VIA PEDEMONTANA 24 - Piena proprietà di capannone industriale e autorizzazione all'esercizio di un impianto di rifiuti non pericolosi. IMMOBILE SOGGETTO A LIQUIDAZIONE GIUDIZIALE N. 10/2025 - LOTTO UNICO - Tribunale di VICENZA...
Chiama
Contatta
Visita
2
Terreno in vendita in VIA PAPA GIOVANNI PAOLO II a Orgiano
€ 30.938,00
0
locali
1052
mq
ORGIANO (VI) VIA PAPA GIOVANNI PAOLO II - Piena proprietà di terreno edificabile pianeggiante avente superficie fondiaria di mq. 1.052,00, permettendo una volumetria realizzabile di circa mc. 1.683,20 fuori terra, per una superficie residenziale r...
Chiama
Contatta
Visita
3
Terreno in vendita in VIA PAPA GIOVANNI PAOLO II a Orgiano
€ 30.938,00
0
locali
1042
mq
ORGIANO (VI) VIA PAPA GIOVANNI PAOLO II - Piena proprietà di terreno edificabile pianeggiante avente superficie fondiaria di mq. 1.042,00, permettendo una volumetria realizzabile di circa mc. 1.667,20 fuori terra, per una superficie residenziale r...
Chiama
Contatta
Visita
3
Terreno in vendita in VIA PAPA GIOVANNI PAOLO II a Orgiano
€ 21.938,00
0
locali
739
mq
ORGIANO (VI) VIA PAPA GIOVANNI PAOLO II - Piena proprietà di terreno edificabile pianeggiante avente superficie fondiaria di mq. 739,00, permettendo una volumetria realizzabile di circa mc. 1.182,40 fuori terra, per una superficie residenziale rea...
Chiama
Contatta
Visita
3
Terreno in vendita in VIA PAPA GIOVANNI PAOLO II a Orgiano
€ 23.906,00
0
locali
806
mq
ORGIANO (VI) VIA PAPA GIOVANNI PAOLO II - Piena proprietà di tre appezzamenti di terreni edificabili pianeggianti avente superficie fondiaria complessiva utile di mq. 806,00, permettendo una volumetria realizzabile di circa mc. 1.289,60 fuori terr...
Chiama
Contatta
Visita
3
Terreno in vendita in VIA PAPA GIOVANNI PAOLO II a Orgiano
€ 24.750,00
0
locali
842
mq
ORGIANO (VI) VIA PAPA GIOVANNI PAOLO II - Piena proprietà di tre appezzamenti di terreni edificabili pianeggianti aventi superficie fondiaria complessiva utile di mq. 842,00, permettendo una volumetria realizzabile di circa mc. 1.347,20 fuori terr...
Chiama
Contatta
Visita
5
Terreno in vendita in VIA PAPA GIOVANNI PAOLO II a Orgiano
€ 2.700,00
0
locali
70
mq
ORGIANO (VI) VIA PAPA GIOVANNI PAOLO II - Piena proprietà di tre appezzamenti di terreni edificabili pianeggianti aventi superficie fondiaria complessiva di mq. 70,00, permettendo un recupero di volume di circa mc. 112,00. L’area urbana, Mapp. 759...
Chiama
Contatta
Visita
74
Palazzo in vendita in VIA SAN VITO MARTIRE 10 a Cerea
€ 97.500,00
5
locali
709
mq
CEREA (VR) VIA SAN VITO MARTIRE 10-12-12/B - Piena proprietà di compendio immobiliare di 3 corpi di fabbrica insistenti su lotto di terreno di 865 mq, consistenti in un appartamento, due negozi, un magazzino e due garages con corte e aree scoperte...
Chiama
Contatta
Visita
39
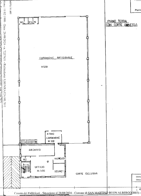
Capannone industriale in vendita in Via Meucci 24 a San Martino Buon Albergo
€ 559.237,00
0
locali
1194
mq
SAN MARTINO BUON ALBERGO (VR) - Piena proprietà di capannone artigianale con annessi uffici, due magazzini, corte esclusiva ed una cabina elettrica pertinenziali. Il bene è attualmente occupato dalla ditta "Grafiche Duegi S.n.c." (c.f. e p. IVA: 0...
Chiama
Contatta
Visita
<
11
12
13
14
15
16
17
18
19
20
21
22
23
24
25
26
>
Email
Password
Ricordami
Registrati adesso
Sei una agenzia?
Password dimenticata?