ioaffitto.it TROVA casa. VIVI SEMPLICE.
Nuova ricerca
Pubblica annuncio
Annunci sponsorizzati
Agenzie
Valutazione-immobile
Servizi
Luce Gas Fibra
Mutui
Finanziamenti
Ricerca Internazionale
Servizi web
Servizio partecipazione asta
Pubblica annuncio
Accedi
Dimensione Casa Srl
Via Vittorio Veneto, 40
93017 - San Cataldo
P.IVA: 02014190850
Referente: Sig. Fabio Burcheri
Chiama
Contatta
Annunci pubblicati dall'agenzia
Dimensione Casa Srl
Ordina per rilevanza
Ordina per rilevanza
Ordina per prezzo crescente
Ordina per prezzo decrescente
Ordina per superficie crescente
Ordina per superficie decrescente
3
Locale commerciale in vendita in Corso Vittorio Emanuele, 135 a San Cataldo
€ 29.000,00
3
locali
76
mq
VENDITA: LOCALE COMMERCIALE C/1 mq 41 e mq 35 di magazzino annesso , da ristrutturare in Corso Vittorio Emanuele al civico n 135 a San Cataldo. Idoneo per qualsiasi tipo di attività , compreso quella di ristorazione. VERO AFFARE - PREZZO TRATTABILE.
Chiama
Contatta
Visita
3
Appartamento in vendita in Via Cesare Cantù, 42 a San Cataldo
€ 45.000,00
6
locali
290
mq
VENDITA: Appartamento mq 290 da ristrutturare al piano secondo e terzo senza ascensore nella centralissima strada di Corso Vittorio Emanuele al civico 195 a San Cataldo. Composto da: salone cucina, due camere e bagno e balcone presente nella cent...
Chiama
Contatta
Visita
12
Appartamento in vendita in Via Guglielmo Oberdan, 8 a San Cataldo
€ 87.000,00
6
locali
99
mq
VENDITA: Prestigioso appartamento di recente costruzione a San Cataldo in Via Nivea snc di mq 99 circa, con ascensore, con posto auto esterno assegnato nell'area condominiale. L'appartamento è su due livelli, terzo e quarto piano, diviso in zona ...
Chiama
Contatta
Visita
10
Locale commerciale in vendita in Via Carlo Forlanini, 8 a San Cataldo
€ 0,00
6
locali
230
mq
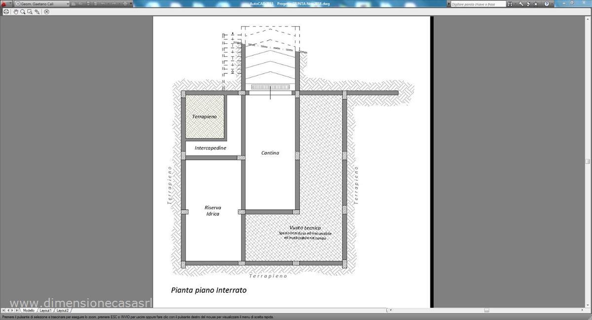
VENDITA: PRESTIGIOSA NECROPOLI di interesse speleologico e turistico situata in Sicilia nel Comune di San Cataldo (CL) contrada Raffondo Decano ( lungo la Via Forlanini). Insiste su due livelli, composta da cinque grotte tra di loro comunicanti pe...
Chiama
Contatta
Visita
11
Terreno edificabile in vendita in Contrada Sartania a Caltanissetta
€ 48.000,00
5
locali
180
mq
Vendita: Lotto di terreno edificabile mq 4.200 con progetto approvato e oneri versati per la realizzazione di una villetta in C/da Suppa Gaddira- Caltanissetta. Posto incantevole e abitato da numerose famiglie con residenza permanente, vista la br...
Chiama
Contatta
Visita
11
Appartamento in vendita a San Cataldo
€ 39.500,00
4
locali
70
mq
VENDITA: Riff: AP54 ZONA MIMIANI Proponiamo la vendita di un appartamento ristrutturato di mq 70, più mq 60 di terrazza al piano quarto senza ascensore in Via Monsignor Giovanni Iacono n 31 a San Cataldo. L'immobile è composto da: cucina con ba...
Chiama
Contatta
Visita
11
Terreno edificabile in vendita in Contrada Sartania a Caltanissetta
€ 38.000,00
5
locali
180
mq
VENDITA:Lotto di terreno mq 2.840 edificabile con progetto approvato e oneri versati, per la realizzazione di una villetta, in C/DA Suppa Gaddira - Caltanissetta . Posto incantevole e abitato da numerose famiglie con residenza permanente vista ...
Chiama
Contatta
Visita
3
Casa indipendente in vendita in Via Camillo Benso Conte di Cavour, 33 a San Cataldo
€ 19.000,00
6
locali
200
mq
VENDITA: Casa indipendente da ristrutturare mq 200 circa su tre livelli in centro storico in Via Cavur a San Cataldo. Posto ideale per intraprendere molteplici attività, sia di carattere culturale che commerciale.VERO AFFARE.
Chiama
Contatta
Visita
10
Azienda agricola in vendita in SS122 a Caltanissetta
€ 136.000,00
6
locali
330
mq
VENDITA: Azienda agricola in Contrada Roccella nel Comune di Caltanissetta, con mq 7.300 di terreno agricolo, con annessi fabbricati per uso civile e magazzini, per una superficie totale di mq 330. Posto incantevole e strategico per intraprender...
Chiama
Contatta
Visita
10
Appartamento in vendita in Via Borremans, 52 a Caltanissetta
€ 43.000,00
6
locali
80
mq
VENDITA: Appartamento MQ 80 circa al piano terzo senza ascensore in Via Borremans n 52 a Caltanissetta. Composto: Saletta, cucina, due camere da letto, bagno e ripostiglio. Molto luminoso, riscaldamento autonomo a metano, riserva idrica indipen...
Chiama
Contatta
Visita
<
14
15
16
17
18
19
20
21
22
>
Email
Password
Ricordami
Registrati adesso
Sei una agenzia?
Password dimenticata?