ioaffitto.it TROVA casa. VIVI SEMPLICE.
Nuova ricerca
Pubblica annuncio
Annunci sponsorizzati
Agenzie
Valutazione-immobile
Servizi
Luce Gas Fibra
Mutui
Finanziamenti
Ricerca Internazionale
Servizi web
Servizio partecipazione asta
Pubblica annuncio
Accedi
IMMOBILIARE LEDRI SAS DI LEDRI LUCA & C
37121-37142 - Verona
P.IVA: 04532400233
Referente: LUCA LEDRI
Chiama
Contatta
Annunci pubblicati dall'agenzia
IMMOBILIARE LEDRI SAS DI LEDRI LUCA & C
Ordina per rilevanza
Ordina per rilevanza
Ordina per prezzo crescente
Ordina per prezzo decrescente
Ordina per superficie crescente
Ordina per superficie decrescente
48
Villa in vendita in Via dell'Esperanto a Villafranca Di Verona
€ 420.000,00
7
locali
263
mq
Ci sono case che si visitano. E case che si immaginano già vissute. Questa villa singola su lotto di 756 mq è la soluzione perfetta per chi cerca indipendenza, spazi veri e margine di crescita futura. Numeri importanti: - 242 mq di abitazione ...
Chiama
Contatta
Visita
23
Appartamento in vendita in via Ederle a Verona
€ 350.000,00
4
locali
125
mq
Nel cuore di Borgo Trento, uno dei quartieri più eleganti e desiderati di Verona, ti presentiamo un appartamento che unisce spazio, comfort e raffinatezza. Situato al piano rialzato di una palazzina signorile, offre circa 125 mq pensati per chi ce...
Chiama
Contatta
Visita
29
Appartamento in vendita in Via Tintoretto a Castel D'azzano
€ 169.000,00
4
locali
88
mq
Nella tranquillità del Comune di Castel D'Azzano, a Beccacivetta, proponiamo in vendita un appartamento al secondo e ultimo piano, in una palazzina di 6 unità abitative. La disposizione interna rende questo appartamento estremamente versatile. E'...
Chiama
Contatta
Visita
30
Appartamento in vendita in Via Belvedere a Verona
€ 258.000,00
4
locali
139
mq
Ci sono zone di Verona dove il tempo sembra rallentare. San Felice Extra è una di queste. Vista aperta sulle colline, silenzio, aria buona e quella sensazione di tranquillità che oggi è un vero privilegio. In questo contesto riservato, all’intern...
Chiama
Contatta
Visita
23
Appartamento in vendita in Piazza delle Erbe a Verona
€ 800.000,00
2
locali
80
mq
Vivere Piazza delle Erbe, ogni giorno. Immobiliare Ledri ti presenta, in collaborazione con Guarise Mobili & Contract di Cerea, che ci ha fornito parte degli arredi che troverete all'interno dell'immobile, un appartamento davvero esclusivo. Imma...
Chiama
Contatta
Visita
33
Villetta a schiera in vendita in via Rodi a Verona
€ 360.000,00
5
locali
160
mq
Villa terra-cielo in corte tranquilla – San Massimo, Verona Se stai cercando una casa vera, indipendente e senza spese condominiali, fermati un attimo: potresti averla appena trovata. Nel cuore di San Massimo, uno dei quartieri più richiesti e a...
Chiama
Contatta
Visita
33
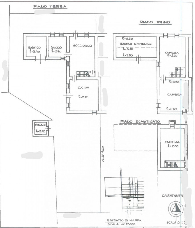
Casa bifamiliare in vendita in Via Biante Remangi a Villafranca Di Verona
€ 369.000,00
6
locali
225
mq
Nel cuore di Villafranca, a pochi passi dal celebre Castello, proponiamo in vendita una spaziosa porzione di villa bifamiliare, ideale per chi desidera indipendenza e comodità. L’abitazione si sviluppa al primo piano e si compone di ingresso, sog...
Chiama
Contatta
Visita
26
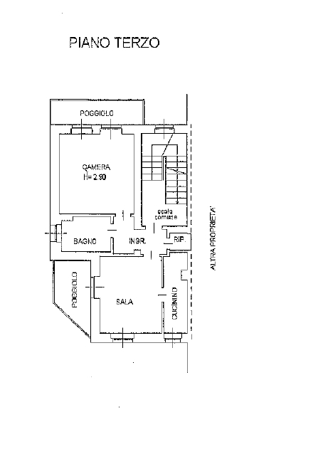
Appartamento in vendita in via F.lli Morandini a Verona
€ 198.000,00
4
locali
112
mq
Immobiliare Ledri ti presenta un appartamento posto al terzo e ultimo piano e servito da ascensore. Inserito in un contesto di 10 unità, l'immobile è composto da ampio soggiorno con camino, cucina, due camere, guardaroba, bagno, ripostiglio, tre b...
Chiama
Contatta
Visita
16
Villetta a schiera in vendita in Via Generale Carlo Alberto Dalla Chiesa a Pescantina
€ 347.000,00
5
locali
145
mq
Immobiliare Ledri ti presenta un immobile davvero molto interessante a Pescantina. Spazi ampi, tanta luce e una sensazione di comfort che si percepisce in ogni ambiente. Questa villetta a schiera, dalla distribuzione non convenzionale, si svilup...
Chiama
Contatta
Visita
28
Appartamento in vendita in Via Goffredo Mameli a Verona
€ 345.000,00
5
locali
133
mq
Spazi comodi, luce e terrazzo da vivere Immobiliare Ledri ti presente un appartamento situato al secondo piano, servito da ascensore, pensato per chi cerca comfort e metrature generose. L’ingresso si apre su un soggiorno luminoso con accesso dir...
Chiama
Contatta
Visita
<
1
2
3
4
5
>
Email
Password
Ricordami
Registrati adesso
Sei una agenzia?
Password dimenticata?