ioaffitto.it TROVA casa. VIVI SEMPLICE.
Nuova ricerca
Pubblica annuncio
Annunci sponsorizzati
Agenzie
Valutazione-immobile
Servizi
Luce Gas Fibra
Mutui
Finanziamenti
Ricerca Internazionale
Servizi web
Servizio partecipazione asta
Pubblica annuncio
Accedi
Studio Immobiliare Punto Casa
Corso Italia
91100 - Trapani
Chiama
Contatta
Annunci pubblicati dall'agenzia
Studio Immobiliare Punto Casa
Ordina per rilevanza
Ordina per rilevanza
Ordina per prezzo crescente
Ordina per prezzo decrescente
Ordina per superficie crescente
Ordina per superficie decrescente
13
Appartamento in vendita in Via Aperta a Trapani
€ 44.000,00
2
locali
30
mq
In centro storico, a due passi dal centrale Corso Italia, lo Studio immobiliare Punto Casa di Giacomo Nicotra propone in vendita un bilocale posto al secondo piano di una palazzina di totale due piani, non servita da ascensore. L'appartamentino si...
Chiama
Contatta
Visita
22
Casa indipendente in vendita in Via XX Settembre a Trapani
€ 99.000,00
6
locali
110
mq
In posizione strategica, tra la centralissima e servita Via Giovan Battista Fardella e il Lungomare Dante Alighieri, e più precisamente in Via XX Settembre, lo Studio Immobiliare Punto Casa di Giacomo Nicotra propone in vendita un’intera palazzina...
Chiama
Contatta
Visita
30
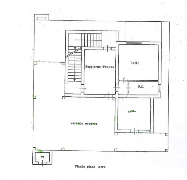
Casa indipendente in affitto in Via Aula a Valderice
€ 700,00
3
locali
160
mq
SI RICHIEDONO REFERENZE A Valderice, in località Sant’Andrea, lo Studio Immobiliare Punto Casa di Giacomo Nicotra propone in affitto una soluzione indipendente, completamente ristrutturata e arredata, che si estende su una superficie totale di 16...
Chiama
Contatta
Visita
21
Casa bifamiliare in vendita in Via Sebastiano Bonfiglio a Buseto Palizzolo
€ 140.000,00
4
locali
140
mq
A Buseto Palizzolo, in zona residenziale caratterizzata dalla presenza di varie villette, lo Studio Immobiliare Punto Casa di Giacomo Nicotra propone in vendita una villetta bifamiliare che si estende su una superficie totale di circa 140 mq suddi...
Chiama
Contatta
Visita
27
Villa in vendita in Via Bartolomeo Barone a Valderice
€ 290.000,00
4
locali
150
mq
Nel comune di Valderice, e più precisamente a Sant’Andrea, lo Studio immobiliare Punto Casa di Giacomo Nicotra propone in vendita una bella villetta in residence che si sviluppa su tre elevazioni, seminterrato, piano terra e primo piano, per una s...
Chiama
Contatta
Visita
23
Appartamento in vendita in Via dell'Angelo a Trapani
€ 60.000,00
4
locali
125
mq
Tra la servita Via Archi e il Lungomare Dante Alighieri, e più precisamente in Via dell’Angelo, lo Studio Immobiliare Punto Casa di Giacomo Nicotra propone in vendita un appartamento posto al quarto e ultimo piano di una palazzina non servita da a...
Chiama
Contatta
Visita
24
Villa in vendita in strada Provinciale 20 San Cusumano a Erice
€ 570.000,00
10
locali
850
mq
Sullo splendido scenario del litorale che conduce da Trapani verso le rinomate località di Pizzolungo e San Vito Lo Capo, e più precisamente in contrada San Cusumano, lo Studio Immobiliare Punto Casa di Giacomo Nicotra propone in vendita una splen...
Chiama
Contatta
Visita
24
Negozio in vendita in Via Ammiraglio Staiti a Trapani
€ 90.000,00
3
locali
65
mq
A due passi dal porto e dal servito e centralissimo Corso Italia, in ottima posizione ad angolo con Via Ammiraglio Staiti e vicino a importanti punti d’interesse come l’ex Banca d’Italia, il cinema Ariston, Via Torrearsa e Corso Vittorio Emanuele,...
Chiama
Contatta
Visita
23
Negozio in vendita in Via Torrearsa a Trapani
€ 118.000,00
2
locali
35
mq
In una delle centralissime vie del centro storico di Trapani, a due passi dal porto e dall’imbarco per le Isole Egadi, e più precisamente in Via Torrearsa, lo Studio Immobiliare Punto Casa di Giacomo Nicotra propone in vendita un locale commercial...
Chiama
Contatta
Visita
23
Villa in vendita in Via Scurati a Custonaci
€ 290.000,00
4
locali
350
mq
A Cornino, e più precisamente in località Scurati, lo Studio Immobiliare Punto Casa di Giacomo Nicotra propone in vendita una soluzione indipendente allo stato grezzo che si estende su una superficie totale di 350 mq suddivisi su tre elevazioni, s...
Chiama
Contatta
Visita
<
1
2
3
4
5
6
7
8
9
10
11
12
13
14
15
>
Email
Password
Ricordami
Registrati adesso
Sei una agenzia?
Password dimenticata?