ioaffitto.it TROVA casa. VIVI SEMPLICE.
Nuova ricerca
Pubblica annuncio
Annunci sponsorizzati
Agenzie
Valutazione-immobile
Servizi
Luce Gas Fibra
Mutui
Finanziamenti
Ricerca Internazionale
Servizi web
Servizio partecipazione asta
Pubblica annuncio
Accedi
GESCOM
Via Gera
31015 - Conegliano
Contatta
Annunci pubblicati dall'agenzia
GESCOM
Ordina per rilevanza
Ordina per rilevanza
Ordina per prezzo crescente
Ordina per prezzo decrescente
Ordina per superficie crescente
Ordina per superficie decrescente
23
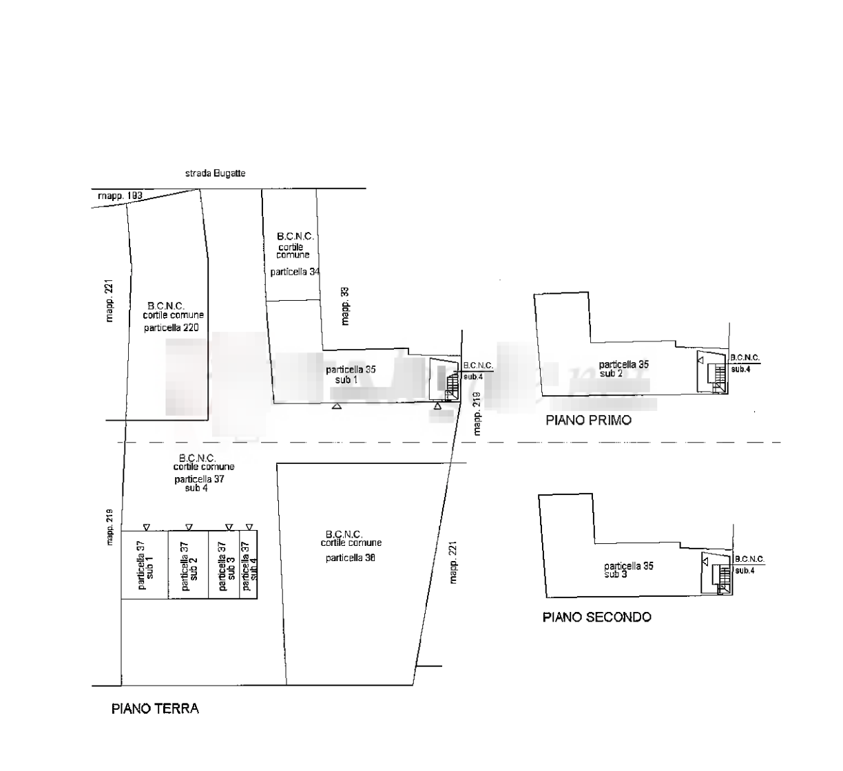
Appartamento in vendita in Via Bugatte a Borgo Mantovano
€ 25.551,00
4
locali
110
mq
NUOVA PROPOSTA IMMOBILE DISPONIBILE Trattasi di compendio immobiliare sito a Mantovano (MN), in Via Bugatte, inserito in un contesto condominiale tranquillo e ben servito. Il compendio è composto da tre unità abitative: - Appartamento mansardato...
Contatta
Visita
25
Appartamento in vendita in via Aldo Moro a Porto Mantovano
€ 54.188,00
5
locali
84
mq
NUOVA PROPOSTA IMMOBILE LIBERO Appartamento situato a Porto Mantovano (MN), in via Aldo Moro, composto da soggiorno/pranzo con balcone, cucina separata dal soggiorno tramite muretto basso, disimpegno, bagno e lavanderia. La zona notte comprend...
Contatta
Visita
37
Rustico / casale in vendita in Via Argine Secchia Sud a Quistello
€ 70.285,00
1
locali
363
mq
NUOVA PROPOSTA IMMOBILE LIBERO Trattasi di casa colonica dislocata su tre piani fuori terra, con edifici rurali composti da cinque corpi di fabbrica, il tutto facente parte di un più ampio complesso agricolo, oltre a cinque terreni agricoli, sit...
Contatta
Visita
20
Appartamento in vendita in Str. Palazzone a Gonzaga
€ 13.388,00
4
locali
87
mq
NUOVA PROPOSTA IMMOBILE DISPONIBILE Appartamento situato a Gonzaga (MN), in Strada Palazzone, località Bondeno posto al piano terra. L'immobile è composto da portico, piccola area di terreno esclusiva, ingresso giorno, cucina/soggiorno, corrido...
Contatta
Visita
25
Appartamento in vendita in Str. Circonvallazione Est a Porto Mantovano
€ 49.945,00
1
locali
107
mq
NUOVA PROPOSTA Appartamento situato a Porto Mantovano (MN), in Strada Circonvallazione Est, dotato di due balconi, il primo accessibile dal soggiorno e il secondo dalla cucina. Completano la proprietà un box auto posto al piano terra. L'immobile...
Contatta
Visita
16
Appartamento in vendita in Str. Circonvallazione Est a Porto Mantovano
€ 50.068,00
1
locali
107
mq
NUOVA PROPOSTA Appartamento situato a Porto Mantovano (MN), in Strada Circonvallazione Est, dotato di due balconi, il primo accessibile dal soggiorno e il secondo dalla cucina. Completano la proprietà un box auto posto al piano terra. L'immobile...
Contatta
Visita
36
Villa in vendita in Via Gabbianella a Quistello
€ 49.725,00
1
locali
293
mq
NUOVA PROPOSTA IMMOBILE LIBERO Compendio situato a Quistello (MN), in via Gabbianella, costituito da una villa su più piani con area cortiva esterna, completata da numerosi fabbricati accessori e terreni agricoli. Al piano terra, l'accesso avv...
Contatta
Visita
20
Casa indipendente in vendita in Via S. Giovanni a Capriglio
€ 19.125,00
1
locali
305
mq
NUOVA PROPOSTA IMMOBILE LIBERO L'immobile si trova nel comune di Capriglio (AT) in via S. Giovanni. Trattasi di un immobile composto da: -casa indipendente di 13 vani su tre lati ed è elevato per due piani fuori terra. Il piano terra è costi...
Contatta
Visita
16
Terreno edificabile in vendita in Via G. Ungaretti a Curtatone
€ 49.128,00
1
locali
685
mq
NUOVA PROPOSTA TERRENO LIBERO Terreno a Curtatone (MN) frazione Montanara, all'angolo tra Via G. Ungaretti e Via G. Segantin. Appezzamento di terreno edificabile a destinazione residenziale per una superficie complessiva di 685 metri quadri. ...
Contatta
Visita
26
Rustico / casale in vendita in Regione Rocchea a Canelli
€ 15.000,00
4
locali
81
mq
NUOVA PROPOSTA IMMOBILE LIBERO Trattasi di un rustico a Regione Rocchea, nel comune di Canelli (AT). Canelli (AT). La porzione abitativa si compone di un disimpegno di ingresso, un soggiorno, una cucina ed un ripostiglio con lavello. Una scala i...
Contatta
Visita
<
3
4
5
6
7
8
9
10
11
12
13
14
15
16
17
18
>
Email
Password
Ricordami
Registrati adesso
Sei una agenzia?
Password dimenticata?