ioaffitto.it TROVA casa. VIVI SEMPLICE.
Logo
Icona freccia in giu'
In affitto
In vendita
Icona disegna su mappa Disegno su mappa Icona cerca vicino a teCerca vicino a te
+ Casecase
+ Attività/immobili commercialiattività/immobili commerciali
+ Stanze singolestanze singole
+ Cantine / magazzinicantine / magazzini
Vacanzevacanze
+ Garage / posto autogarage / posto auto
+ Casecase
+ Attività/immobili commercialiattività/immobili commerciali
+ Terreniterreni
+ Stanze singolestanze singole
+ Cantine / magazzinicantine / magazzini
Vacanzevacanze
+ Garage / posto autogarage / posto auto
Minimo (€)
Massimo (€)
Icona freccia in giu'
Minima (mq)
Massima (mq)

Capannoni industriali in affitto a Ancona (Provincia)

Icona foto 45
Icona aggiungi ai preferiti
Capannone industriale in affitto in via dell'artigianato a Monte San Vito
€ 2.800,00
10
locali
710
mq
In stabile di alto pregio proponiamo in locazione ampia superficie adibita a laboratorio, uffici e showroom. Frazionabile x info chiamare il n 3348071425. CLASSE ENERGETICA: E

Icona foto 10
Icona aggiungi ai preferiti
Nuovo
Capannone industriale in affitto in Via Sacco e Vanzetti, snc a Ancona
€ 700,00
1
locali
400
mq
Ancona (AN) Riferimento Annuncio A-1727CCHFBusiness Ziona industriale / commerciale Baraccola di Ancona, Proponiamo in locazione porzione di magazzino, facente parte di più ampio complesso commerciale. L'immobile in discrete condizioni, dotato di ...

Icona foto 10
Icona aggiungi ai preferiti
Nuovo
Capannone industriale in affitto in Via Sacco e Vanzetti, snc a Ancona
€ 700,00
1
locali
400
mq
Ancona (AN) Riferimento Annuncio A-1727CCHFBusiness Ziona industriale / commerciale Baraccola di Ancona, Proponiamo in locazione porzione di magazzino, facente parte di più ampio complesso commerciale. L'immobile in discrete condizioni, dotato di ...

Icona foto 15
Icona aggiungi ai preferiti
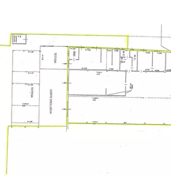
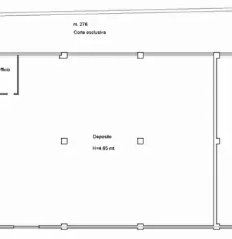
Capannone industriale in affitto in VIA DELL'ARTIGIANATO a Ancona
€ 0,00
0
locali
2000
mq
M624: Palombare affittiamo capannone di complessivi mq 2.000 con HT 4.65 destinazione commerciale e magazzino, parte adibita ad uffici e servizi, dispone di vari accessi, carrabili e non, oltre a due corti esterne esclusive di mq 540, disponibilit...

Icona foto 4
Icona aggiungi ai preferiti
Capannone industriale in affitto a Trecastelli
€ 1.200,00
0
locali
370
mq
A Ponte Rio (Comune di Trecastelli) si affitta capannone di circa 370 mq, con ufficio interno, ubicato all'interno di un sito artigianale-produttivo con spazio antistante per carico-scarico e dotato di ampie aperture. Utenze indipendenti, senza r...