ioaffitto.it TROVA casa. VIVI SEMPLICE.
Logo
Icona freccia in giu'
In affitto
In vendita
Icona disegna su mappa Disegno su mappa Icona cerca vicino a teCerca vicino a te
+ Casecase
+ Attività/immobili commercialiattività/immobili commerciali
+ Stanze singolestanze singole
+ Cantine / magazzinicantine / magazzini
Vacanzevacanze
+ Garage / posto autogarage / posto auto
+ Casecase
+ Attività/immobili commercialiattività/immobili commerciali
+ Terreniterreni
+ Stanze singolestanze singole
+ Cantine / magazzinicantine / magazzini
Vacanzevacanze
+ Garage / posto autogarage / posto auto
Minimo (€)
Massimo (€)
Icona freccia in giu'
Minima (mq)
Massima (mq)

Attività/immobili commerciali in vendita a Monte San Vito

Icona foto 18
Icona aggiungi ai preferiti
Nuovo
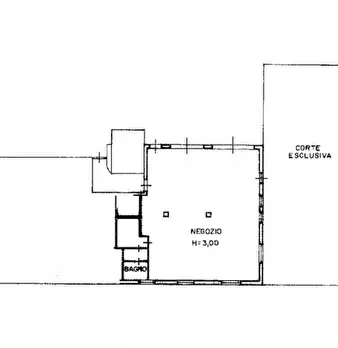
Negozio in vendita in Via Selva, 60037 Monte San Vito AN, Italia a Monte San Vito
€ 42.266,00
1
locali
142
mq
Quest’immobile viene venduto tramite asta online. Locale commerciale con corte esclusiva sito a Monte San Vito (AN), in via Selva. Il negozio è posto al piano terra di una palazzina di quattro piani fuori terra oltre ad uno interrato, ubicata in...