ioaffitto.it TROVA casa. VIVI SEMPLICE.
Logo
Icona freccia in giu'
In affitto
In vendita
Icona disegna su mappa Disegno su mappa Icona cerca vicino a teCerca vicino a te
+ Casecase
+ Attività/immobili commercialiattività/immobili commerciali
+ Stanze singolestanze singole
+ Cantine / magazzinicantine / magazzini
Vacanzevacanze
+ Garage / posto autogarage / posto auto
+ Casecase
+ Attività/immobili commercialiattività/immobili commerciali
+ Terreniterreni
+ Stanze singolestanze singole
+ Cantine / magazzinicantine / magazzini
Vacanzevacanze
+ Garage / posto autogarage / posto auto
Minimo (€)
Massimo (€)
Icona freccia in giu'
Minima (mq)
Massima (mq)

Attività/immobili commerciali in vendita a Montereale Valcellina

Icona foto 19
Icona aggiungi ai preferiti
Nuovo
Capannone industriale in vendita in Via Daniele Manin a Montereale Valcellina
€ 36.782,00
1
locali
526
mq
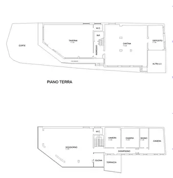
NUOVA PROPOSTA IMMOBILE LIBERO Capannone a Montereale Valcellina (PN), in via daniele Manin. L'immobile ha accesso diretto da via Manin e si apre su un disimpegno con vano scala che collega e distribuisce i vari ambienti. Al piano terra, sul lat...

Icona foto 15
Icona aggiungi ai preferiti
Nuovo
Ufficio in vendita in Via Daniele Manin, 1 a Montereale Valcellina
€ 36.783,00
0
locali
527
mq
Rif. A.A.208-22 Vendita all'asta - immobile commerciale/direzionale in data 28 gennaio 2026 Descrizione: trattasi di un immobile del tipo commerciale direzionale su due livelli fuori terra della superficie commerciale complessiva di mq.527. L’in...