ioaffitto.it TROVA casa. VIVI SEMPLICE.
Logo
Icona freccia in giu'
In affitto
In vendita
Icona disegna su mappa Disegno su mappa Icona cerca vicino a teCerca vicino a te
+ Casecase
+ Attività/immobili commercialiattività/immobili commerciali
+ Stanze singolestanze singole
+ Cantine / magazzinicantine / magazzini
Vacanzevacanze
+ Garage / posto autogarage / posto auto
+ Casecase
+ Attività/immobili commercialiattività/immobili commerciali
+ Terreniterreni
+ Stanze singolestanze singole
+ Cantine / magazzinicantine / magazzini
Vacanzevacanze
+ Garage / posto autogarage / posto auto
Minimo (€)
Massimo (€)
Icona freccia in giu'
Minima (mq)
Massima (mq)

Attività/immobili commerciali in vendita a Rossano Veneto

Icona foto 23
Icona aggiungi ai preferiti
Nuovo
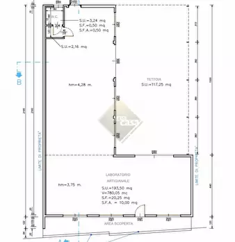
Laboratorio in vendita in Via Carducci 6 a Rossano Veneto
€ 220.000,00
0
locali
300
mq
Proponiamo in vendita a Rossano Veneto un laboratorio/deposito di circa 230 mq oltre a tettoia/parcheggio coperto di oltre 100 mq. Ideale per piccoli artigiani, attività commerciali o realtà e-commerce che necessitano di spazi funzionali facilment...