ioaffitto.it TROVA casa. VIVI SEMPLICE.
Logo
Icona freccia in giu'
In affitto
In vendita
Icona disegna su mappa Disegno su mappa Icona cerca vicino a teCerca vicino a te
+ Casecase
+ Attività/immobili commercialiattività/immobili commerciali
+ Stanze singolestanze singole
+ Cantine / magazzinicantine / magazzini
Vacanzevacanze
+ Garage / posto autogarage / posto auto
+ Casecase
+ Attività/immobili commercialiattività/immobili commerciali
+ Terreniterreni
+ Stanze singolestanze singole
+ Cantine / magazzinicantine / magazzini
Vacanzevacanze
+ Garage / posto autogarage / posto auto
Minimo (€)
Massimo (€)
Icona freccia in giu'
Minima (mq)
Massima (mq)

Negozio in vendita a Siracusa (Provincia)

Icona foto 20
Icona aggiungi ai preferiti
Negozio in vendita in via sicilia a Siracusa
€ 69.500,00
3
locali
58
mq
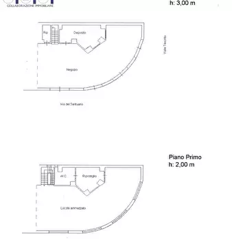
L'immobile ha due vetrine su strada con saracinesca e due finestrelle lato strada (una che serve il bagno e l'altra che serve un vano). Internamente, sono presenti tre ampi vani collegati da porta, il bagno, un soppalco, che viene adibito a magazz...

Icona foto 21
Icona aggiungi ai preferiti
Negozio in vendita a Siracusa
€ 140.000,00
2
locali
300
mq
Proponiamo sul Corso Principe Umberto della città di Augusta un grande locale commerciale esteso circa 300 mq. con area libera soprastante, quindi totalmente indipendente con due vetrine su strada. Il negozio si presenta in perfette condizioni e c...

Icona foto 20
Icona aggiungi ai preferiti
Negozio in vendita in via sicilia a Siracusa
€ 69.500,00
3
locali
58
mq
Tunisi, in una zona molto visibile e di grande transito, Gabetti Siracusa propone in vendita, a 69.500 euro, un basso commerciale di 58 mqc, posto al piano terra di un fabbricato di sei piani. L'immobile ha due vetrine su strada con saracinesca e ...

Icona foto 21
Icona aggiungi ai preferiti
Negozio in vendita a Siracusa
€ 290.000,00
9
locali
330
mq
In pieno centro storico e precisamente nella Via Maestranza, storica via delle antiche varie maestranze, proponiamo la vendita di un prestigioso locale commerciale con ingresso da storica e restaurata corte di un antico palazzo della via. Il local...

Icona foto 7
Icona aggiungi ai preferiti
Negozio in vendita a Siracusa
€ 82.000,00
1
locali
45
mq
Nelle immediate vicinanze della caserma dei carabinieri di Viale Tica, proponiamo la vendita di un locale commerciale ben esposto su strada, la zona è completa di qualsiasi tipo di servizio pubblico e privato ed attualmente il basso ospita una sto...

Icona foto 15
Icona aggiungi ai preferiti
Negozio in vendita in Viale Teracati a Siracusa
€ 300.000,00
12
locali
300
mq
Proponiamo un centralissimo locale commerciale di 300 mq. ed in perfette condizioni, con tre vetrine con esposizione su importante arteria stradale ad alta frequenza di traffico e passaggio pedonale, ideale per importanti attività commerciali, Ban...

Icona foto 9
Icona aggiungi ai preferiti
Negozio in vendita a Siracusa
€ 350.000,00
1
locali
260
mq
Vendiamo in pieno centro storico di Ortigia, locale commerciale di mq. 260 in piena attività e con reddito mensile di 1.500 euro,. pertinenza esterna di circa 90 mq. di proprietà oltre altri 90 eventuali mq. di suolo pubblico disponibile. Trattat...

Icona foto 10
Icona aggiungi ai preferiti
Negozio in vendita in Via Giovanni Pascoli, 45 a Pachino
€ 9.000,00
2
locali
55
mq
Affittasi Locale Commerciale ad Alta Visibilità - Pachino Posizione Strategica: Viale Giovanni Pascoli Sei alla ricerca della sede perfetta per la tua attività? Proponiamo in affitto un locale commerciale situato in una delle arterie principali...

Icona foto 4
Icona aggiungi ai preferiti
Negozio in vendita in Via Claudio Maria Arezzo, 14 a Siracusa
€ 90.000,00
1
locali
74
mq
SIRACUSA - ZONA ORTIGIA Professionecasa propone in vendita un negozio ad uso commerciale nel cuore del centro storico di Ortigia, a Siracusa. Con una superficie di 74 mq, questo locale offre un'ottima opportunità per aprire un bar, un pub, un ris...

Icona foto 14
Icona aggiungi ai preferiti
Nuovo
Negozio in vendita in Corso Vittorio Emanuele a Floridia
€ 40.000,00
1
locali
55
mq
Arkè immobiliare propone ufficio o locale da adibire ad attività commerciale nella galleria in Corso Vittorio Emanuele a Floridia di mq 55, con bagno e antibagno. l'immobile si presenta in buone condizioni e vicino ad altri uffici ed attività c...

< 1 2 3 4 5 6 >