ioaffitto.it TROVA casa. VIVI SEMPLICE.
Logo
Icona freccia in giu'
In affitto
In vendita
Icona disegna su mappa Disegno su mappa Icona cerca vicino a teCerca vicino a te
+ Casecase
+ Attività/immobili commercialiattività/immobili commerciali
+ Stanze singolestanze singole
+ Cantine / magazzinicantine / magazzini
Vacanzevacanze
+ Garage / posto autogarage / posto auto
+ Casecase
+ Attività/immobili commercialiattività/immobili commerciali
+ Terreniterreni
+ Stanze singolestanze singole
+ Cantine / magazzinicantine / magazzini
Vacanzevacanze
+ Garage / posto autogarage / posto auto
Minimo (€)
Massimo (€)
Icona freccia in giu'
Minima (mq)
Massima (mq)

Ufficio in vendita a Savona

Icona foto 25
Icona aggiungi ai preferiti
Nuovo
Ufficio in vendita in Via Nazionale Piemonte, 4, 17100 Savona SV, Italia a Savona
€ 84.400,00
7
locali
351
mq
Nel cuore di Savona, a pochi minuti dalla Riviera Ligure, proponiamo in vendita un ufficio all'interno del celebre Palazzo Imperiale, una residenza nobiliare di grande fascino, risalente al XIV secolo e rinnovata nel Cinquecento dal celebre archit...

Icona foto 19
Icona aggiungi ai preferiti
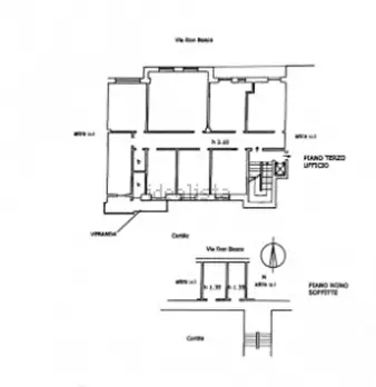
Ufficio in vendita in via don bosco a Savona
€ 250.000,00
8
locali
210
mq
In zona centralissima, sito al terzo piano con ascensore, ampio alloggio ad uso ufficio in ottimo stato manutentivo di circa 210 mq. L'immobile è composto da ingresso, sette vani, ampia salone, bagno, ripostiglio e due balconi. Riscaldamento centr...