ioaffitto.it TROVA casa. VIVI SEMPLICE.
Nuova ricerca
Pubblica annuncio
Annunci sponsorizzati
Agenzie
Valutazione-immobile
Servizi
Luce Gas Fibra
Mutui
Finanziamenti
Ricerca Internazionale
Servizi web
Servizio partecipazione asta
Pubblica annuncio
Accedi
CENTURY 21 Masters
Via Giacomo Leopardi, 144
95127 CEDEX - Ermont
P.IVA: 06028600879
Referente: Giuseppe Caltabiano
Chiama
Contatta
Annunci pubblicati dall'agenzia
CENTURY 21 Masters
Ordina per rilevanza
Ordina per rilevanza
Ordina per prezzo crescente
Ordina per prezzo decrescente
Ordina per superficie crescente
Ordina per superficie decrescente
45
Locale commerciale in vendita in Via Antonio Prestinenza a Catania
€ 279.000,00
12
locali
527
mq
La Century 21 Masters presenta in zona commerciale a pochi passi dalla circonvallazione nella zona di Ognina, oltre che dal lungomare,un ampio deposito dalla generosa metratura, mq 527 categoria catastale C2, perfettamente adattabile ad attività d...
Chiama
Contatta
Visita
35
Bar / Ristorante in vendita in Viale Papa Giovanni XXIII a Camporotondo Etneo
€ 65.000,00
0
locali
90
mq
VENDESI ATTIVITÀ COMMERCIALE - BAR PASTICCERIA Camporotondo Etneo (CT)Hai sempre sognato di gestire un bar pasticceria?Questa è l’occasione perfetta per te!L'AGENZIA IMMOBILIARE CENTURY 21 MASTERS Propone in vendita un'attività ben avviata di ba...
Chiama
Contatta
Visita
37
Trilocale in vendita in Via degli Agrumi a Catania
€ 84.000,00
4
locali
100
mq
CENTURY 21 Masters propone in vendita un elegante appartamento completamente ristrutturato, situato al primo piano di un tranquillo palazzetto residenziale.L’immobile si sviluppa su una comoda metratura e si compone di un luminoso open space soggi...
Chiama
Contatta
Visita
34
Pizzeria / Pub in vendita in Via Duca Degli Abruzzi a Catania
€ 20.000,00
1
locali
55
mq
Century 21 Masters propone in vendita questa opportunità di investimento davvero ottima, situata in zona commerciale.La pizzeria d'asporto e consegna a domicilio si trova in Via Duca degli Abruzzi e gode di una posizione strategica che abbraccia p...
Chiama
Contatta
Visita
27
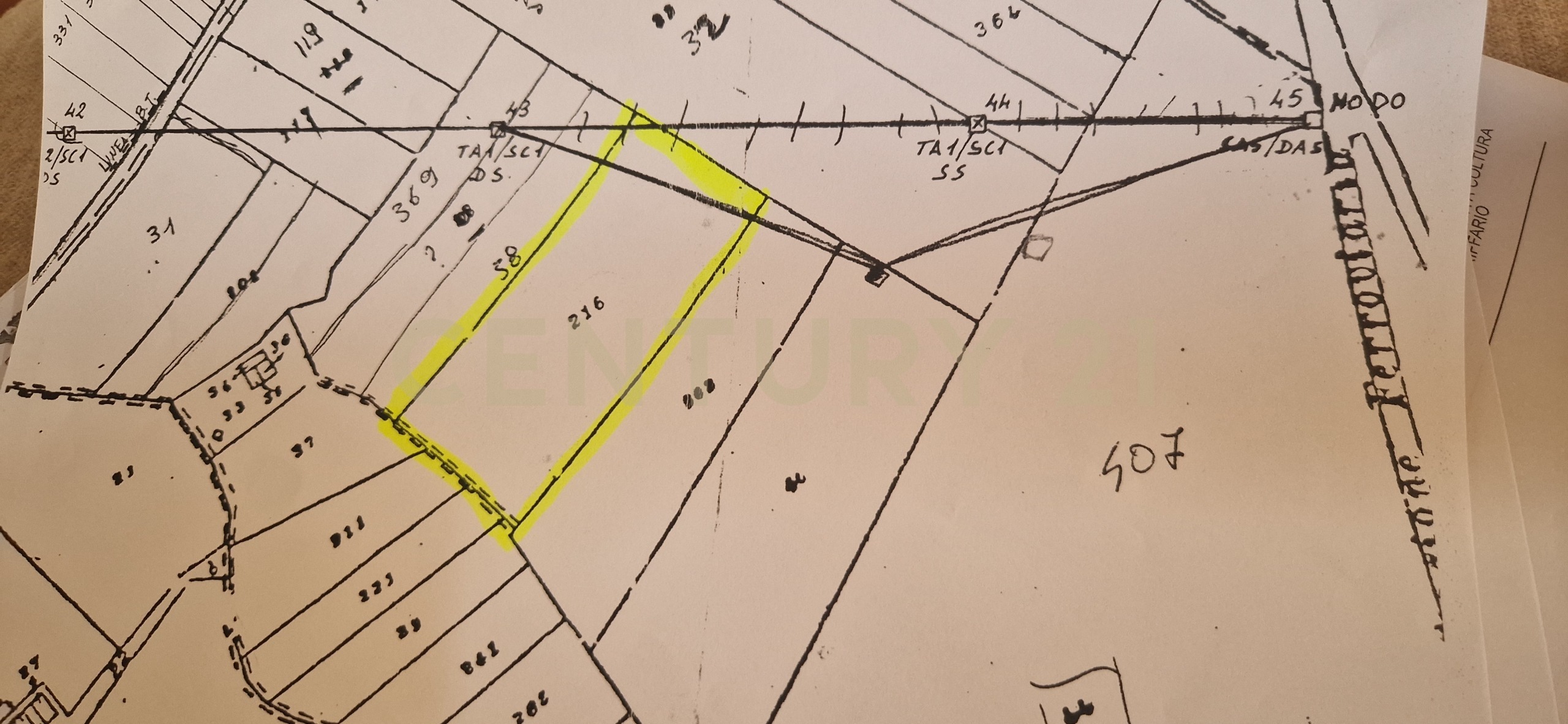
Terreno agricolo in vendita in Via Margarone a Motta Sant'anastasia
€ 41.900,00
10
locali
10
mq
In una delle zone più interessanti e in crescita di Motta Sant’Anastasia, proponiamo in vendita esclusiva un terreno agricolo di 5.923 mq situato in Via Margarone, a pochi passi dal Palatenda e dal nuovo asilo nido comunale attualmente in costruzi...
Chiama
Contatta
Visita
93
Rustico / casale in vendita in Via Passo Parrino a Modica
€ 499.000,00
20
locali
700
mq
Scopri il tuo casale da sogno in Italia in questa affascinante villa di 400,0 m², immersa nel cuore della campagna Modicana , in Sicilia.Questa residenza a due piani offre un’opportunità unica per immergersi nella ricca trama della cultura e della...
Chiama
Contatta
Visita
59
Attico in vendita in Via Firenze a Catania
€ 1.150.000,00
12
locali
360
mq
Nel palazzo più alto di Catania, simbolo di eleganza e prestigio, proponiamo in vendita un attico unico nel suo genere, con vista panoramica a 360° su mare, Etna e città.Situato in una delle zone più residenziali e richieste di Catania, a pochi pa...
Chiama
Contatta
Visita
55
Porzione di casa in vendita in Via Santissima Trinità a Catania
€ 255.000,00
6
locali
150
mq
Scopri l'opportunità unica di vivere nel cuore del centro storico di Catania! Century 21 è lieta di presentarvi questa splendida soluzione semindipendente situata in Via Santissima Trinità. Questo immobile si distingue per i suoi spazi generosi e ...
Chiama
Contatta
Visita
36
Trilocale in vendita in Via Cavallaro a Catania
€ 195.000,00
3
locali
95
mq
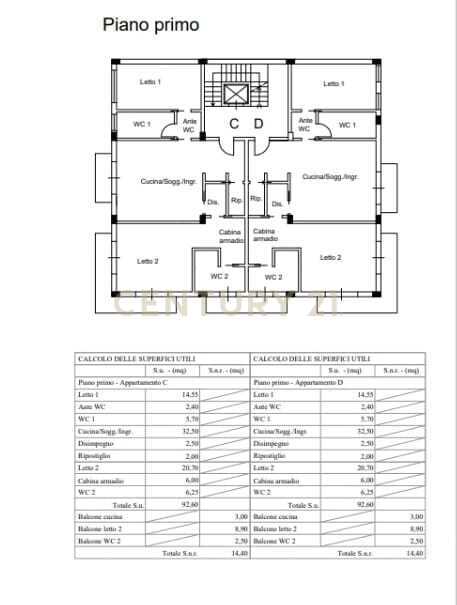
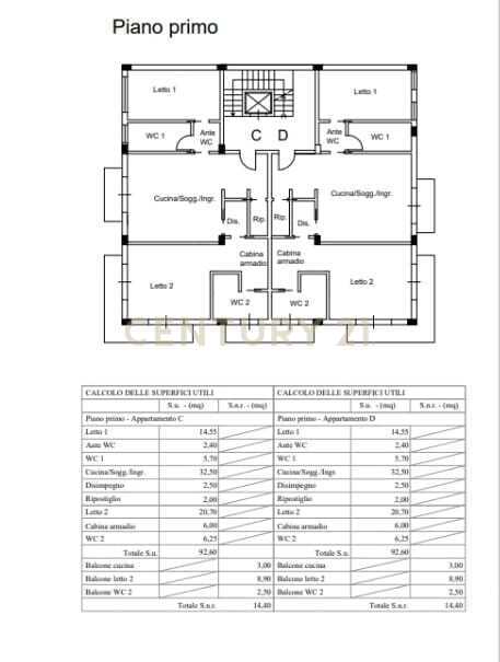
Si mette in vendita e si da inizio alle prenotazioni per la realizzazione di Nuovi appartamenti siti in Via Cavallaro angolo via Timoleone - NUOVE COSTRUZIONI IN VENDITA A CATANIA--Posizione strategica: a un passo dalla circonvalazione e da ogn...
Chiama
Contatta
Visita
30
Attico in vendita in Via Re Martino a Catania
€ 152.000,00
3
locali
60
mq
Si mette in vendita e si da inizio alle prenotazioni per la realizzazione di Nuovi appartamenti siti in Via Re Martino - NUOVE COSTRUZIONI IN VENDITA A CATANIA--Posizione strategica: a un passo dalla circonvalazione e da ognina, nel cuore di una...
Chiama
Contatta
Visita
<
5
6
7
8
9
10
11
12
13
14
15
16
17
18
19
20
>
Email
Password
Ricordami
Registrati adesso
Sei una agenzia?
Password dimenticata?