ioaffitto.it TROVA casa. VIVI SEMPLICE.
Nuova ricerca
Pubblica annuncio
Annunci sponsorizzati
Agenzie
Valutazione-immobile
Servizi
Luce Gas Fibra
Mutui
Finanziamenti
Ricerca Internazionale
Servizi web
Servizio partecipazione asta
Pubblica annuncio
Accedi
GESCOM
Via Gera
31015 - Conegliano
Contatta
Annunci pubblicati dall'agenzia
GESCOM
Ordina per rilevanza
Ordina per rilevanza
Ordina per prezzo crescente
Ordina per prezzo decrescente
Ordina per superficie crescente
Ordina per superficie decrescente
31
Appartamento in vendita in Via Giovan Battista Moroni a Padova
€ 132.750,00
9
locali
188
mq
NUOVA PROPOSTA IMMOBILE DISPONIBILE Appartamento situato nella zona di Padova (PD) via Giovan Battista Moroni. Unità che si sviluppa su più livelli facente parte di un edificio residenziale; Al piano terra sono presenti: l'ingresso, una lavand...
Contatta
Visita
16
Capannone industriale in vendita in Via Abramo Lincoln a Voghera
€ 475.500,00
1
locali
36540
mq
NUOVA PROPOSTA L'immobile si trova nel comune di Voghera (FE) in via Abramo Lincoln. Trattasi di un complesso florovivaistico di superficie catastale di mq 36.540,00 costituito da serre fisse, per la coltivazione, selezione, confezionamento, qu...
Contatta
Visita
10
Terreno edificabile in vendita in Via Gustav Mahler a Reggio Nell'emilia
€ 207.900,00
1
locali
1008
mq
NUOVA RPOPOSTA TERRENO LIBERO Terreno edificabile situato a Reggio Emilia (RE), in Via Gustav Mahler. Il lotto, di forma pressoché regolare e con giacitura pianeggiante, è attualmente coperto da vegetazione spontanea. La superficie catastale è...
Contatta
Visita
21
Appartamento in vendita in Via Paolo Borsellino a Garbagnate Milanese
€ 69.750,00
5
locali
81
mq
NUOVA PROPOSTA Trattasi di un appartamento in via Paolo Borsellino, nel comune di Garbagnate Milanese MI. L'abitazione è composto da soggiorno, cucina, due camere, due bagni, disimpegno e due balconi, con cantina e box al piano interrato. Questo...
Contatta
Visita
19
Appartamento in vendita in Via Triste a Portomaggiore
€ 17.250,00
5
locali
89
mq
NUOVA PROPOSTA IMMOBILE LIBERO L'immobile si trova nel comune di Portomaggiore (FE) in via Triste, trattasi di appartamento al piano secondo raggiungibile con ascensore. La residenza è composta da ingresso-disimpegno, cucina, pranzo-soggiorno...
Contatta
Visita
10
Garage in vendita in Corso Leonardo da Vinci a Gallarate
€ 26.250,00
1
locali
74
mq
NUOVA PROPOSTA IMMOBILE DISPONIBILE Trattasi di un box auto doppio e locale sgombero a Gallarate (VA) in Corso Leonardo da Vinci. L'unità adibita a box auto ha una superficie di circa 74mq. Per te la possibilità di avere un preventivo per il ...
Contatta
Visita
15
Ufficio in vendita in Via Padre Reginaldo Giuliani a Saronno
€ 101.120,00
1
locali
83
mq
NUOVA PROPOSTE IMMOBILE LIBERO Trattasi di un ufficio in via Padre Reginaldo Giuliani, nel comune di Saronno VA. Ufficio con vetrina su strada, posto al piano terra di un edificio condominiale, con annesso un piano interrato ad uso ripostiglio e...
Contatta
Visita
30
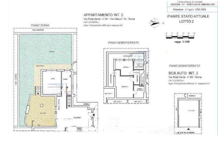
Appartamento in vendita in Via Riola Sardo a Roma
€ 109.050,00
4
locali
97
mq
NUOVA PROPOSTA Trattasi di un appartamento a Roma (RM) in Via Riola Sardo. L'immobile ha una superficie di 97,80 mq e si sviluppa su due livelli all'interno di un edificio residenziale munito di ascensore. L'immobile è formato da piano rialzato c...
Contatta
Visita
20
Villetta a schiera in vendita in Via Guglielmo Marconi a Buscate
€ 99.000,00
1
locali
111
mq
NUOVA PROPOSTA IMMOBILE LIBERO Trattasi di una villetta a schiera a Buscate (MI) in Via Guglielmo Marconi. L'immobile è composto da 6 vani e consta di: - piano interrato: cantina costituita da un unico locale e box singolo; - piano terra trovia...
Contatta
Visita
10
Terreno edificabile in vendita in Via Gustav Mahler a Reggio Nell'emilia
€ 283.950,00
1
locali
1377
mq
NUOVA RPOPOSTA TERRENO LIBERO Terreno edificabile situato a Reggio Emilia (RE), in Via Gustav Mahler. Il lotto, di forma pressoché regolare e con giacitura pianeggiante, è attualmente coperto da vegetazione spontanea. La superficie catastale è...
Contatta
Visita
<
31
32
33
34
35
36
37
38
39
40
41
42
43
44
45
46
>
Email
Password
Ricordami
Registrati adesso
Sei una agenzia?
Password dimenticata?