ioaffitto.it TROVA casa. VIVI SEMPLICE.
Nuova ricerca
Pubblica annuncio
Annunci sponsorizzati
Agenzie
Valutazione-immobile
Servizi
Luce Gas Fibra
Mutui
Finanziamenti
Ricerca Internazionale
Servizi web
Servizio partecipazione asta
Pubblica annuncio
Accedi
GESCOM
Via Gera
31015 - Conegliano
Contatta
Annunci pubblicati dall'agenzia
GESCOM
Ordina per rilevanza
Ordina per rilevanza
Ordina per prezzo crescente
Ordina per prezzo decrescente
Ordina per superficie crescente
Ordina per superficie decrescente
11
Terreno edificabile in vendita in Via Giuseppe Tanari a Castel San Pietro Terme
€ 57.750,00
1
locali
1528
mq
NUOVA PROPOSTA IMMOBILE LIBERO Terreno edificabile a destinazione residenziale situato a Castel San Pietro Terme (BO), in Via Giuseppe Tanari. Il lotto presenta una sagoma irregolare e un andamento altimetrico non uniforme. La potenzialità edi...
Contatta
Visita
21
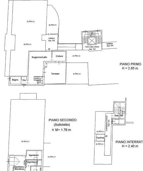
Appartamento in vendita in via San Michel a Parabiago
€ 147.000,00
5
locali
90
mq
NUOVA PROPOSTA IMMOBILE DISPONIBILE Appartamento posto al piano primo in un edificio condominiale denominato "LA MAGNOLIA", ubicato nel comune di Parabiago (MI) in via San Michel. L'alloggio è composto da soggiorno/letto, cottura, disimpegno, ba...
Contatta
Visita
13
Terreno agricolo in vendita in Via la Rocca a Vezzano Sul Crostolo
€ 121.310,00
1
locali
56891
mq
NUOVA PROPOSTA IMMOBILE LIBERO Trattasi di un terreno agricolo in via la Rocca, a Vezzano sul Crostolo RE. Piena proprietà di appezzamento di terreno agricolo con sovrastante edificio principale abitativo in disuso al grezzo di 56.891,00. Per ...
Contatta
Visita
33
Laboratorio in vendita in Via Trieste a Mathi
€ 10.000,00
1
locali
137
mq
NUOVA PROPOSTA IMMOBILE DISPONIBILE Laboratorio a Mathi (TO) in Via Trieste. Edificio elevato ad un piano fuori terra ed uno interrato; al piano terreno troviamo la zona vendita e laboratorio, ufficio, spogliatoio e doppi servizi per complessi...
Contatta
Visita
21
Appartamento in vendita in Via Don Augusto Zini a San Felice Sul Panaro
€ 76.950,00
4
locali
83
mq
NUOVA PROPOSTA IMMOBILE DISPONIBILE Trattasi di un appartamento in via la Rocca, in via don Augusto Zini. L'appartamento è composta da un soggiorno-pranzo open live con balcone, due camere da letto, un bagno con terrazzo. Autorimessa di 18 mq Q...
Contatta
Visita
23
Porzione di villa in vendita in Via Pietro Giardini a Modena
€ 16.500,00
2
locali
50
mq
NUOVA PROPOSTA Trattasi di una porzione di villa nel comune di Modena MO, in via Pietro Giardini. Porzione di villa composta da locale a destinazione soggiorno al piano terra (rialzato), comunicante con altra proprietà facente parte dello stesso ...
Contatta
Visita
26
Casa indipendente in vendita in Via Cucchi Marcantonio a Martinengo
€ 66.249,00
5
locali
118
mq
NUOVA PROPOSTA Trattasi di una casa singola in via Cucchi Marcantonio, nel comune di Martinengo BG. Abitazione unifamiliare, sviluppantesi sui piani terra, primo e secondo, composta di: cucina, soggiorno, disimpegno, ripostiglio e portico, al pia...
Contatta
Visita
11
Negozio in vendita in Via Carlo Marx a Carpi
€ 54.000,00
1
locali
80
mq
NUOVA PROPOSTA Trattasi di un negozio in via Carlo Marx, nel comune di Carpi MO. Negozio posto al piano terra di un edificio denominato "Condominio Jessica 6", di 80 mq. Situato in una zona comoda e collegata Per te la possibilità di avere un pr...
Contatta
Visita
32
Porzione di casa in vendita in Via Mazzini a Villa D'almè
€ 51.000,00
8
locali
200
mq
NUOVA PROPOSTA IMMOBILE LIBERO Trattasi di porzione di casa a Villa d'Almè (BG) in Via Mazzini. L'immobile si sviluppa su tre piani ed è composto da soggiorno e cucina abitabile al piano terra; al primo e secondo piano ci sono le camere, due pe...
Contatta
Visita
18
Appartamento in vendita in Via Monginevro a Torino
€ 57.000,00
4
locali
80
mq
NUOVA PROPOSTA IMMOBILE LIBERO Trattasi di un appartamento a Torino (TO) in Via Monginevro. L'immobile è posto al terzo piano ed è composto da ingresso, due camere, tinello abitabile con piccolo cucinino, bagno e ripostiglio oltre a due balconi...
Contatta
Visita
<
38
39
40
41
42
43
44
45
46
47
48
49
50
51
52
53
>
Email
Password
Ricordami
Registrati adesso
Sei una agenzia?
Password dimenticata?