ioaffitto.it TROVA casa. VIVI SEMPLICE.
Nuova ricerca
Pubblica annuncio
Annunci sponsorizzati
Agenzie
Valutazione-immobile
Servizi
Luce Gas Fibra
Mutui
Finanziamenti
Ricerca Internazionale
Servizi web
Servizio partecipazione asta
Pubblica annuncio
Accedi
Vittori Servizi Immobiliari
53049 - Torrita Di Siena
P.IVA: 01380350528
Referente: Mirko Vittori
Chiama
Contatta
Annunci pubblicati dall'agenzia
Vittori Servizi Immobiliari
Ordina per rilevanza
Ordina per rilevanza
Ordina per prezzo crescente
Ordina per prezzo decrescente
Ordina per superficie crescente
Ordina per superficie decrescente
1
Attività commerciale in vendita in torrita di siena via ottavio maestri a Torrita Di Siena
€ 0,00
4
locali
80
mq
All’interno di caratteristico borgo storico tra la Valdichiana e la Val d’Orcia, si cede ben avviata attività di ristorazione. L'attività viene svolta all'interno di un fondo commerciale condotto in locazione avente una superficie di circa mq. 80,...
Chiama
Contatta
Visita
33
Casa indipendente in vendita in Via Sandro Pertini a Montepulciano
€ 110.000,00
8
locali
250
mq
A breve distanza da Montepulciano, in località Abbadia, si propone la vendita di casa singola su due livelli di mq. 215, corredata di cantina interrata di mq. 20, annesso ad uso garage di mq. 35 e resede privato a giardino di mq. 250 con pozzo. L'...
Chiama
Contatta
Visita
23
Casa indipendente in vendita a Montepulciano
€ 165.000,00
5
locali
260
mq
A breve distanza da Montepulciano, in Loc. Gracciano, si propone la vendita di casa singola con resede privato di circa mq. 450. La proprietà si compone al piano terreno di ampio garage, magazzino, locale sgombero e vano tecnico di complessivi mq....
Chiama
Contatta
Visita
24
Casa indipendente in vendita in Via Spagna a Torrita Di Siena
€ 269.000,00
9
locali
302
mq
In grazioso contesto residenziale, si propone la vendita di casa singola su due livelli di complessivi mq. 302, con ampio resede privato a giardino di circa mq. 1450 servito da due accessi carrabili ed un pozzo. La proprietà è stata oggetto di rec...
Chiama
Contatta
Visita
22
Appartamento in vendita in Via Enrico benedetti a Torrita Di Siena
€ 115.000,00
7
locali
205
mq
In contesto residenziale a breve distanza da tutti i principali servizi, si propone la vendita di complesso immobiliare costituito da due appartamenti di mq. 70 ciascuno, posti al piano secondo con accesso autonomo, oltre a locali ad uso garage, c...
Chiama
Contatta
Visita
25
Casa indipendente in vendita in santarello a Sinalunga
€ 224.000,00
6
locali
355
mq
In zona di campagna a breve distanza da Sinalunga, si propone la vendita di casa singola su due livelli di mq. 240 con terreno di mq. 18.000 su cui insistono degli annessi per complessivi mq. 115 composti da una ex rimessa animali di mq. 75 ed una...
Chiama
Contatta
Visita
22
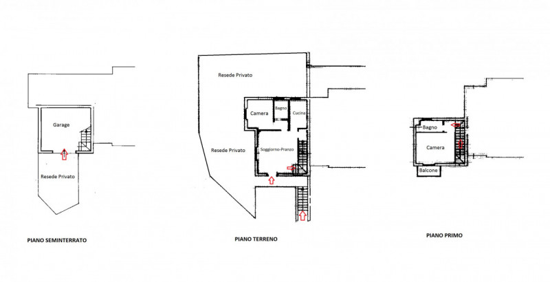
Villetta a schiera in vendita in Via San Giusto a Lucignano
€ 179.000,00
4
locali
120
mq
In tranquilla zona residenziale, con bella vista panoramica, si propone la vendita di villetta a schiera capotesta di complessivi mq. 120, con resede privato di mq. 90. La proprietà si compone al piano seminterrato da ampio garage con angolo lavan...
Chiama
Contatta
Visita
26
Casa bifamiliare in vendita in Via Giuseppe Verdi a Torrita Di Siena
€ 225.000,00
7
locali
220
mq
In contesto residenziale, si propone la vendita di villetta trifamigliare di mq. 220, corredata di resede privato, parte a giardino e parte a piazzale carrabile. La struttura si compone al piano terreno di due appartamenti di mq. 55 ciascuno, comp...
Chiama
Contatta
Visita
22
Appartamento in vendita in Via Della Resistenza a Montepulciano
€ 110.000,00
5
locali
100
mq
Ad Abbadia di Montepulciano, in tranquillo contesto residenziale, si propone la vendita di grazioso appartamento di mq. 100 posto al 2° ed ultimo piano di piccolo contesto plurifamigliare, corredato di garage e cantina di complessivi mq 30. L'abit...
Chiama
Contatta
Visita
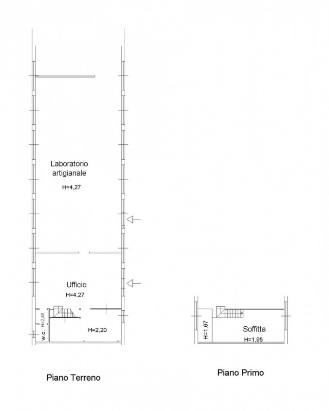
11
Capannone industriale in vendita in via traversa valdichiana est a Torrita Di Siena
€ 99.000,00
2
locali
240
mq
Nella zona industriale-artigianale di Torrita di Siena posta a breve distanza dall'autostrada "A1" Firenze-Roma, si propone in vendita fondo artigianale di complessivi mq. 225, di cui mq. 130 ad uso laboratorio, mq. 70 ad uso ufficio con bagno e p...
Chiama
Contatta
Visita
<
1
2
3
4
5
6
7
8
9
10
11
>
Email
Password
Ricordami
Registrati adesso
Sei una agenzia?
Password dimenticata?