ioaffitto.it TROVA casa. VIVI SEMPLICE.
Nuova ricerca
Pubblica annuncio
Annunci sponsorizzati
Agenzie
Valutazione-immobile
Servizi
Luce Gas Fibra
Mutui
Finanziamenti
Ricerca Internazionale
Servizi web
Servizio partecipazione asta
Pubblica annuncio
Accedi
Vittori Servizi Immobiliari
53049 - Torrita Di Siena
P.IVA: 01380350528
Referente: Mirko Vittori
Chiama
Contatta
Annunci pubblicati dall'agenzia
Vittori Servizi Immobiliari
Ordina per rilevanza
Ordina per rilevanza
Ordina per prezzo crescente
Ordina per prezzo decrescente
Ordina per superficie crescente
Ordina per superficie decrescente
4
Laboratorio in vendita in via traversa valdichiana est a Torrita Di Siena
€ 25.000,00
0
locali
700
mq
Nella zona industriale-artigianale di Torrita di Siena posta a breve distanza dall'autostrada "A1" Firenze-Roma, si propone in vendita di ben avviata attività di falegnameria, presente sul territorio da molti anni. L'attività viene svolta all'inte...
Chiama
Contatta
Visita
21
Casa bifamiliare in vendita a Montepulciano
€ 139.000,00
7
locali
210
mq
Nel centro abitato di Acquaviva, si propone la vendita di villetta bifamigliare di complessivi mq. 210 con resede esterno privato di circa mq. 300. La proprietà è composta da due appartamenti così distribuiti: appartamento al piano terreno di mq. ...
Chiama
Contatta
Visita
17
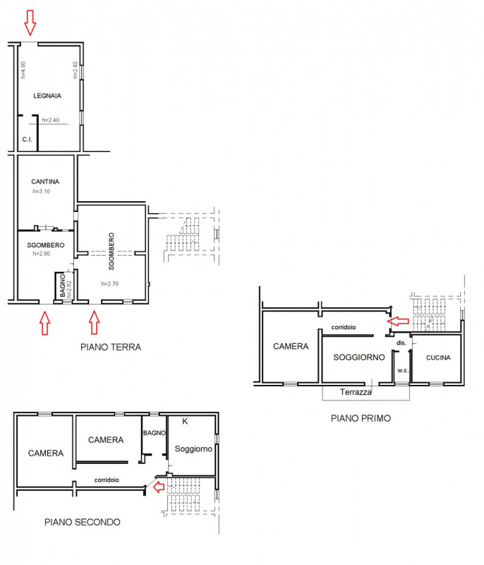
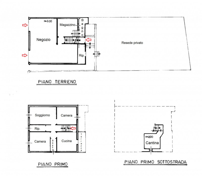
Casa bifamiliare in vendita in via Mazzini a Torrita Di Siena
€ 89.000,00
5
locali
125
mq
OCCASIONE: in zona centrale ben servita, si propone la vendita di porzione di fabbricato di complessivi mq. 138, composto al piano terreno da fondo commerciale di mq. 50 con bagno e magazzino di mq. 15. Collegamento interno al piano primo dove tro...
Chiama
Contatta
Visita
2
Attività commerciale in vendita a Pienza
€ 90.000,00
0
locali
50
mq
Nel centro storico di Pienza, si cede ben avviata attività di wine-bar, attualmente incentrata su somministrazione e vendita di prodotti tipici della zona (taglieri di pecorini, salumi, crostoni elaborati, fonduta di pecorino, dolci artigianali), ...
Chiama
Contatta
Visita
21
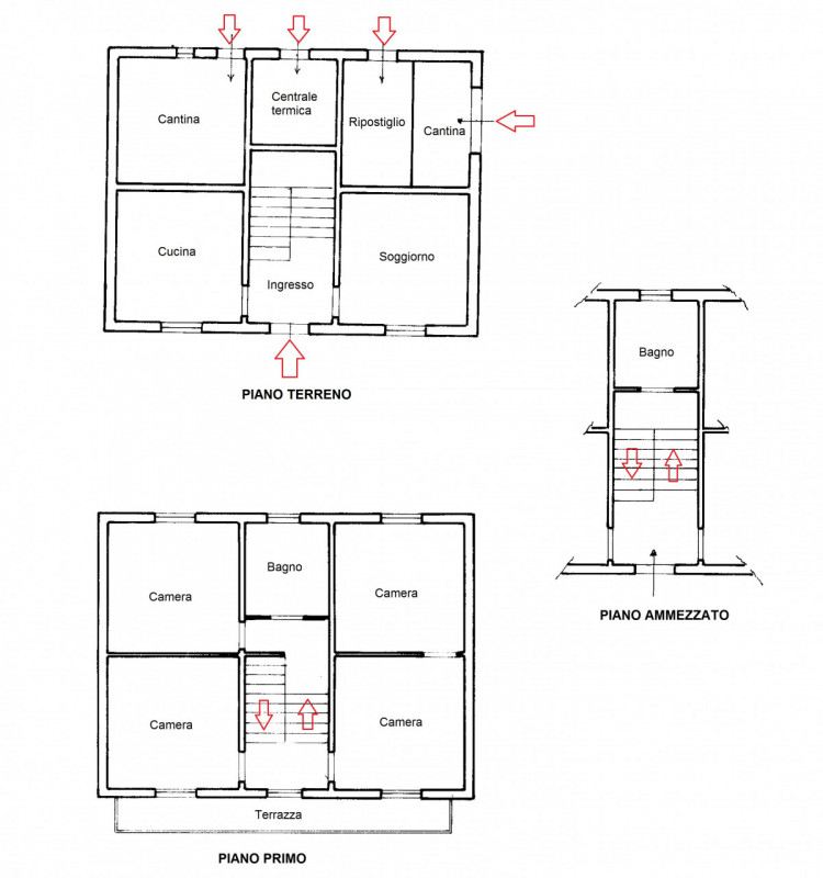
Casa bifamiliare in vendita in Via della resistenza a Montepulciano
€ 109.000,00
6
locali
185
mq
Nel centro di Abbadia di Montepulciano, si propone la vendita di porzione di fabbricato su due livelli per complessivi mq. 185 con resede privato di mq. 200. La proprietà si compone al piano terreno da ampio negozio con magazzino, il tutto utilizz...
Chiama
Contatta
Visita
30
Casa bifamiliare in vendita in via traversa valdichiana est a Torrita Di Siena
€ 198.000,00
4
locali
460
mq
In zona di campagna prossima al centro abitato di Torrita di Siena, si propone la vendita di complesso immobiliare di complessivi mq. 460 costituito da una porzione di fabbricato con due appartamenti di mq. 80 ciascuno, locali ad uso cantina, maga...
Chiama
Contatta
Visita
11
Appartamento in vendita in Via Sansedoni a Siena
€ 195.000,00
3
locali
55
mq
In grazioso contesto residenziale, ben collegato con il centro città, con il polo ospedaliero-universitario ed in prossimità della direttrice per Firenze, si propone la vendita di appartamento di mq. 60 posto al piano primo di palazzina plurifamig...
Chiama
Contatta
Visita
29
Casa indipendente in vendita in Via Rovisci a Montepulciano
€ 315.000,00
8
locali
590
mq
A breve distanza da Montepulciano, in località Acquaviva, si propone la vendita di casa singola di complessivi mq. 180, con annessi ad uso rimessa e magazzino di complessivi mq. 410 e terreno di mq. 3.800 con pozzo. L'abitazione si compone al pian...
Chiama
Contatta
Visita
23
Casa indipendente in vendita in via Basilicata a Torrita Di Siena
€ 179.000,00
9
locali
440
mq
A breve distanza da centro abitato di Torrita, si propone la vendita di compendio immobiliare di complessivi mq. 440, costituito da una abitazione su due livelli di mq. 235, locali ad uso laboratorio/magazzino di mq. 155 e vani accessori per mq. ...
Chiama
Contatta
Visita
22
Casa bifamiliare in vendita in Via Antonio Gramsci a Trequanda
€ 120.000,00
9
locali
180
mq
Nel centro storico dell'antico borgo di Petroio, a pochi passi dalla Val d'Orcia, proponiamo la vendita di porzione di fabbricato di complessivi mq. 180 con all'interno due unità abitative così composte: A) appartamento al piano secondo di mq. 65 ...
Chiama
Contatta
Visita
<
1
2
3
4
5
6
7
8
9
10
11
>
Email
Password
Ricordami
Registrati adesso
Sei una agenzia?
Password dimenticata?