ioaffitto.it TROVA casa. VIVI SEMPLICE.
Nuova ricerca
Pubblica annuncio
Annunci sponsorizzati
Agenzie
Valutazione-immobile
Servizi
Luce Gas Fibra
Mutui
Finanziamenti
Ricerca Internazionale
Servizi web
Servizio partecipazione asta
Pubblica annuncio
Accedi
Vittori Servizi Immobiliari
53049 - Torrita Di Siena
P.IVA: 01380350528
Referente: Mirko Vittori
Chiama
Contatta
Annunci pubblicati dall'agenzia
Vittori Servizi Immobiliari
Ordina per rilevanza
Ordina per rilevanza
Ordina per prezzo crescente
Ordina per prezzo decrescente
Ordina per superficie crescente
Ordina per superficie decrescente
30
Casa bifamiliare in vendita in via traversa valdichiana est a Torrita Di Siena
€ 198.000,00
4
locali
460
mq
In zona di campagna prossima al centro abitato di Torrita di Siena, si propone la vendita di complesso immobiliare di complessivi mq. 460 costituito da una porzione di fabbricato con due appartamenti di mq. 80 ciascuno, locali ad uso cantina, maga...
Chiama
Contatta
Visita
11
Appartamento in vendita in Via Sansedoni a Siena
€ 195.000,00
3
locali
55
mq
In grazioso contesto residenziale, ben collegato con il centro città, con il polo ospedaliero-universitario ed in prossimità della direttrice per Firenze, si propone la vendita di appartamento di mq. 60 posto al piano primo di palazzina plurifamig...
Chiama
Contatta
Visita
29
Casa indipendente in vendita in Via Rovisci a Montepulciano
€ 315.000,00
8
locali
590
mq
A breve distanza da Montepulciano, in località Acquaviva, si propone la vendita di casa singola di complessivi mq. 180, con annessi ad uso rimessa e magazzino di complessivi mq. 410 e terreno di mq. 3.800 con pozzo. L'abitazione si compone al pian...
Chiama
Contatta
Visita
23
Casa indipendente in vendita in via Basilicata a Torrita Di Siena
€ 179.000,00
9
locali
440
mq
A breve distanza da centro abitato di Torrita, si propone la vendita di compendio immobiliare di complessivi mq. 440, costituito da una abitazione su due livelli di mq. 235, locali ad uso laboratorio/magazzino di mq. 155 e vani accessori per mq. ...
Chiama
Contatta
Visita
22
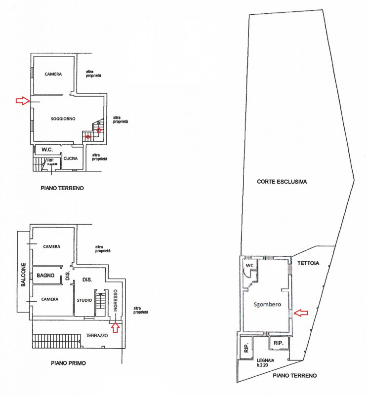
Casa bifamiliare in vendita in Via Antonio Gramsci a Trequanda
€ 120.000,00
9
locali
180
mq
Nel centro storico dell'antico borgo di Petroio, a pochi passi dalla Val d'Orcia, proponiamo la vendita di porzione di fabbricato di complessivi mq. 180 con all'interno due unità abitative così composte: A) appartamento al piano secondo di mq. 65 ...
Chiama
Contatta
Visita
16
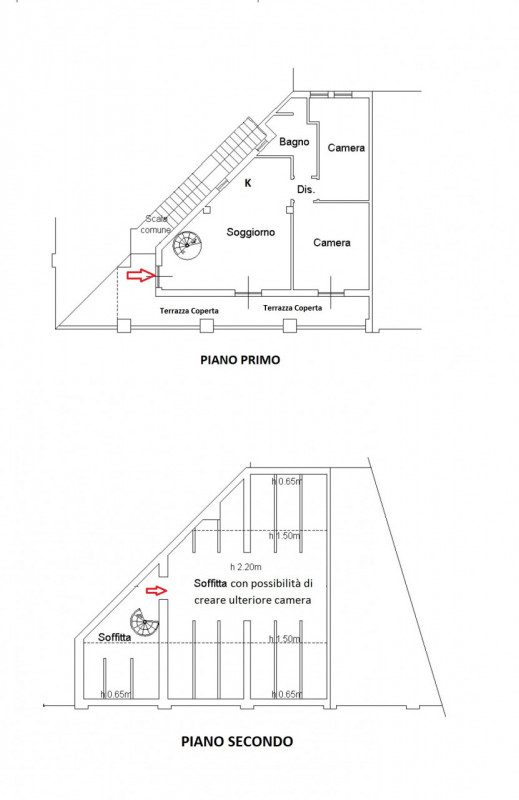
Appartamento in vendita in Via enrico mattei a Sinalunga
€ 169.000,00
5
locali
125
mq
In località Bettolle, a breve distanza dalla "Perugia-Siena", in grazioso contesto residenziale, si propone la vendita di appartamento di mq. 125 posto al piano primo con ingresso autonomo, corredato al piano terreno di garage doppio, locali ad us...
Chiama
Contatta
Visita
23
Appartamento in vendita in via mentana a Montepulciano
€ 110.000,00
5
locali
120
mq
Montepulciano Stazione: in tranquilla zona residenziale prossima ai principali servizi, proponiamo la vendita di ampio appartamento di mq. 120, posto al piano rialzato di fabbricato bifamigliare, corredato di garage di mq. 35 con vano tecnico e lo...
Chiama
Contatta
Visita
19
Appartamento in vendita in via della resistenza a Montepulciano
€ 120.000,00
4
locali
80
mq
Abbadia di Montepulciano, in complesso di nuova costruzione, si propone la vendita di appartamento di mq. 80 posto al piano primo con accesso autonomo dal piano terreno, corredato di garage pertinenziale di mq. 40. L'abitazione si compone internam...
Chiama
Contatta
Visita
18
Negozio in vendita in Via Traversa valdichiana est a Torrita Di Siena
€ 119.000,00
0
locali
110
mq
In zona centrale, si propone la vendita di fondo commerciale di mq. 110 posto al piano terreno con ingresso autonomo e area esterna a parcheggio. L'immobile si presta ad essere utilizzato sia per attività commerciali che direzionali (studi medici,...
Chiama
Contatta
Visita
25
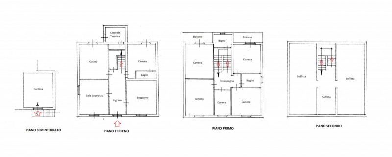
Casa indipendente in vendita in Via Danilo Pieroni a Torrita Di Siena
€ 189.000,00
10
locali
260
mq
In esclusiva zona residenziale, proponiamo la vendita di casa singola interamente in pietra e mattoni con resede privato a giardino di mq. 750. L'immobile ha una superficie complessiva di mq. 260 ed è composto al piano terreno da locali ad uso dep...
Chiama
Contatta
Visita
<
1
2
3
4
5
6
7
8
>
Email
Password
Ricordami
Registrati adesso
Sei una agenzia?
Password dimenticata?